City Pearl

Eladó ikerház
Veresegyház

+ 17 kép 1/20
120 000 000 Ft120 M Ft 1 250 000 Ft/m2
4 szoba
96 m2
építés éve:2025

Részletes adatok

Telekméret: 700 m2
Fűtés: Egyéb
Közmű: Víz, Villany, Csatorna, Szélessáv, KábelTV
Energetikai besorolás: Nem adta meg a hirdető

Az OTP Bank lakáshitel ajánlataFizetett hirdetés

+36 30 948
Harai és Társai Kereskedelmi és Szolgáltató Betéti Társaság
Harai Ingatlaniroda

Érdekel az OTP Bank kedvezményes lakáshitel ajánlata? *

* A kérdésre „Igen” válasz bejelölése esetén, az „Üzenet küldése” gombra kattintva kijelentem, hogy az OTP Bank Nyrt. Adatkezelési tájékoztatójának tartalmát megismertem és tudomásul vettem.

Eladó ikerház leírása

VERESEGYHÁZ, ÚJ ÉPÍTÉSŰ IKERHÁZ, GARÁZSNÁL KAPCSOLÓDÓ! Még mindkettő elérhető.

Forduljon bizalommal 32 éve működő HARAI INGATLAN és ÜGYVÉDI irodánk szakembereinkhez!

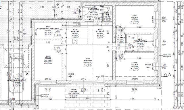
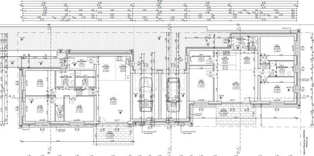
A hirdetés az A2-es lakásra vonatkozik.

Pareméterek: 96 m2 alapterület, saját kert 700 m2

Nappali-konyha-étkező, 3 szoba, fürdőszoba, külön WC, háztartási helyiség, közlekedő, előszoba.

Terasz 12,25 m2, garázs 18,24 m2.

Néhány műszaki:

főfalak Porotherm 30-as OKOS téglából készültek+ 15 cm vastag dryvit szigeteléssel. Fűtés: hőszivattyú padlófűtéssel.

Külső nyílászárók: műanyag, 3 rétegű üvegezéssel, bukó-nyíló szerkezetek.

Parkolás: saját garázsban, továbbá az udvaron lehetséges.

Csendes környék, aszfaltos utca, tömegközlekedés - vasút, busz - , 2-3 percre.

Hívjon minket bizalommal. Ingyenes hitelügyintézés, saját ügyvéd.

Amennyiben ingatlanának értékesítése még nem történt meg, irodánk szívesen segít az eladásban, kedvezményes 2 % sikerdíj mellett.

Hirdetés feltöltve: 2025. 11. 15. Utoljára módosítva: 2026. 01. 20.

4 szobás ikerházak ára Veresegyházon

Ebből az összehasonlításból megtudhatod, hogyan viszonyul a lakás ára a környékbeli ikerházak átlagos árához. Ez nem azt jelenti, hogy ennyivel olcsóbb vagy drágább, mint amennyit a lakás ér, hanem hogy ennyivel tér el a környékbeli átlagtól.

Ennek a m² ára
Veresegyház m² ár
1250 e Ft
1170 e Ft -7%
Ennek az ára
Veresegyház átlagár
120 M Ft m Ft
123.8 m Ft 3%

Az ingatlan elhelyezkedése

Cím: Veresegyház

Eladó ikerházak a környékről

Eladó ikerház
Eladó ikerház

Veresegyház

145.8 M Ft
1 + 4 szoba
154 m2
Eladó ikerház
Eladó ikerház

Pilisjászfalu

70.563 M Ft
4 szoba
61 m2
Eladó ikerház
Eladó ikerház

Veresegyház

110 M Ft
4 szoba
97 m2
Eladó ikerház
Eladó ikerház

Dunakeszi

149 M Ft
1 + 4 szoba
127 m2
Eladó ikerház
Eladó ikerház

Érd, Érdligeten található utca

64.9 M Ft
4 szoba
112 m2
Eladó ikerház
Eladó ikerház

Veresegyház

145.8 M Ft
5 szoba
128 m2
Eladó ikerház
Eladó ikerház

Szentendre

359 M Ft
5 + 1 szoba
289 m2
Eladó ikerház
Eladó ikerház

Veresegyház

147.25 M Ft
5 szoba
131 m2
Eladó ikerház
Eladó ikerház

Veresegyház

120 M Ft
4 szoba
109 m2
Eladó ikerház
Eladó ikerház

Pusztazámor

55 M Ft
10 szoba
470 m2
Eladó ikerház
Eladó ikerház

Üröm

220 M Ft
4 szoba
130 m2
Eladó ikerház
Eladó ikerház

Veresegyház

99.7 M Ft
6 szoba
210 m2
Eladó ikerház
Eladó ikerház

Veresegyház

145.8 M Ft
1 + 4 szoba
152 m2
Eladó ikerház
Eladó ikerház

Szentendre, Szentendre

398 M Ft
5 szoba
267 m2
Eladó ikerház
Eladó ikerház

Veresegyház

149 M Ft
5 szoba
150 m2
Eladó ikerház
Eladó ikerház

Mogyoród, Fóti út

188 M Ft
6 szoba
182 m2
Eladó ikerház
Eladó ikerház

Veresegyház

145 M Ft
4 szoba
120 m2
Eladó ikerház
Eladó ikerház

Veresegyház

110 M Ft
4 szoba
97 m2
Eladó ikerház
Eladó ikerház

Vác

149.9 M Ft
5 szoba
202 m2
Eladó ikerház
Eladó ikerház

Pécel, Pécel

144.9 M Ft
6 szoba
200 m2
Eladó ikerház
Eladó ikerház

Pomáz

129.5 M Ft
4 szoba
100 m2
Eladó ikerház
Eladó ikerház

Veresegyház

149 M Ft
5 szoba
150 m2
Eladó ikerház
Eladó ikerház

Pécel

149.9 M Ft
5 szoba
306 m2
Eladó ikerház
Eladó ikerház

Vác

99.7 M Ft
4 + 1 szoba
129 m2

Falusi CSOK ingatlanok

Eladó családi ház
Eladó családi ház

Sárok, Kossuth Lajos utca

21.9 M Ft
3 szoba
97 m2
Eladó családi ház
Eladó családi ház

Nagyhegyes

80 M Ft
2 szoba
94 m2
Eladó családi ház
Eladó családi ház

Mikebuda

55 M Ft
2 szoba
90 m2
Eladó családi ház
Eladó családi ház

Törtel

39 M Ft
1 + 1 szoba
118 m2
Eladó téglalakás
Eladó téglalakás

Nagyharsány

22.5 M Ft
3 szoba
71 m2
Eladó családi ház
Eladó családi ház

Szólád

99.9 M Ft
6 + 1 szoba
245 m2
Eladó családi ház
Eladó családi ház

Ádánd

53.5 M Ft
6 szoba
180 m2
Eladó családi ház
Eladó családi ház

Hahót

64.9 M Ft
5 szoba
118 m2