City Pearl

Eladó ikerház
Vecsés

+ 15 kép 1/18
149 900 000 Ft149.9 M Ft 936 875 Ft/m2
5 szoba
160 m²
építés éve:2025

Részletes adatok

Telekméret: 460 m2
Fűtés: Egyéb
Energetikai besorolás: A

Az OTP Bank lakáshitel ajánlataFizetett hirdetés

+36 70 323
Zsebő Miklós
referens

Érdekel az OTP Bank kedvezményes lakáshitel ajánlata? *

* A kérdésre „Igen” válasz bejelölése esetén, az „Üzenet küldése” gombra kattintva kijelentem, hogy az OTP Bank Nyrt. Adatkezelési tájékoztatójának tartalmát megismertem és tudomásul vettem.

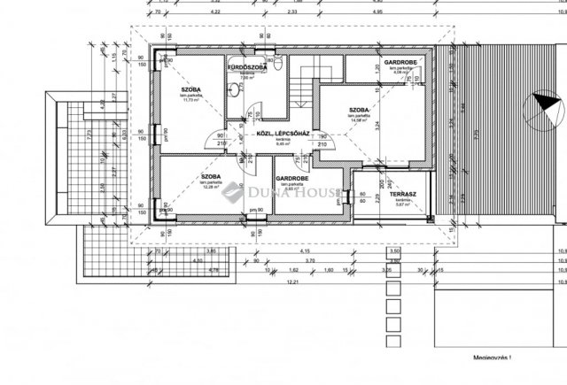
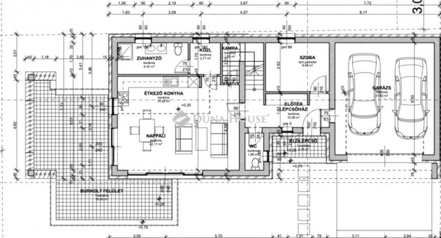
Eladó ikerház leírása

Vecsés csendes családias részénVecsés Krakkón barátságos utcában eladó új építésű családi házak.A kivitelező sok éves múlttal és rengeteg elégedett ügyféllel rendelkezik, referenciák Vecsési lakóparkokban és a 18.kerületben is megtekinthetőek.Költözzön egy privát zárt lakóparkba melyet saját magánúton zárt kapuk mögött lehet megközelíteni. 4 ház épül a lakópark területén, a privát kerteken kívül közös kertrész is kialakításra kerül, melyre a kivitelező privát játszóteret és sütögetőt alakít ki.Az otthonok 160.88 négyzetméter hasznos lakótérrel rendelkeznek, mely két szinten fekszik és 460 négyzetméter kert tartozik hozzá. A földszinten egy kényelmes méretű 32 négyzetméteres amerikai konyhás nappalival rendelkezik melyre egy L alakú 35.92 négyzetméteres részben fedett teraszon keresztül jutunk a saját kertünkbe. 4 nagyobb méretű hálószobával, 2 gardróbbal és 2 fürdőszobával+1 illemhelyiséggel rendelkezik.Műszaki adatok:-30-as Prototherm tégla falazat-15 cm-es homlokzati szigetelés-25 cm-es szigetelés az aljzat felől-25 cm-es szigetelés a födém felől-3 rétegű műanyag nyílászárók kívülről antracit belülről fehér színűek-elektromos garázskapu antracit színnel-Hőszivattyús fűtés/hűtés-2 fürdőszoba-kamra-riasztó-elektromos redőny-térkövezett autóbeálló-kétállásos garázs-napelem/kamera kiállásBurkolatok/beltéri ajtók/szaniterek még választhatóak.A HÁZAK CSAK A DUPLAGARÁZSNÁL ÉRINTKEZNEK, UTCAFRONTJA MINDEGYIK INGATLANNAK VAN!A lakópark teljesen új modern környezet, játszótérrel, fákkal. Közlekedést tekintve autóval a Gyorsforgalmi út, Üllői út, Gyömrői út az M0-ás és a 4-es út 3 perc alatt megközelíthető.Tömegközlekedés 3 perc sétára Volánbuszmegálló Kőbánya Kispest vasútállomásig közlekedik, 15 perc sétára Vecsési vonatállomás, melyről a Nyugati pályaudvarig közlekednek a vonatok.Felkeltette érdeklődését keressen bizalommal a hét bármely napján!Átadás: 2026.július

Referencia szám: HZ065083-ZE

Hirdetés feltöltve: 2026. 04. 01. Utoljára módosítva: 2026. 04. 23.

5 szobás ikerházak ára Vecsésen

Ebből az összehasonlításból megtudhatod, hogyan viszonyul a lakás ára a környékbeli ikerházak átlagos árához. Ez nem azt jelenti, hogy ennyivel olcsóbb vagy drágább, mint amennyit a lakás ér, hanem hogy ennyivel tér el a környékbeli átlagtól.

Ennek a m² ára
Vecsés m² ár
937 e Ft
1017 e Ft 8%
Ennek az ára
Vecsés átlagár
149.9 M Ft m Ft
144.3 m Ft -4%

Az ingatlan elhelyezkedése

Cím: Vecsés

Eladó ikerházak a környékről

Vác
Eladó ikerház

Vác

99.7 M Ft
4 + 1 szoba
129 m²
Vecsés
Eladó ikerház

Vecsés

132 M Ft
4 szoba
170 m²
Vecsés
Eladó ikerház

Vecsés

149.9 M Ft
5 szoba
160 m²
Vecsés
Eladó ikerház

Vecsés

132 M Ft
4 szoba
147 m²
Diósd
Eladó ikerház

Diósd

206.25 M Ft
5 szoba
184 m²
Budakalász
Eladó ikerház

Budakalász

195 M Ft
5 + 2 szoba
170 m²
Vác
Eladó ikerház

Vác

149.9 M Ft
5 szoba
202 m²
Dunakeszi
Eladó ikerház

Dunakeszi

178 M Ft
6 szoba
140 m²
Vecsés
Eladó ikerház

Vecsés

149.9 M Ft
5 szoba
160 m²
Vecsés
Eladó ikerház

Vecsés

149.9 M Ft
5 szoba
160 m²
Vecsés
Eladó ikerház

Vecsés

149.9 M Ft
5 szoba
181 m²
Nagytarcsa
Eladó ikerház

Nagytarcsa

119.9 M Ft
4 szoba
103 m²
Vecsés
Eladó ikerház

Vecsés

138 M Ft
5 szoba
163 m²
Vecsés
Eladó ikerház

Vecsés

149.9 M Ft
5 szoba
160 m²
Vecsés
Eladó ikerház

Vecsés

149.9 M Ft
5 szoba
160 m²
Mogyoród
Eladó ikerház

Mogyoród

135 M Ft
5 szoba
137 m²
Vác
Eladó ikerház

Vác

96.7 M Ft
4 + 1 szoba
126 m²
Kiskunlacháza
Eladó ikerház

Kiskunlacháza

44.9 M Ft
2 szoba
39 m²
Vecsés
Eladó ikerház

Vecsés

69.9 M Ft
4 szoba
96 m²
Pomáz
Eladó ikerház

Pomáz

129.5 M Ft
4 szoba
100 m²
Mogyoród
Eladó ikerház

Mogyoród

135 M Ft
5 szoba
137 m²
Pécel
Eladó ikerház

Pécel

149.9 M Ft
5 szoba
306 m²
Szentendre
Eladó ikerház

Szentendre

718 M Ft
10 + 2 szoba
578 m²
Budakalász
Eladó ikerház

Budakalász

159 M Ft
6 szoba
140 m²

Falusi CSOK ingatlanok

Enese
Eladó családi ház

Enese

72.025 M Ft
4 szoba
75 m²
Szob
Eladó sorház

Szob

16 M Ft
2 szoba
45 m²
Nagyszénás, Bajcsy-Zsilinszky utca 60
Eladó családi ház

Nagyszénás

11.7 M Ft
1 + 1 szoba
128 m²
Németkér
Eladó családi ház

Németkér

149.9 M Ft
2 szoba
540 m²
Sály, Kossuth Lajos 128
Eladó családi ház

Sály

28.875 M Ft
6 szoba
160 m²
Bag
Eladó ikerház

Bag

93 M Ft
3 szoba
68 m²
Tabdi
Eladó családi ház

Tabdi

95 M Ft
45 szoba
1490 m²
Kenyeri
Eladó családi ház

Kenyeri

39.9 M Ft
3 szoba
94 m²