City Pearl

Eladó ikerház
Vecsés

+ 15 kép 1/18
124 990 000 Ft124.99 M Ft 991 984 Ft/m2
4 szoba
126 m2
építés éve:2025

Részletes adatok

Telekméret: 500 m2
Fűtés: Egyéb
Energetikai besorolás: Nem adta meg a hirdető

Az OTP Bank lakáshitel ajánlataFizetett hirdetés

+36 1 690
Zámbó Beatrix
referens

Érdekel az OTP Bank kedvezményes lakáshitel ajánlata? *

* A kérdésre „Igen” válasz bejelölése esetén, az „Üzenet küldése” gombra kattintva kijelentem, hogy az OTP Bank Nyrt. Adatkezelési tájékoztatójának tartalmát megismertem és tudomásul vettem.

Eladó ikerház leírása

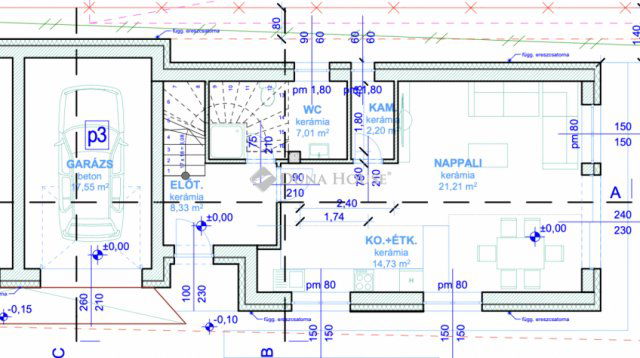
Vecsés központi részénVecsésen vasútállomáshoz közel eladó új építésű otthonok.A kivitelező sok éves múlttal és rengeteg elégedett ügyféllel rendelkezik.1-es házHasznos alapterülete 104 négyzetméter, mely egy 250 négyzetméteres telken fekszik. A földszinten a nappaliból egy óriási tolóajtón jutunk a 6,55 négyzetméteres teraszunkra és a saját kertrészünkbe.Nappali+3 hálószobával és 2 fürdőszobával rendelkezik.2-es házHasznos alapterülete 110 négyzetméter, mely egy 500 négyzetméteres telken fekszik. A földszinten a 35,94 négyzetméteres nappalinkból egy gyönyörű tolóajtón keresztül juthatunk a saját privát kertünkbe, melyben akár medence, játszótér vagy egy szuper nyári grill terasz is elfér.Nappali+3 hálószobával és 2 fürdőszobával rendelkezik.Műszaki adatok:-30-as Prototherm tégla falazat-15 cm-es homlokzati szigetelés-18 cm-es szigetelés az aljzat felől-20 cm-es szigetelés a födém felől-3 rétegű műanyag nyílászárók kívülről barna fahatásúak, belülről fehér színűek-elektromos garázskapu fehér színnel-Hőszivattyús fűtés/hűtés-2 fürdőszoba-riasztó és kaputelefon kiállás-redőnyök-napelem kiállás-térkövezett autóbeállóBurkolatok/beltéri ajtók/szaniterek még választhatóak.-Burkolatok: hideg/meleg 6.000 forintig-Beltéri ajtók: 60.000 forintig-Szaniterek, csaptelepek: 500.000 forintigválaszthatóakA HÁZAK CSAK GARÁZZSAL ÉRINTKEZNEK.A Közlekedést tekintve autóval a Gyorsforgalmi út, Üllői út, Gyömrői út az M0-ás és a 4-es út 3 3 perc alatt megközelíthető.Tömegközlekedés 20 méterre Volánbusz Kőbánya Kispest vasútállomásig közlekedik, 3 perc sétára Vecsési vonatállomás, melyről a Nyugati pályaudvarig közlekednek a vonatok.Felkeltette érdeklődését keressen bizalommal a hét bármely napján!

Referencia szám: HZ040645-ZE

Hirdetés feltöltve: 2025. 12. 10. Utoljára módosítva: 2025. 12. 30.

4 szobás ikerházak ára Vecsésen

Ebből az összehasonlításból megtudhatod, hogyan viszonyul a lakás ára a környékbeli ikerházak átlagos árához. Ez nem azt jelenti, hogy ennyivel olcsóbb vagy drágább, mint amennyit a lakás ér, hanem hogy ennyivel tér el a környékbeli átlagtól.

Ennek a m² ára
Vecsés m² ár
992 e Ft
911 e Ft -9%
Ennek az ára
Vecsés átlagár
124.99 M Ft m Ft
128.3 m Ft 3%

Az ingatlan elhelyezkedése

Cím: Vecsés

Eladó ikerházak a környékről

Eladó ikerház
Eladó ikerház

Vecsés

69.9 M Ft
4 szoba
96 m2
Eladó ikerház
Eladó ikerház

Szentendre

179 M Ft
5 + 1 szoba
147 m2
Eladó ikerház
Eladó ikerház

Dunakeszi

149 M Ft
1 + 4 szoba
127 m2
Eladó ikerház
Eladó ikerház

Mogyoród, Fóti út

188 M Ft
6 szoba
182 m2
Eladó ikerház
Eladó ikerház

Vecsés

69.9 M Ft
4 szoba
96 m2
Eladó ikerház
Eladó ikerház

Vecsés

245 M Ft
5 szoba
173 m2
Eladó ikerház
Eladó ikerház

Üröm

249.9 M Ft
4 szoba
154 m2
Eladó ikerház
Eladó ikerház

Tahitótfalu

88.9 M Ft
4 szoba
110 m2
Eladó ikerház
Eladó ikerház

Vác

96.5 M Ft
4 + 1 szoba
129 m2
Eladó ikerház
Eladó ikerház

Pilisjászfalu

70.563 M Ft
4 szoba
61 m2
Eladó ikerház
Eladó ikerház

Vác

175.356 M Ft
5 szoba
165 m2
Eladó ikerház
Eladó ikerház

Pomáz

129.5 M Ft
4 szoba
100 m2
Eladó ikerház
Eladó ikerház

Vecsés

105 M Ft
4 szoba
120 m2
Eladó ikerház
Eladó ikerház

Vecsés

105 M Ft
4 szoba
153 m2
Eladó ikerház
Eladó ikerház

Vecsés

124.99 M Ft
4 szoba
139 m2
Eladó ikerház
Eladó ikerház

Érd, Érdligeten található utca

64.9 M Ft
4 szoba
112 m2
Eladó ikerház
Eladó ikerház

Vecsés

245 M Ft
5 szoba
173 m2
Eladó ikerház
Eladó ikerház

Vecsés

149.9 M Ft
5 szoba
163 m2
Eladó ikerház
Eladó ikerház

Vecsés

109.9 M Ft
6 szoba
120 m2
Eladó ikerház
Eladó ikerház

Pécel

149.9 M Ft
5 szoba
306 m2
Eladó ikerház
Eladó ikerház

Vecsés

149.9 M Ft
5 szoba
181 m2
Eladó ikerház
Eladó ikerház

Mogyoród

135 M Ft
5 szoba
137 m2
Eladó ikerház
Eladó ikerház

Dunaharaszti

124.999 M Ft
4 szoba
105 m2
Eladó ikerház
Eladó ikerház

Vecsés

149 M Ft
5 szoba
160 m2

Falusi CSOK ingatlanok

Eladó családi ház
Eladó családi ház

Iváncsa

73.9 M Ft
1 + 3 szoba
97 m2
Eladó családi ház
Eladó családi ház

Doboz

11.99 M Ft
2 + 1 szoba
89 m2
Eladó családi ház
Eladó családi ház

Tápiógyörgye

14.9 M Ft
2 szoba
67 m2
Eladó családi ház
Eladó családi ház

Sajópálfala

35 M Ft
3 szoba
83 m2
Eladó családi ház
Eladó családi ház

Somogygeszti

38.6 M Ft
3 + 1 szoba
98 m2
Eladó családi ház
Eladó családi ház

Kétbodony

84.9 M Ft
5 szoba
151 m2
Eladó családi ház
Eladó családi ház

Tapsony

23.8 M Ft
3 szoba
130 m2
Eladó családi ház
Eladó családi ház

Ábrahámhegy

139 M Ft
4 szoba
106 m2