Astora Art House

Eladó ikerház
Vecsés

+ 4 kép 1/7
140 000 000 Ft140 M Ft 939 597 Ft/m2
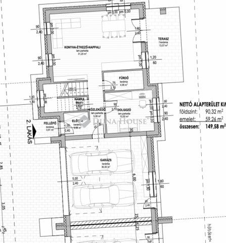
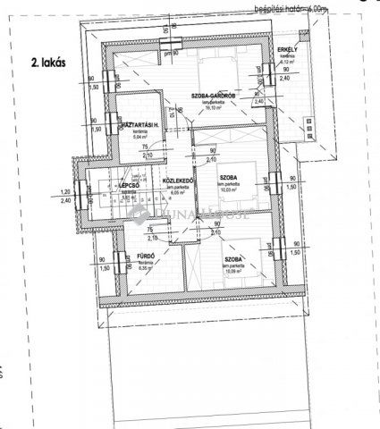
5 szoba
149 m2
építés éve:2025

Részletes adatok

Telekméret: 505 m2
Fűtés: Egyéb
Energetikai besorolás: Nem adta meg a hirdető

Az OTP Bank lakáshitel ajánlataFizetett hirdetés

3628814709
Varga Diána
referens

Érdekel az OTP Bank kedvezményes lakáshitel ajánlata? *

* A kérdésre „Igen” válasz bejelölése esetén, az „Üzenet küldése” gombra kattintva kijelentem, hogy az OTP Bank Nyrt. Adatkezelési tájékoztatójának tartalmát megismertem és tudomásul vettem.

Eladó ikerház leírása

Vecsés legmodernebb fiatalos, családias részén

Vecsésen modern környezetben eladó új építésű családi házak.
A kivitelező sok éves múlttal és rengeteg elégedett ügyféllel rendelkezik, referenciák akár itt a lakóparkban is megtekinthetőek.

Az ikerház mindkét feléhez egy kétállásos garázs tartozik (36nm), a két ingatlan kizárólag itt érintkezik!
Nappali+4hálószoba+gardrób található az otthokban melyből egy szülőihálószobaként funkcionál, mely 16,10nm.
A földszinten van egy nagy 13.57 nm-es részben fedett terasz, az emeleten pedig egy 6,12nm-es erkély mely szintén a szülői hálószobához tartozik.
Az otthonok 149,58 négyzetméteresek mellyekhez saját, privát önálló 505 négyzetméter kertrész tartozik.

Műszaki adatok:

-30as Prototherm tégla falazat

-15cm-es homlokzati szigetelés

-18-cm-es szigetelés az aljzat felől

-8cm-es szigetelés a födém felől

-3 rétegű műanyag nyílászárók kívülről antracit belülről fehér színűek

-elektromos garázskapu antracit színnel

-Hőszivattyús fűtés/hűtés (fan coil)

-2 fürdőszoba

-mosókonyha

-elektromos redőny

-riasztó és kaputelefon kiállás

-térkövezett autóbeálló

Burkolatok/beltéri ajtók/szaniterek még választhatóak.

A lakópark teljesen új modern környezet, játszótérrel, fákkal. Közlekedést tekintve autóval a Gyorsforgalmi út, Üllői út, Gyömrői út az M0ás és a 4-es út 3perc alatt megközelíthető.

Tömegközlekedés 3perc sétára Volánbusz Kőbánya Kispest vasútállomásig közlekedik, 10perc sétára Vecsési vonatállomás, melyről a Nyugati pályaudvarig közlekednek a vonatok.

Felkeltette érdeklődését keressen bizalommal a hét bármely napján!
Átadás: 2026.IV. negyedév.
Érd.: dr. Varga Diána +36/30-199-2080 dr.varga.diana@dh.hu

Referencia szám: HZ025077

Hirdetés feltöltve: 2025. 12. 06. Utoljára módosítva: 2025. 12. 07.

5 szobás ikerházak ára Vecsésen

Ebből az összehasonlításból megtudhatod, hogyan viszonyul a lakás ára a környékbeli ikerházak átlagos árához. Ez nem azt jelenti, hogy ennyivel olcsóbb vagy drágább, mint amennyit a lakás ér, hanem hogy ennyivel tér el a környékbeli átlagtól.

Ennek a m² ára
Vecsés m² ár
940 e Ft
1035 e Ft 9%
Ennek az ára
Vecsés átlagár
140 M Ft m Ft
157.6 m Ft 11%

Az ingatlan elhelyezkedése

Cím: Vecsés

Eladó ikerházak a környékről

Eladó ikerház
Eladó ikerház

Vecsés

105 M Ft
4 szoba
153 m2
Eladó ikerház
Eladó ikerház

Dunaharaszti

124.999 M Ft
4 szoba
105 m2
Eladó ikerház
Eladó ikerház

Vác

175.356 M Ft
5 szoba
165 m2
Eladó ikerház
Eladó ikerház

Szentendre, Szentendre

398 M Ft
5 szoba
267 m2
Eladó ikerház
Eladó ikerház

Vecsés

109.9 M Ft
6 szoba
120 m2
Eladó ikerház
Eladó ikerház

Pécel, Pécel - kertváros

127 M Ft
4 szoba
125 m2
Eladó ikerház
Eladó ikerház

Dunakeszi

149 M Ft
1 + 4 szoba
127 m2
Eladó ikerház
Eladó ikerház

Vecsés

124.99 M Ft
4 szoba
139 m2
Eladó ikerház
Eladó ikerház

Pécel

149.9 M Ft
5 szoba
306 m2
Eladó ikerház
Eladó ikerház

Diósd

206.25 M Ft
5 szoba
184 m2
Eladó ikerház
Eladó ikerház

Solymár

150 M Ft
4 + 2 szoba
252 m2
Eladó ikerház
Eladó ikerház

Mogyoród, Fóti út

188 M Ft
6 szoba
182 m2
Eladó ikerház
Eladó ikerház

Diósd

213.46 M Ft
5 szoba
186 m2
Eladó ikerház
Eladó ikerház

Vecsés

124.99 M Ft
4 szoba
139 m2
Eladó ikerház
Eladó ikerház

Vecsés

105 M Ft
4 szoba
120 m2
Eladó ikerház
Eladó ikerház

Vecsés

149 M Ft
5 szoba
160 m2
Eladó ikerház
Eladó ikerház

Vecsés

67 M Ft
3 szoba
81 m2
Eladó ikerház
Eladó ikerház

Vác

175.356 M Ft
5 szoba
165 m2
Eladó ikerház
Eladó ikerház

Vecsés

149.9 M Ft
5 szoba
181 m2
Eladó ikerház
Eladó ikerház

Érd, Érdligeten található utca

64.9 M Ft
4 szoba
112 m2
Eladó ikerház
Eladó ikerház

Pilisjászfalu

70.563 M Ft
4 szoba
61 m2
Eladó ikerház
Eladó ikerház

Üröm

249.9 M Ft
4 szoba
154 m2
Eladó ikerház
Eladó ikerház

Vecsés

124.99 M Ft
4 szoba
139 m2
Eladó ikerház
Eladó ikerház

Tahitótfalu

88.9 M Ft
4 szoba
110 m2

Falusi CSOK ingatlanok

Eladó családi ház
Eladó családi ház

Ádánd

79 M Ft
4 szoba
140 m2
Eladó családi ház
Eladó családi ház

Somogygeszti

38.6 M Ft
3 + 1 szoba
98 m2
Eladó családi ház
Eladó családi ház

Hegyeshalom

85 M Ft
4 + 1 szoba
123 m2
Eladó családi ház
Eladó családi ház

Somlóvásárhely, Rákóczi utca

41.9 M Ft
3 szoba
103 m2
Eladó családi ház
Eladó családi ház

Csemő

39.9 M Ft
3 szoba
80 m2
Eladó családi ház
Eladó családi ház

Murony

19.9 M Ft
3 szoba
94 m2
Eladó családi ház
Eladó családi ház

Somogyegres

3.9 M Ft
2 szoba
59 m2
Eladó családi ház
Eladó családi ház

Magyarszék

48.5 M Ft
3 + 1 szoba
86 m2