NapForrás 20 - Buda

Eladó ikerház
Vecsés

+ 11 kép 1/14
99 990 000 Ft99.99 M Ft 812 927 Ft/m2
5 szoba
123 m2

Részletes adatok

Állapot:
Közmű: Villany, Csatorna
Övezet: Lakóövezet
Azonosító: 4138_882
Energetikai besorolás: Nem adta meg a hirdető

Az OTP Bank lakáshitel ajánlataFizetett hirdetés

+36 70 850
Kaufmann Norbert
Otthon&City

Érdekel az OTP Bank kedvezményes lakáshitel ajánlata? *

* A kérdésre „Igen” válasz bejelölése esetén, az „Üzenet küldése” gombra kattintva kijelentem, hogy az OTP Bank Nyrt. Adatkezelési tájékoztatójának tartalmát megismertem és tudomásul vettem.

Eladó ikerház leírása

ÚJ ÉPÍTÉSŰ IKERHÁZAK VECSÉSEN – MODERN OTTHON NYUGALOMBAN, KIVÁLÓ HELYEN!
110.000.000 FT HELYETT 99.990.000 FT.
Elhelyezkedés: Vecsés, a közkedvelt Kis-Patak lakópark közvetlen szomszédságában.
Ingatlantípus: Új építésű ikerházfél – NINCS áthallás! Csak a földszinti tárolónál kapcsolódik a két házrész. Az ár a kulcsrakész állapotra vonatkozik és még igény szerint alakítható a belső tér .
Állapot: 35%
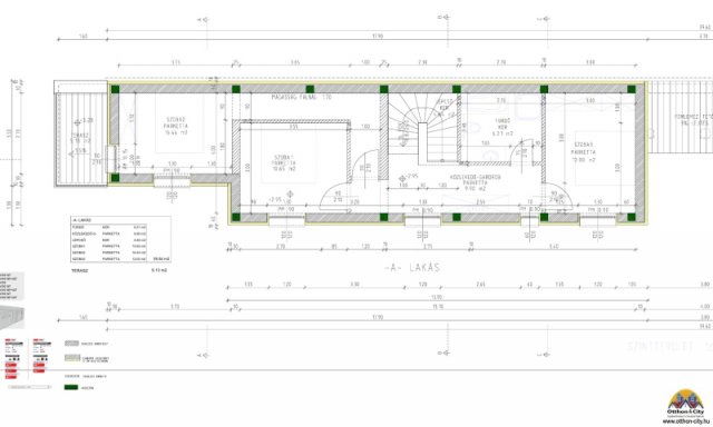
Lakótér: 123 m²
Telek: 200 m² saját kert

Miért épp EZ az otthon?
Ha Ön is egy modern, energiatakarékos és családbarát környezetre vágyik, ne keressen tovább! Ez a kétszintes otthon ideális választás családoknak, fiatal pároknak, de akár befektetőknek is. A környék infrastruktúrája kiváló, a zöldövezet pedig nyugalmat biztosít a mindennapokhoz.

Elrendezés – minden helyiség jól kihasznált és élhető
Földszint:
Tágas amerikai konyhás nappali
2 különálló hálószoba
Fürdőszoba
Előszoba
Közvetlen kijárat a teraszra

Emelet:
3 világos hálószoba
Kényelmes méretű fürdőszoba
Terasz

Felszereltség és extrák – prémium minőség, rugalmas kialakítás

Hőszivattyús padlófűtés minden helyiségben
Hűtő-fűtő klíma
Duplakomfort
Beépített garázs
3 rétegű, 5 légkamrás nyílászárók
Egyedi igényekre szabható burkolatok:
– Meleg burkolatok: 6.000 Ft/m²-ig választhatók
– Hidegburkolatok: 6.000 Ft/m²-ig választhatók
– Fürdőszobai szaniterek: akár 600.000 Ft értékig

Kiknek ajánljuk?
Családoknak – sok szoba, biztonságos, nyugodt környék
Fiatal pároknak – modern otthon, kiváló indulás
Befektetőknek – keresett lokáció, gyorsan kiadható

Ne maradjon le erről a kivételes lehetőségről!
További információért, árért és időpontért várom megkeresését!

Hitel esetén díjmentes ügyintézés. Összes bank ajánlata egy helyen, kedvezményekkel.

Nem adta el ingatlanát? NE ADJA EL PIACI ÁR ALATT! Segítünk. Minden ügyfelünknek ingyenes felmérjük az otthonát! Hívjon vagy írjon, a további információkért

Hirdetés feltöltve: 2025. 04. 29. Utoljára módosítva: 2025. 11. 05.

5 szobás ikerházak ára Vecsésen

Ebből az összehasonlításból megtudhatod, hogyan viszonyul a lakás ára a környékbeli ikerházak átlagos árához. Ez nem azt jelenti, hogy ennyivel olcsóbb vagy drágább, mint amennyit a lakás ér, hanem hogy ennyivel tér el a környékbeli átlagtól.

Ennek a m² ára
Vecsés m² ár
813 e Ft
973 e Ft 16%
Ennek az ára
Vecsés átlagár
99.99 M Ft m Ft
149.8 m Ft 33%

Az ingatlan elhelyezkedése

Cím: Vecsés

Eladó ikerházak a környékről

Eladó ikerház
Eladó ikerház

Dunaharaszti

124.999 M Ft
4 szoba
105 m2
Eladó ikerház
Eladó ikerház

Vecsés

119 M Ft
6 szoba
147 m2
Eladó ikerház
Eladó ikerház

Vecsés

69.9 M Ft
4 szoba
96 m2
Eladó ikerház
Eladó ikerház

Solymár

150 M Ft
4 + 2 szoba
252 m2
Eladó ikerház
Eladó ikerház

Vecsés

110 M Ft
4 szoba
120 m2
Eladó ikerház
Eladó ikerház

Vecsés

129.9 M Ft
4 szoba
126 m2
Eladó ikerház
Eladó ikerház

Szentendre, Szentendre

398 M Ft
5 szoba
267 m2
Eladó ikerház
Eladó ikerház

Vecsés

129.9 M Ft
4 szoba
139 m2
Eladó ikerház
Eladó ikerház

Diósd

213.46 M Ft
5 szoba
186 m2
Eladó ikerház
Eladó ikerház

Vác

149.9 M Ft
5 szoba
202 m2
Eladó ikerház
Eladó ikerház

Mogyoród, Fóti út

188 M Ft
6 szoba
182 m2
Eladó ikerház
Eladó ikerház

Vecsés

110 M Ft
4 szoba
120 m2
Eladó ikerház
Eladó ikerház

Vác

94.5 M Ft
4 + 1 szoba
126 m2
Eladó ikerház
Eladó ikerház

Pécel, Pécel - kertváros

127 M Ft
4 szoba
125 m2
Eladó ikerház
Eladó ikerház

Vecsés

119 M Ft
5 szoba
147 m2
Eladó ikerház
Eladó ikerház

Tahitótfalu

88.9 M Ft
4 szoba
110 m2
Eladó ikerház
Eladó ikerház

Vecsés

198 M Ft
5 szoba
141 m2
Eladó ikerház
Eladó ikerház

Vecsés

119 M Ft
6 szoba
147 m2
Eladó ikerház
Eladó ikerház

Vecsés

110 M Ft
4 szoba
153 m2
Eladó ikerház
Eladó ikerház

Vecsés

119 M Ft
6 szoba
147 m2
Eladó ikerház
Eladó ikerház

Vác

175.356 M Ft
5 szoba
165 m2
Eladó ikerház
Eladó ikerház

Vác

175.356 M Ft
5 szoba
165 m2
Eladó ikerház
Eladó ikerház

Vecsés

119 M Ft
6 szoba
147 m2
Eladó ikerház
Eladó ikerház

Vecsés

129.9 M Ft
4 szoba
139 m2

Falusi CSOK ingatlanok

Eladó családi ház
Eladó családi ház

Tarján

31.5 M Ft
3 szoba
120 m2
Eladó ikerház
Eladó ikerház

Besnyő

79.6 M Ft
5 szoba
117 m2
Eladó családi ház
Eladó családi ház

Badacsonytomaj

124.9 M Ft
4 + 1 szoba
138 m2
Eladó családi ház
Eladó családi ház

Kenyeri

39.9 M Ft
3 szoba
94 m2
Eladó családi ház
Eladó családi ház

Bodajk

67 M Ft
2 szoba
72 m2
Eladó családi ház
Eladó családi ház

Mencshely

99 M Ft
3 szoba
126 m2
Eladó családi ház
Eladó családi ház

Pécsvárad

140 M Ft
2 szoba
79 m2
Eladó családi ház
Eladó családi ház

Badacsonytördemic

182.36 M Ft
4 szoba
160 m2