Metrodom

Eladó ikerház
Vecsés

+ 13 kép 1/16
120 000 000 Ft120 M Ft 1 025 641 Ft/m2
4 szoba
117 m2
építés éve:2025

Részletes adatok

Telekméret: 307 m2
Fűtés: Egyéb
Energetikai besorolás: Nem adta meg a hirdető

Az OTP Bank lakáshitel ajánlataFizetett hirdetés

+36 1 690
Szőke Zoltán
referens

Érdekel az OTP Bank kedvezményes lakáshitel ajánlata? *

* A kérdésre „Igen” válasz bejelölése esetén, az „Üzenet küldése” gombra kattintva kijelentem, hogy az OTP Bank Nyrt. Adatkezelési tájékoztatójának tartalmát megismertem és tudomásul vettem.

Eladó ikerház leírása

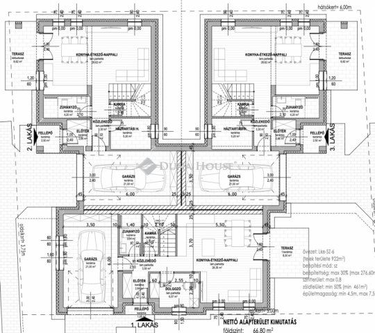
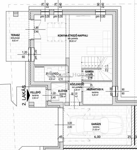
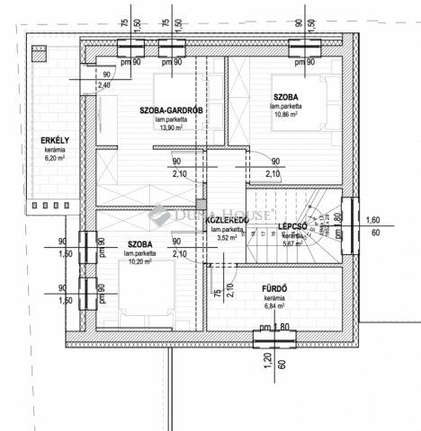
Vecsés legmodernebb fiatalos, családias részénVecsésen modern környezetben eladó új építésű családi házak.A kivitelező sok éves múlttal és rengeteg elégedett ügyféllel rendelkezik, referenciák akár itt a lakóparkban is megtekinthetőek.1-es ház127 négyzetméter hasznos lakótérrel rendelkezik, mely egy 307 négyzetméteres telken fekszik. A földszinten a nappaliból egy 8 négyzetméteres teraszon keresztül juthatunk ki a saját privát kertünkbe, továbbá az emeleten egy 8,19 négyzetméteres tetőterasz is tartozik hozzá.Nappali+4 hálószoba+ gardrób, 21nm garázs, szülőiháló.22 méter saját utcafront!2-es ház117,03 négyzetméter hasznos lakótérrel rendelkezik, mely egy 307 négyzetméteres telken fekszik. A földszinten a nappaliból egy 8,62 négyzetméteres teraszon keresztül juthatunk ki a saját privát kertünkbe, továbbá az emeleten egy 6,20 négyzetméteres erkély is tartozik hozzá.Nappali+3hálószoba+gardrób, 21nm garázs, szülőiháló.3-as ház117,03 négyzetméter hasznos lakótérrel rendelkezik, mely egy 307 négyzetméteres telken fekszik. A földszinten a nappaliból egy 8,62 négyzetméteres teraszon keresztül juthatunk ki a saját privát kertünkbe, továbbá az emeleten egy 6,20 négyzetméteres erkély is tartozik hozzá.Nappali+3hálószoba+gardrób, 21nm garázs, szülői háló.Műszaki adatok:-30as Prototherm tégla falazat-15cm-es homlokzati szigetelés-18-cm-es szigetelés az aljzat felől-8cm-es szigetelés a födém felől-3 rétegű műanyag nyílászárók kívülről antracit belülről fehér színűek-elektromos garázskapu antracit színnel-Hőszivattyús fűtés/hűtés (fan coil)-2 fürdőszoba-mosókonyha-riasztó és kaputelefon kiállás-térkövezett autóbeállóBurkolatok/beltéri ajtók/szaniterek még választhatóak.A lakópark teljesen új modern környezet, játszótérrel, fákkal. Közlekedést tekintve autóval a Gyorsforgalmi út, Üllői út, Gyömrői út az M0ás és a 4-es út 3perc alatt megközelíthető.Tömegközlekedés 3perc sétára Volánbusz Kőbánya Kispest vasútállomásig közlekedik, 10perc sétára Vecsési vonatállomás, melyről a Nyugati pályaudvarig közlekednek a vonatok.Felkeltette érdeklődését keressen bizalommal a hét bármely napján!Átadás: 2026.IV. negyedév

120000000 Ft
Érd:Szőke Zoltán +36-30-507-3286

Referencia szám: HZ051663-ZE

Hirdetés feltöltve: 2025. 10. 13. Utoljára módosítva: 2025. 12. 04.

4 szobás ikerházak ára Vecsésen

Ebből az összehasonlításból megtudhatod, hogyan viszonyul a lakás ára a környékbeli ikerházak átlagos árához. Ez nem azt jelenti, hogy ennyivel olcsóbb vagy drágább, mint amennyit a lakás ér, hanem hogy ennyivel tér el a környékbeli átlagtól.

Ennek a m² ára
Vecsés m² ár
1026 e Ft
912 e Ft -12%
Ennek az ára
Vecsés átlagár
120 M Ft m Ft
127.4 m Ft 6%

Az ingatlan elhelyezkedése

Cím: Vecsés

Eladó ikerházak a környékről

Eladó ikerház
Eladó ikerház

Vecsés

119 M Ft
6 szoba
147 m2
Eladó ikerház
Eladó ikerház

Vecsés

109.9 M Ft
6 szoba
120 m2
Eladó ikerház
Eladó ikerház

Vecsés

124.99 M Ft
4 szoba
139 m2
Eladó ikerház
Eladó ikerház

Vecsés

119 M Ft
6 szoba
147 m2
Eladó ikerház
Eladó ikerház

Pilisjászfalu

70.563 M Ft
4 szoba
61 m2
Eladó ikerház
Eladó ikerház

Vecsés

119 M Ft
5 + 1 szoba
150 m2
Eladó ikerház
Eladó ikerház

Solymár

150 M Ft
4 + 2 szoba
252 m2
Eladó ikerház
Eladó ikerház

Dunaharaszti

124.999 M Ft
4 szoba
105 m2
Eladó ikerház
Eladó ikerház

Dunakeszi

149 M Ft
1 + 4 szoba
127 m2
Eladó ikerház
Eladó ikerház

Diósd

206.25 M Ft
5 szoba
184 m2
Eladó ikerház
Eladó ikerház

Szentendre

359 M Ft
5 szoba
289 m2
Eladó ikerház
Eladó ikerház

Pécel

149.9 M Ft
5 szoba
306 m2
Eladó ikerház
Eladó ikerház

Vecsés

69.9 M Ft
4 szoba
96 m2
Eladó ikerház
Eladó ikerház

Vecsés

124.99 M Ft
4 szoba
126 m2
Eladó ikerház
Eladó ikerház

Rád

100 M Ft
4 szoba
152 m2
Eladó ikerház
Eladó ikerház

Vecsés

119 M Ft
6 szoba
147 m2
Eladó ikerház
Eladó ikerház

Mogyoród, Fóti út

188 M Ft
6 szoba
182 m2
Eladó ikerház
Eladó ikerház

Vác

175.356 M Ft
5 szoba
165 m2
Eladó ikerház
Eladó ikerház

Vác

96.5 M Ft
4 + 1 szoba
129 m2
Eladó ikerház
Eladó ikerház

Vecsés

69.9 M Ft
4 szoba
96 m2
Eladó ikerház
Eladó ikerház

Tahitótfalu

88.9 M Ft
4 szoba
110 m2
Eladó ikerház
Eladó ikerház

Érd, Érdligeten található utca

64.9 M Ft
4 szoba
112 m2
Eladó ikerház
Eladó ikerház

Vecsés

124.99 M Ft
4 szoba
139 m2
Eladó ikerház
Eladó ikerház

Vecsés

105 M Ft
4 szoba
153 m2

Falusi CSOK ingatlanok

Eladó családi ház
Eladó családi ház

Pórszombat

20.5 M Ft
3 szoba
88 m2
Eladó családi ház
Eladó családi ház

Söpte

94.9 M Ft
4 szoba
94 m2
Eladó családi ház
Eladó családi ház

Dunaszentbenedek

24.9 M Ft
2 szoba
85 m2
Eladó családi ház
Eladó családi ház

Ceglédbercel, Iskola utca

109 M Ft
5 szoba
133 m2
Eladó családi ház
Eladó családi ház

Mályi

84.9 M Ft
4 szoba
100 m2
Eladó családi ház
Eladó családi ház

Kenyeri

39.9 M Ft
3 szoba
94 m2
Eladó családi ház
Eladó családi ház

Tápiógyörgye

32 M Ft
3 szoba
86 m2
Eladó családi ház
Eladó családi ház

Nyáregyháza

48.5 M Ft
3 + 3 szoba
155 m2