Aerogate Homes

Eladó ikerház
Vasszécseny

Figyelem!

Ez az ingatlan a 2019.07.01-től induló falusi CSOK által támogatott településen található

+ 5 kép 1/8
79 000 000 Ft79 M Ft 918 605 Ft/m2
4 szoba
86 m²
építés éve:2026

Részletes adatok

Telekméret: 330 m2
Fűtés: Gázkazán
Parkolás: Kocsibeálló
Energetikai besorolás: Nem adta meg a hirdető

Az OTP Bank lakáshitel ajánlataFizetett hirdetés

+36 70 575
Berkéné Szűcs Judit
referens

Érdekel az OTP Bank kedvezményes lakáshitel ajánlata? *

* A kérdésre „Igen” válasz bejelölése esetén, az „Üzenet küldése” gombra kattintva kijelentem, hogy az OTP Bank Nyrt. Adatkezelési tájékoztatójának tartalmát megismertem és tudomásul vettem.

Eladó ikerház leírása

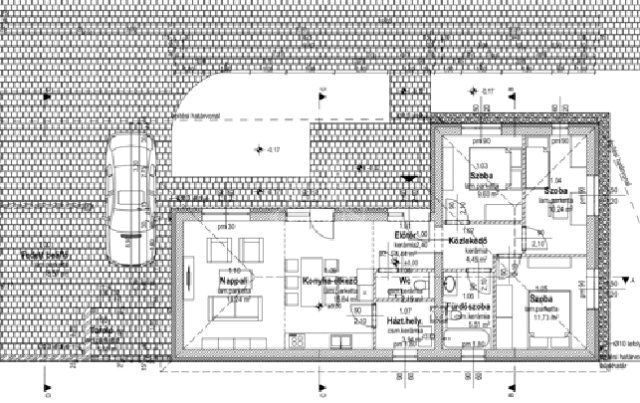
Dinamikusan fejlődő településen Vasszécsenyben, nyugodt környéken osztott telken családiházak eladók. A jól átgondolt tervezésnek köszönhetően a házak fedett gépkocsibeállókkal érintkeznek. Az ingatlanok magas műszaki tartalommal épülnek. A sávalapra épülő lakóegységek Porotherm téglából készülnek, vakolt felületekkel. A tető héjazata Bramac Római Novo cseréppel történik. Három rétegű nyílászárói fokozottan hang-és hőszigetreltek, motoros aluredőnyökkel felszereltek. Homlokzatára Austrotherm EPS hőszigetelő rendszer kerül, 15 cm vastagsággal. Födémere 30 cm szigetelést terveztek. Fűtéséről, meleg vízellátásáról kondenzációs gázkazán gondoskodik, padlófűtéses hőleadással. Az ingatlan nappaliában hűtő-fűtő klíma gondoskodik a kellemes hőmérsékletről. Elektromos ellátottsága 3x25 Amperrel történik. Az ingatlanokat vízlágyítókkal is felszerelik. A házak 86 m2 nagyságúak, 15 m2 terasszal. Három hálószoba + nappali kialakításúak. Az utcafronti házhoz 330 m2 saját kert tartozik. A hátsó ingatlan 755 m2-es telekkel rendelkezik. Térkövezés bizonyos hányada, tereprendezés a vételár részét képezi. A Beruházó rugalmasságának köszönhetően belső módosításokra van lehetőség. ...TOVÁBBI, TÖBBEZRES INGATLAN KÍNÁLAT: www.gdn-ingatlan.hu - GDN azonosító: 392605

Hirdetés feltöltve: 2026. 02. 19. Utoljára módosítva: 2026. 04. 01.

Az ingatlan elhelyezkedése

Cím: Vasszécseny

Eladó ingatlanok a környékről

Szombathely
Eladó ikerház

Szombathely

169 M Ft
4 szoba
180 m²
Szombathely
Eladó téglalakás

Szombathely

54.9 M Ft
3 szoba
89 m²
Szombathely
Eladó téglalakás

Szombathely

54.9 M Ft
2 szoba
59 m²
Szombathely
Eladó téglalakás

Szombathely

42.9 M Ft
2 szoba
54 m²
Peresznye, Kivételes családi ház az osztrák határ közelében – 240 m² élettér, nyugodt környezet Peresznyén
Eladó családi ház

Peresznye

120 M Ft
6 szoba
360 m²
Szombathely, Alsóhegy-Középhegy kertváros, Bethlen Gábor utca
Eladó garázs

Szombathely

12 M Ft
26 m²
Nemeskocs
Eladó családi ház

Nemeskocs

47.5 M Ft
2 + 1 szoba
92 m²
Szombathely
Eladó családi ház

Szombathely

29.9 M Ft
2 szoba
67 m²
Szombathely
Eladó téglalakás

Szombathely

48 M Ft
3 szoba
65 m²
Vasvár
Eladó ikerház

Vasvár

70 M Ft
4 + 1 szoba
160 m²
Szombathely
Eladó családi ház

Szombathely

79.9 M Ft
3 szoba
159 m²
Celldömölk
Eladó családi ház

Celldömölk

79 M Ft
3 + 1 szoba
199 m²
Celldömölk
Eladó családi ház

Celldömölk

45.9 M Ft
4 szoba
176 m²
Szombathely, Alsóhegy-Középhegy kertváros, Bethlen Gábor utca
Eladó garázs

Szombathely

12 M Ft
26 m²
Szombathely, Alsóhegy-Középhegy kertváros, Bethlen Gábor utca
Eladó garázs

Szombathely

10.9 M Ft
20 m²
Szombathely
Eladó ikerház

Szombathely

73.9 M Ft
4 szoba
79 m²
Szombathely
Eladó ikerház

Szombathely

91.15 M Ft
4 szoba
90 m²
Szombathely
Eladó családi ház

Szombathely

65.602 M Ft
1 + 2 szoba
91 m²
Szombathely
Eladó ikerház

Szombathely

80.7 M Ft
4 szoba
80 m²
Söpte
Eladó ikerház

Söpte

79.9 M Ft
3 szoba
80 m²
Szombathely
Eladó ikerház

Szombathely

169 M Ft
5 szoba
180 m²
Szombathely
Eladó téglalakás

Szombathely

83.99 M Ft
4 szoba
135 m²
Uraiújfalu
Eladó ikerház

Uraiújfalu

15.9 M Ft
2 szoba
100 m²
Katafa
Eladó ikerház

Katafa

45.99 M Ft
5 + 1 szoba
170 m²

Falusi CSOK ingatlanok

Tornyiszentmiklós
Eladó családi ház

Tornyiszentmiklós

29.9 M Ft
3 szoba
110 m²
Devecser
Eladó családi ház

Devecser

36.9 M Ft
3 szoba
75 m²
Zsámbok
Eladó családi ház

Zsámbok

63.5 M Ft
4 szoba
108 m²
Jakabszállás
Eladó családi ház

Jakabszállás

105 M Ft
6 szoba
180 m²
Sződ
Eladó családi ház

Sződ

116 M Ft
5 szoba
136 m²
Gesztely
Eladó családi ház

Gesztely

12.5 M Ft
3 szoba
65 m²
Kunadacs
Eladó családi ház

Kunadacs

74 M Ft
5 szoba
220 m²
Kislippó
Eladó családi ház

Kislippó

17.99 M Ft
3 szoba
100 m²

Falusi CSOK ingatlanok

Nagybaracska
Eladó családi ház

Nagybaracska

35 M Ft
3 szoba
110 m²
Zsámbok
Eladó családi ház

Zsámbok

63.5 M Ft
4 szoba
108 m²
Tabdi
Eladó családi ház

Tabdi

95 M Ft
45 szoba
1490 m²
Apaj
Eladó családi ház

Apaj

52.9 M Ft
3 szoba
70 m²
Öreglak
Eladó családi ház

Öreglak

110 M Ft
8 szoba
205 m²
Marcalgergelyi
Eladó családi ház

Marcalgergelyi

31 M Ft
2 + 1 szoba
120 m²
Szigetbecse
Eladó családi ház

Szigetbecse

59 M Ft
3 szoba
70 m²
Hegyeshalom, Margaréta utca 12
Eladó téglalakás

Hegyeshalom

32.89 M Ft
1 szoba
27 m²