Astora Márvány8

Eladó ikerház
Vácrátót

96 500 000 Ft96.5 M Ft 1 191 358 Ft/m2
4 szoba
81 m2
építés éve:2025

Részletes adatok

Telekméret: 381 m2
Fűtés: Egyéb
Energetikai besorolás: A+

Az OTP Bank lakáshitel ajánlataFizetett hirdetés

+36 20 220
Szabó Sándor
referens

Érdekel az OTP Bank kedvezményes lakáshitel ajánlata? *

* A kérdésre „Igen” válasz bejelölése esetén, az „Üzenet küldése” gombra kattintva kijelentem, hogy az OTP Bank Nyrt. Adatkezelési tájékoztatójának tartalmát megismertem és tudomásul vettem.

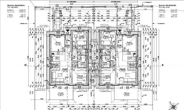
Eladó ikerház leírása

ÚJ ÉPÍTÉSŰ FÖLDSZINTES CSALÁDI HÁZ A SZENT ISTVÁN LAKÓPARKBAN ELADÓ!
Vácrátót egyik legfelkapottabb részén, a Szent István-LAKÓPARKBAN várja Önt ez az új építésű családi ház.

Az ingatlan amerikai konyhás nappaliból, 3 hálószobából és 2 fürdőszobából áll!
A nappalihoz terasz kapcsolódik.
AZ IKERFELEK CSAK TÁROLÓKKAL KAPCSOLÓDNAK, nincs közös fal a szomszéddal, nincs áthallás!

A műszaki tartalom:

Porotherm 30 külső falazat, 12 cm grafitos dryvit szigetelés.
Fehér színű műanyag ablakok 3 rétegű hőszigetelt üvegezéssel.
Vasbetonfödém 25 cm ásványgyapot szigeteléssel, betoncserép fedés.
Riasztó előkészítés, klíma kiállás.
H tarifás mérőóra.
Az otthon melegéről hőszivattyú gondoskodik, padlófűtéssel, ami kényelmes és energiatakarékos megoldás.
A gépkocsi tárolása az udvarban, térkövezett beállón lehetséges.
Utcafronti és telkeket elválasztó kerítés is épül.
Burkolatok, szaniterek, belső ajtók még választhatóak.

Céges építkezés.
Jelenleg aktuális állami támogatások, kamattámogatott hitelek igénybe vehetőek.
CSOK+ és Otthon Start hitel és Babaváró ügyintézésben díjmentes segítséget nyújtunk.

Referenciákkal rendelkező, megbízható építtetőtől.
Átadás 2026. I. negyedév.

Vácrátót a Budapesti Agglomeráció területén, a Gödöllői-dombság peremén fekvő település, Vác és Veresegyház között, igazán szép természeti környezetben.
Az ide látogatókat rendezett, tiszta utcák, közterületek, felújított középületek, műemlék épületek, valamint a méltán híres Nemzeti Botanikus Kert fogadja.
A rohamosan fejlődő Szent István lakópark Vácrátót új parcellázású része, a település szélén, természetvédelmi terület mellett helyezkedik el, szép panorámával rendelkezik.
Iskola, óvoda, bolt, buszmegálló gyalogosan 10 perc alatt elérhető.

Keressen bizalommal, akár hétvégén is!
Érd.: Szabó Sándor +3620-220 4440

Referencia szám: M313969-ZE

Hirdetés feltöltve: 2026. 01. 26. Utoljára módosítva: 2026. 01. 26.

4 szobás ikerházak ára Vácrátóton

Ebből az összehasonlításból megtudhatod, hogyan viszonyul a lakás ára a környékbeli ikerházak átlagos árához. Ez nem azt jelenti, hogy ennyivel olcsóbb vagy drágább, mint amennyit a lakás ér, hanem hogy ennyivel tér el a környékbeli átlagtól.

Ennek a m² ára
Vácrátót m² ár
1191 e Ft
1093 e Ft -9%
Ennek az ára
Vácrátót átlagár
96.5 M Ft m Ft
96.1 m Ft 0%

Az ingatlan elhelyezkedése

Cím: Vácrátót

Eladó ikerházak a környékről

Eladó ikerház
Eladó ikerház

Vácrátót

119 M Ft
4 szoba
77 m2
Eladó ikerház
Eladó ikerház

Pécel, Pécel - kertváros

127 M Ft
4 szoba
125 m2
Eladó ikerház
Eladó ikerház

Dunakeszi

149 M Ft
1 + 4 szoba
127 m2
Eladó ikerház
Eladó ikerház

Vácrátót

119 M Ft
4 szoba
111 m2
Eladó ikerház
Eladó ikerház

Vácrátót

94.9 M Ft
2 + 3 szoba
108 m2
Eladó ikerház
Eladó ikerház

Vácrátót

85 M Ft
2 + 2 szoba
96 m2
Eladó ikerház
Eladó ikerház

Vácrátót

92 M Ft
2 + 2 szoba
96 m2
Eladó ikerház
Eladó ikerház

Mogyoród

129 M Ft
5 szoba
123 m2
Eladó ikerház
Eladó ikerház

Vácrátót

94.9 M Ft
4 szoba
108 m2
Eladó ikerház
Eladó ikerház

Pilisjászfalu

70.563 M Ft
4 szoba
61 m2
Eladó ikerház
Eladó ikerház

Vácrátót

85.9 M Ft
4 szoba
85 m2
Eladó ikerház
Eladó ikerház

Szentendre

718 M Ft
10 + 2 szoba
578 m2
Eladó ikerház
Eladó ikerház

Vác

96.7 M Ft
4 + 1 szoba
126 m2
Eladó ikerház
Eladó ikerház

Vácrátót

99.9 M Ft
5 szoba
110 m2
Eladó ikerház
Eladó ikerház

Vácrátót

85.5 M Ft
4 szoba
90 m2
Eladó ikerház
Eladó ikerház

Vác

175.356 M Ft
5 szoba
165 m2
Eladó ikerház
Eladó ikerház

Vácrátót

99.9 M Ft
4 szoba
112 m2
Eladó ikerház
Eladó ikerház

Vácrátót

86.5 M Ft
4 szoba
87 m2
Eladó ikerház
Eladó ikerház

Vácrátót

79.9 M Ft
4 szoba
88 m2
Eladó ikerház
Eladó ikerház

Szentendre

179 M Ft
5 + 1 szoba
147 m2
Eladó ikerház
Eladó ikerház

Vácrátót

92 M Ft
2 + 2 szoba
96 m2
Eladó ikerház
Eladó ikerház

Pomáz

129.5 M Ft
4 szoba
100 m2
Eladó ikerház
Eladó ikerház

Vácrátót

119 M Ft
4 szoba
77 m2
Eladó ikerház
Eladó ikerház

Vác

175.356 M Ft
5 szoba
165 m2

Falusi CSOK ingatlanok

Eladó családi ház
Eladó családi ház

Eplény

99.9 M Ft
6 szoba
163 m2
Eladó családi ház
Eladó családi ház

Lesenceistvánd

75 M Ft
2 szoba
90 m2
Eladó családi ház
Eladó családi ház

Kenyeri

39.9 M Ft
3 szoba
94 m2
Eladó családi ház
Eladó családi ház

Szakmár

12.9 M Ft
3 + 1 szoba
90 m2
Eladó családi ház
Eladó családi ház

Nagyváty, Kossuth utca

51.9 M Ft
4 szoba
125 m2
Eladó családi ház
Eladó családi ház

Segesd

14.3 M Ft
3 szoba
100 m2
Eladó családi ház
Eladó családi ház

Kondorfa

28.5 M Ft
3 + 1 szoba
65 m2
Eladó családi ház
Eladó családi ház

Berzence

29.9 M Ft
6 szoba
136 m2