Astora Art House

Eladó ikerház
Vácrátót

+ 5 kép 1/8
99 500 000 Ft99.5 M Ft 1 093 407 Ft/m2
4 szoba
91 m2
építés éve:2026

Részletes adatok

Telekméret: 429 m2
Fűtés: Egyéb
Közmű: Víz, Villany, Csatorna
Energetikai besorolás: Nem adta meg a hirdető

Az OTP Bank lakáshitel ajánlataFizetett hirdetés

+36 70 418
Kovács Péter
referens

Érdekel az OTP Bank kedvezményes lakáshitel ajánlata? *

* A kérdésre „Igen” válasz bejelölése esetén, az „Üzenet küldése” gombra kattintva kijelentem, hogy az OTP Bank Nyrt. Adatkezelési tájékoztatójának tartalmát megismertem és tudomásul vettem.

Eladó ikerház leírása

Vácrátóton a Szent István lakóparkban épülő ikerház mindkét fele eladó!

A két lakás csak A KÜLSŐ TÁROLÓVAL kapcsolódik egymáshoz!!

CÉGES ÉPÍTKEZÉS, a 2024-től aktuális állami támogatások valamint kedvezményes, kamattámogatott hitelek felvehetőek – akár a 3%-os OTTHON START hitel, CSOK PLUS, babaváró is igényelhető, az ügyintézésben díjmentesen segítünk!

Az építő munkájára jellemző a megbízhatóság és igényesség, leinformálható, referencia házai megtekinthetők.

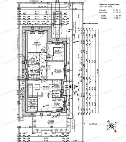
A lakások 91 nm-es lakóterülettel rendelkeznek + 16,09 nm terasz + 1,89 nm külső tároló, amerikai-konyhás nappali + 3 szobával, DUPLA-KOMFORTOS elrendezéssel, 429 nm-es saját telekrészekkel.

Rövid műszaki tartalom:
Az épület vasbeton sávalappal, 30-as Porotherm tégla falazattal, külső dryvit szigeteléssel épül.
A tetőszerkezet 30°-os hajlásszögű kontyolt nyeregtető, antracit színű betoncserép-fedéssel.
Az ablakok fehér színű, műanyag szerkezetű, hőszigetelt 3 légkamrás, meleg peremes, 3 rétegű üvegezéssel.
Az ingatlan fűtéséről és meleg víz ellátásáról hőszivattyú gondoskodik, hőátadás padlófűtésen keresztül történik. H tarifás villanyóra is felszerelésre kerül.

A vételár ezen felül tartalmazza: klíma-előkészítés, elektromos redőnykiállás, riasztó előkészítés.

Parkolás: zárt udvari, térkövezett beállón kerül kialakításra.

A belső burkolatok, beltéri ajtók igény szerint választhatók, a belső műszaki tartalomban vállalt összeghatárig a vételár részét képezve.

Ára: 99.500.000.- Ft/lakás
Azonosító: 4622/5

Hirdetés feltöltve: 2026. 01. 06. Utoljára módosítva: 2026. 01. 21.

4 szobás ikerházak ára Vácrátóton

Ebből az összehasonlításból megtudhatod, hogyan viszonyul a lakás ára a környékbeli ikerházak átlagos árához. Ez nem azt jelenti, hogy ennyivel olcsóbb vagy drágább, mint amennyit a lakás ér, hanem hogy ennyivel tér el a környékbeli átlagtól.

Ennek a m² ára
Vácrátót m² ár
1093 e Ft
1093 e Ft 0%
Ennek az ára
Vácrátót átlagár
99.5 M Ft m Ft
96.1 m Ft -4%

Az ingatlan elhelyezkedése

Cím: Vácrátót

Eladó ikerházak a környékről

Eladó ikerház
Eladó ikerház

Mogyoród

129 M Ft
5 szoba
123 m2
Eladó ikerház
Eladó ikerház

Vácrátót

79.9 M Ft
4 szoba
88 m2
Eladó ikerház
Eladó ikerház

Pécel

149.9 M Ft
5 szoba
306 m2
Eladó ikerház
Eladó ikerház

Dunakeszi

149 M Ft
1 + 4 szoba
127 m2
Eladó ikerház
Eladó ikerház

Diósd

213.46 M Ft
5 szoba
186 m2
Eladó ikerház
Eladó ikerház

Vácrátót

86.5 M Ft
4 szoba
87 m2
Eladó ikerház
Eladó ikerház

Mogyoród

135 M Ft
5 szoba
137 m2
Eladó ikerház
Eladó ikerház

Pomáz

129.5 M Ft
4 szoba
100 m2
Eladó ikerház
Eladó ikerház

Vácrátót

95.8 M Ft
4 szoba
95 m2
Eladó ikerház
Eladó ikerház

Szentendre

179 M Ft
5 + 1 szoba
147 m2
Eladó ikerház
Eladó ikerház

Pécel, Pécel - kertváros

127 M Ft
4 szoba
125 m2
Eladó ikerház
Eladó ikerház

Vácrátót

115 M Ft
2 + 2 szoba
97 m2
Eladó ikerház
Eladó ikerház

Vácrátót

94.9 M Ft
4 szoba
108 m2
Eladó ikerház
Eladó ikerház

Vácrátót

99.9 M Ft
5 szoba
112 m2
Eladó ikerház
Eladó ikerház

Vácrátót

119 M Ft
4 szoba
77 m2
Eladó ikerház
Eladó ikerház

Vác

99.7 M Ft
4 + 1 szoba
129 m2
Eladó ikerház
Eladó ikerház

Vácrátót

119 M Ft
4 szoba
111 m2
Eladó ikerház
Eladó ikerház

Szentendre

718 M Ft
10 + 2 szoba
578 m2
Eladó ikerház
Eladó ikerház

Diósd

206.25 M Ft
5 szoba
184 m2
Eladó ikerház
Eladó ikerház

Vácrátót

94.9 M Ft
2 + 3 szoba
108 m2
Eladó ikerház
Eladó ikerház

Vácrátót

93.8 M Ft
4 szoba
95 m2
Eladó ikerház
Eladó ikerház

Vácrátót

94.9 M Ft
4 szoba
108 m2
Eladó ikerház
Eladó ikerház

Vácrátót

92 M Ft
2 + 2 szoba
96 m2
Eladó ikerház
Eladó ikerház

Vác

175.356 M Ft
5 szoba
165 m2

Falusi CSOK ingatlanok

Eladó családi ház
Eladó családi ház

Somogyhárságy

22.9 M Ft
3 szoba
130 m2
Eladó családi ház
Eladó családi ház

Kengyel

22.9 M Ft
3 szoba
100 m2
Eladó téglalakás
Eladó téglalakás

Várbalog

48.9 M Ft
2 szoba
65 m2
Eladó családi ház
Eladó családi ház

Villány

31 M Ft
1 szoba
35 m2
Eladó családi ház
Eladó családi ház

Villány

45 M Ft
4 szoba
124 m2
Eladó családi ház
Eladó családi ház

Gádoros

30 M Ft
3 szoba
100 m2
Eladó családi ház
Eladó családi ház

Ádánd

69.9 M Ft
6 szoba
251 m2
Eladó családi ház
Eladó családi ház

Kaposgyarmat

695 M Ft
6 szoba
610 m2