Eladó ikerház
Vácrátót

1/2
82 500 000 Ft82.5 M Ft 1 057 692 Ft/m2
4 szoba
78 m2
építés éve:2025

Részletes adatok

Telekméret: 400 m2
Fűtés: Egyéb
Parkolás: Kocsibeálló
Közmű: Víz, Gáz, Villany, Csatorna, Szélessáv, KábelTV, Telefon
Energetikai besorolás: Nem adta meg a hirdető

Az OTP Bank lakáshitel ajánlataFizetett hirdetés

+36 20 249
Gajdos Gábor
referens

Érdekel az OTP Bank kedvezményes lakáshitel ajánlata? *

* A kérdésre „Igen” válasz bejelölése esetén, az „Üzenet küldése” gombra kattintva kijelentem, hogy az OTP Bank Nyrt. Adatkezelési tájékoztatójának tartalmát megismertem és tudomásul vettem.

Eladó ikerház leírása

Kedves Érdeklődő!

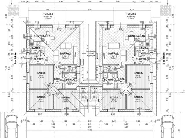
Megvételre kínálok egy nappali +3 szobás, csak tárolón érintkező ikerházat, Vácrátóton a lakóparkban, erdő melletti telken!

Az ingatlan építése hamarosan kezdődik, korábban megépült referencia épület megtekinthető!

A ház kedvelt alaprajzú mivel a lakótereknek közös fala nincsen, a házak közötti tárolóba a gépészet kerül elhelyezésre.

Alaprajz szerint három hálószoba, amerikai konyhás nappali, hozzá tartozó terasz, fürdőszoba, külön wc helyiség épül meg.

Az épület tégla építésű, tégla válaszfalakkal, betonfödémmel épül meg, betoncserép fedéssel, energetikailag hatékony nyílászárókkal, korszerű hőszigetelő rendszerrel, így egy alacsony rezsivel fentartható ingatlanról van szó. Padlófűtést, és a melegvizet hőszivattyús rendszer biztosítja.

Belső kialakítás vevő igényei szerint, választható burkolatokkal, szaniterekkel, és belső ajtókkal, megtekintéskor átadott műszaki tartalom szerint.

CSOK+, Otthon Start hitel, babaváró, illetékmentesség igényelhető, ügyintézésben segítünk!

Ha szeretné az építkezést, telket megnézni, vagy kérdése van kérem keressen akár hétvégén is!

Hirdetés feltöltve: 2025. 09. 11. Utoljára módosítva: 2025. 10. 07.

4 szobás ikerházak ára Vácrátóton

Ebből az összehasonlításból megtudhatod, hogyan viszonyul a lakás ára a környékbeli ikerházak átlagos árához. Ez nem azt jelenti, hogy ennyivel olcsóbb vagy drágább, mint amennyit a lakás ér, hanem hogy ennyivel tér el a környékbeli átlagtól.

Ennek a m² ára
Vácrátót m² ár
1058 e Ft
1022 e Ft -3%
Ennek az ára
Vácrátót átlagár
82.5 M Ft m Ft
89.9 m Ft 8%

Az ingatlan elhelyezkedése

Cím: Vácrátót

Eladó ikerházak a környékről

Eladó ikerház
Eladó ikerház

Vác

149.9 M Ft
5 szoba
202 m2
Eladó ikerház
Eladó ikerház

Vác

94.5 M Ft
4 + 1 szoba
126 m2
Eladó ikerház
Eladó ikerház

Szentendre

179 M Ft
5 + 1 szoba
147 m2
Eladó ikerház
Eladó ikerház

Üröm

249.9 M Ft
4 szoba
154 m2
Eladó ikerház
Eladó ikerház

Dunakeszi

149 M Ft
1 + 4 szoba
127 m2
Eladó ikerház
Eladó ikerház

Érd, Érdliget - Kutyavár, Érdligeten található utca

64.9 M Ft
4 szoba
112 m2
Eladó ikerház
Eladó ikerház

Vácrátót

99.9 M Ft
5 szoba
112 m2
Eladó ikerház
Eladó ikerház

Kiskunlacháza

89.1 M Ft
4 szoba
99 m2
Eladó ikerház
Eladó ikerház

Vácrátót

98.9 M Ft
4 szoba
90 m2
Eladó ikerház
Eladó ikerház

Szentendre, Szentendre

398 M Ft
5 szoba
267 m2
Eladó ikerház
Eladó ikerház

Vácrátót

79.9 M Ft
4 szoba
88 m2
Eladó ikerház
Eladó ikerház

Vácrátót

83.9 M Ft
5 szoba
96 m2
Eladó ikerház
Eladó ikerház

Vácrátót

77.99 M Ft
5 szoba
134 m2
Eladó ikerház
Eladó ikerház

Vácrátót

99.9 M Ft
5 szoba
110 m2
Eladó ikerház
Eladó ikerház

Vácrátót

94.9 M Ft
2 + 3 szoba
108 m2
Eladó ikerház
Eladó ikerház

Vácrátót

79.9 M Ft
4 szoba
121 m2
Eladó ikerház
Eladó ikerház

Szentendre

359 M Ft
5 szoba
289 m2
Eladó ikerház
Eladó ikerház

Vácrátót

94.9 M Ft
5 szoba
109 m2
Eladó ikerház
Eladó ikerház

Vácrátót

72.9 M Ft
2 + 2 szoba
86 m2
Eladó ikerház
Eladó ikerház

Vácrátót

89.9 M Ft
5 szoba
93 m2
Eladó ikerház
Eladó ikerház

Vácrátót

96 M Ft
4 szoba
77 m2
Eladó ikerház
Eladó ikerház

Mogyoród, Fóti út

188 M Ft
6 szoba
182 m2
Eladó ikerház
Eladó ikerház

Vácrátót

96 M Ft
4 szoba
77 m2
Eladó ikerház
Eladó ikerház

Vác

175.356 M Ft
5 szoba
165 m2

Falusi CSOK ingatlanok

Eladó családi ház
Eladó családi ház

Szigliget, Balaton utca 9

187 M Ft
3 szoba
136 m2
Eladó családi ház
Eladó családi ház

Szőlősgyörök, Táncsics Mihály utca

47.999 M Ft
5 szoba
105 m2
Eladó családi ház
Eladó családi ház

Tápiószőlős

34 M Ft
1 + 2 szoba
85 m2
Eladó családi ház
Eladó családi ház

Som

42.9 M Ft
3 szoba
107 m2
Eladó családi ház
Eladó családi ház

Sárrétudvari

12.99 M Ft
1 + 1 szoba
45 m2
Eladó családi ház
Eladó családi ház

Kétpó

14.9 M Ft
1 + 2 szoba
86 m2
Eladó családi ház
Eladó családi ház

Becsehely

18 M Ft
4 szoba
134 m2
Eladó családi ház
Eladó családi ház

Tihany

583.959 M Ft
5 szoba
246 m2