River Life

Eladó ikerház
Tárnok

+ 11 kép 1/14
98 000 000 Ft98 M Ft 1 076 923 Ft/m2
4 szoba
91 m2
építés éve:2026

Részletes adatok

Telekméret: 250 m2
Fűtés: Gázkazán
Közmű: Gáz, Villany, Csatorna
Energetikai besorolás: Nem adta meg a hirdető

Az OTP Bank lakáshitel ajánlataFizetett hirdetés

+36 70 465
Andreopulos Niki
Otthon Centrum Szigethalom

Érdekel az OTP Bank kedvezményes lakáshitel ajánlata? *

* A kérdésre „Igen” válasz bejelölése esetén, az „Üzenet küldése” gombra kattintva kijelentem, hogy az OTP Bank Nyrt. Adatkezelési tájékoztatójának tartalmát megismertem és tudomásul vettem.

Eladó ikerház leírása

TÁRNOKON ÚJÉPÍTÉSŰ IKERHÁZ

HÁZ:
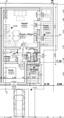
- 98 nm nappali + 3 szoba 2 szinten
- 2026-ben épül
- minőségi anyagokból
- Porotherm tégla + 15 cm dryvit szigetelés
- cserép tetőfedés, műanyag nyílászárók
- gáz cirka + padlófűtés
- Hideg-meleg burkolatok választhatók
- 3x32 A áramellátás
- remek elosztású , napfényes
- 2 DB KLÍMA

TELEK:
- 250 nm saját telek
- termőföld feltöltés
- elektromos kapu előkészítés
- viacolor járdák és dupla autóbeálló
- körbe kerítve, utcafronton betonelemes kerítés

Elhelyezkedés:
- Budapesttől 35 percre
- Iskola, óvoda, bevásárlási lehetőség pár perc sétára

REFERENCIA HÁZAK MEGTEKINTHETŐK!

HITEL ÉS CSOK igényelhető! Minden hivatalos ügyintézésben segítünk!

10%-TÓL MÁR MOST FOGLALHATÓ!
ÁTADÁS: 2026-06

Hirdetés feltöltve: 2026. 02. 05. Utoljára módosítva: 2026. 02. 05.

4 szobás ikerházak ára Tárnokon

Ebből az összehasonlításból megtudhatod, hogyan viszonyul a lakás ára a környékbeli ikerházak átlagos árához. Ez nem azt jelenti, hogy ennyivel olcsóbb vagy drágább, mint amennyit a lakás ér, hanem hogy ennyivel tér el a környékbeli átlagtól.

Ennek a m² ára
Tárnok m² ár
1077 e Ft
953 e Ft -13%
Ennek az ára
Tárnok átlagár
98 M Ft m Ft
81.6 m Ft -20%

Az ingatlan elhelyezkedése

Cím: Tárnok

Eladó ingatlanok a környékről

Eladó családi ház
Eladó családi ház

Fót

74.6 M Ft
4 szoba
140 m2
Eladó üzlethelyiség
Eladó üzlethelyiség

Újlengyel

748 M Ft
1 szoba
2000 m2
Eladó ikerház
Eladó ikerház

Tárnok

99.9 M Ft
5 szoba
130 m2
Eladó mezogazdasagi ingatlan
Eladó mezogazdasagi ingatlan

Kocsér

150 M Ft
3 szoba
157 m2
Eladó ikerház
Eladó ikerház

Tinnye

124.9 M Ft
4 szoba
145 m2
Eladó ikerház
Eladó ikerház

Üröm

220 M Ft
4 szoba
130 m2
Eladó családi ház
Eladó családi ház

Göd

104 M Ft
4 szoba
170 m2
Eladó ikerház
Eladó ikerház

Tárnok

95 M Ft
4 szoba
99 m2
Eladó ikerház
Eladó ikerház

Pomáz

129.5 M Ft
4 szoba
100 m2
Eladó ikerház
Eladó ikerház

Diósd

213.46 M Ft
5 szoba
186 m2
Eladó ikerház
Eladó ikerház

Vácrátót

105 M Ft
3 + 2 szoba
113 m2
Eladó családi ház
Eladó családi ház

Érd

169 M Ft
3 + 4 szoba
600 m2
Eladó ikerház
Eladó ikerház

Pilisjászfalu

82.279 M Ft
4 szoba
73 m2
Eladó ikerház
Eladó ikerház

Mogyoród

129 M Ft
5 szoba
123 m2
Eladó ikerház
Eladó ikerház

Veresegyház

145 M Ft
4 szoba
120 m2
Eladó ikerház
Eladó ikerház

Fót

74.99 M Ft
3 szoba
68 m2
Eladó ikerház
Eladó ikerház

Pusztazámor

55 M Ft
10 szoba
470 m2
Eladó ikerház
Eladó ikerház

Vác

99.7 M Ft
4 + 1 szoba
129 m2
Eladó családi ház
Eladó családi ház

Szigetszentmiklós

129 M Ft
4 szoba
122 m2
Eladó nyaraló
Eladó nyaraló

Budakeszi

79 M Ft
3 szoba
68 m2
Eladó családi ház
Eladó családi ház

Érd

45 M Ft
3 szoba
50 m2
Eladó ikerház
Eladó ikerház

Vác

149.9 M Ft
5 szoba
202 m2
Eladó családi ház
Eladó családi ház

Albertirsa

349 M Ft
3 szoba
138 m2
Eladó téglalakás
Eladó téglalakás

Szigetszentmárton, Telkes utca

59.9 M Ft
3 szoba
64 m2

Falusi CSOK ingatlanok

Eladó családi ház
Eladó családi ház

Porva

74.6 M Ft
3 szoba
115 m2
Eladó családi ház
Eladó családi ház

Véménd

81.9 M Ft
3 szoba
150 m2
Eladó téglalakás
Eladó téglalakás

Herend

63 M Ft
3 szoba
69 m2
Eladó családi ház
Eladó családi ház

Máriahalom

29.9 M Ft
3 szoba
83 m2
Eladó családi ház
Eladó családi ház

Szilvásvárad

50 M Ft
3 szoba
69 m2
Eladó családi ház
Eladó családi ház

Magyarpolány

90 M Ft
2 szoba
70 m2
Eladó családi ház
Eladó családi ház

Kesztölc

129.9 M Ft
8 szoba
210 m2
Eladó családi ház
Eladó családi ház

Pécsvárad

69.9 M Ft
3 szoba
120 m2