Astora Olive Club House

Eladó ikerház
Tahitótfalu

+ 7 kép 1/10
69 200 000 Ft69.2 M Ft 629 091 Ft/m2
4 szoba
110 m2

Részletes adatok

Telekméret: 500 m2
Fűtés: Egyéb
Energetikai besorolás: Nem adta meg a hirdető

Az OTP Bank lakáshitel ajánlataFizetett hirdetés

+36 20 543
Balaton Bea
Családi Ingatlan

Érdekel az OTP Bank kedvezményes lakáshitel ajánlata? *

* A kérdésre „Igen” válasz bejelölése esetén, az „Üzenet küldése” gombra kattintva kijelentem, hogy az OTP Bank Nyrt. Adatkezelési tájékoztatójának tartalmát megismertem és tudomásul vettem.

Eladó ikerház leírása

CSEND-BÉKE-NYUGALOM-TERMÉSZET

ELADÓ ÚJÉPÍTÉSŰ IKERHÁZ TAHITÓTFALU

Az ELADÓ ÚJÉPÍTÉSŰ IKERHÁZ TAHITÓTFALU, bruttó 110 m2, 500 m2-es saját, privát telek területtel, nappali+2 szoba (akár 3 szobássá is alakítható) duplakomfortos, 2 db felszíni kocsibeállóval, 25 m2-es intim terasszal, csendes, természetközeli helyen. Óvoda, bölcsőde, iskola, bevásárlási lehetőség a közelben.

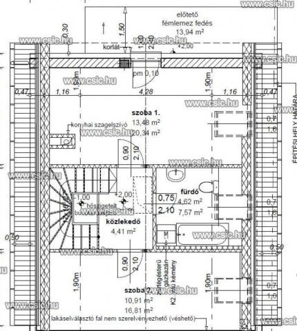
Az ELADÓ újépítésű IKERHÁZ TAHITÓTFALU alaprajzi elrendezése kiváló:

FÖLDSZINT: előtér, gardrób, amerikai konyhás nappali, vendég wc, tároló és háztartási helyiség
EMELET: 2 tágas szoba, kádas fürdőszoba, közlekedő

Az ELADÓ ÚJÉPÍTÉSŰ IKERHÁZ TAHITÓTFALU műszaki és egyéb jellemzői:

• belső kétszintes, napfényes, tágas
• 2 felszíni kocsibeálló
• 25 m2 saját, privát burkolt terasz, kertkapcsolattal, saját intim kerttel
• tégla építésű +15 cm grafitos hőszigetelés
• 7 kamrás, 3 rétegű új ablakok, bukó, nyíló, szellőztető funkcióval, biztonsági bejárati ajtó
• összközműves
• duplakomfortos
• gázcirkó fűtés, padlófűtéssel
• riasztó előkészítés
• minden szobában klíma előkészítés

ELADÓ ÚJÉPÍTÉSŰ IKERHÁZ TAHITÓTFALU szerkezetkészen ELADÓ.
Villany, víz, gépészeti alapszerelések elkészültek.
A burkolatok, szaniterek, a festés az új tulajdonos feladata.

Amennyiben felkeltettem érdeklődését, várom hívását....

Ha eladandó ingatlanja van, annak értékbecslésében INGYENES TANÁCSADÁST biztosítok, valamint INGYENES TELJESKÖRŰ hitelügyintézéssel, kedvező ügyvédi munkadíjakkal állunk rendelkezésére.

Hasonló ingatlanokért látogasson el weboldalunkra!

Hirdetés feltöltve: 2025. 12. 09. Utoljára módosítva: 2026. 01. 13.

4 szobás ikerházak ára Tahitótfalun

Ebből az összehasonlításból megtudhatod, hogyan viszonyul a lakás ára a környékbeli ikerházak átlagos árához. Ez nem azt jelenti, hogy ennyivel olcsóbb vagy drágább, mint amennyit a lakás ér, hanem hogy ennyivel tér el a környékbeli átlagtól.

Ennek a m² ára
Tahitótfalu m² ár
629 e Ft
843 e Ft 25%
Ennek az ára
Tahitótfalu átlagár
69.2 M Ft m Ft
84.9 m Ft 18%

Az ingatlan elhelyezkedése

Cím: Tahitótfalu

Eladó ikerházak a környékről

Eladó ikerház
Eladó ikerház

Dunakeszi

149 M Ft
1 + 4 szoba
127 m2
Eladó ikerház
Eladó ikerház

Tahitótfalu, Nincs utca

93.9 M Ft
4 szoba
98 m2
Eladó ikerház
Eladó ikerház

Tahitótfalu, Mogyoró

93.9 M Ft
4 szoba
101 m2
Eladó ikerház
Eladó ikerház

Tahitótfalu

93.9 M Ft
4 szoba
94 m2
Eladó ikerház
Eladó ikerház

Mogyoród

129 M Ft
5 szoba
123 m2
Eladó ikerház
Eladó ikerház

Szentendre, Szentendre

398 M Ft
5 szoba
267 m2
Eladó ikerház
Eladó ikerház

Tahitótfalu

108.9 M Ft
4 + 2 szoba
116 m2
Eladó ikerház
Eladó ikerház

Szentendre

718 M Ft
10 + 2 szoba
578 m2
Eladó ikerház
Eladó ikerház

Tahitótfalu

143 M Ft
5 szoba
160 m2
Eladó ikerház
Eladó ikerház

Szentendre

359 M Ft
5 + 1 szoba
289 m2
Eladó ikerház
Eladó ikerház

Mogyoród, Fóti út

188 M Ft
6 szoba
182 m2
Eladó ikerház
Eladó ikerház

Diósd

213.46 M Ft
5 szoba
186 m2
Eladó ikerház
Eladó ikerház

Tahitótfalu

84.9 M Ft
4 szoba
94 m2
Eladó ikerház
Eladó ikerház

Veresegyház

145 M Ft
4 szoba
120 m2
Eladó ikerház
Eladó ikerház

Tahitótfalu

108.9 M Ft
6 szoba
115 m2
Eladó ikerház
Eladó ikerház

Tahitótfalu

74.9 M Ft
4 szoba
120 m2
Eladó ikerház
Eladó ikerház

Tahitótfalu

84.9 M Ft
4 szoba
101 m2
Eladó ikerház
Eladó ikerház

Vác

175.356 M Ft
5 szoba
165 m2
Eladó ikerház
Eladó ikerház

Üröm

220 M Ft
4 szoba
130 m2
Eladó ikerház
Eladó ikerház

Pusztazámor

55 M Ft
10 szoba
470 m2
Eladó ikerház
Eladó ikerház

Érd, Érdligeten található utca

64.9 M Ft
4 szoba
112 m2
Eladó ikerház
Eladó ikerház

Tahitótfalu

98.5 M Ft
4 szoba
110 m2
Eladó ikerház
Eladó ikerház

Pécel

149.9 M Ft
5 szoba
306 m2
Eladó ikerház
Eladó ikerház

Pécel, Pécel - kertváros

127 M Ft
4 szoba
125 m2

Falusi CSOK ingatlanok

Eladó családi ház
Eladó családi ház

Kenyeri

39.9 M Ft
3 szoba
94 m2
Eladó családi ház
Eladó családi ház

Berzence

38.7 M Ft
5 szoba
110 m2
Eladó családi ház
Eladó családi ház

Tiszatenyő

13.99 M Ft
2 szoba
63 m2
Eladó családi ház
Eladó családi ház

Tapsony

23.8 M Ft
3 szoba
130 m2
Eladó családi ház
Eladó családi ház

Mezőfalva

39 M Ft
3 szoba
77 m2
Eladó családi ház
Eladó családi ház

Érsekcsanád

68.8 M Ft
3 szoba
120 m2
Eladó családi ház
Eladó családi ház

Lengyel

59.675 M Ft
2 szoba
135 m2
Eladó családi ház
Eladó családi ház

Szólád

99.9 M Ft
6 + 1 szoba
245 m2