Astora Márvány8

Eladó ikerház
Tahitótfalu

+ 2 kép 1/5
109 000 000 Ft109 M Ft 990 909 Ft/m2
4 szoba
110 m²

Részletes adatok

Telekméret: 403 m2
Fűtés: Egyéb
Energetikai besorolás: Nem adta meg a hirdető

Az OTP Bank lakáshitel ajánlataFizetett hirdetés

+36 20 272
Metykó András
Családi Ingatlan

Érdekel az OTP Bank kedvezményes lakáshitel ajánlata? *

* A kérdésre „Igen” válasz bejelölése esetén, az „Üzenet küldése” gombra kattintva kijelentem, hogy az OTP Bank Nyrt. Adatkezelési tájékoztatójának tartalmát megismertem és tudomásul vettem.

Eladó ikerház leírása

OSP képes – Eladó Újépítésű ikerház Tahitótfalu hegy felöli oldalán – Kizárólag a Családi Ingatlan kínálatában
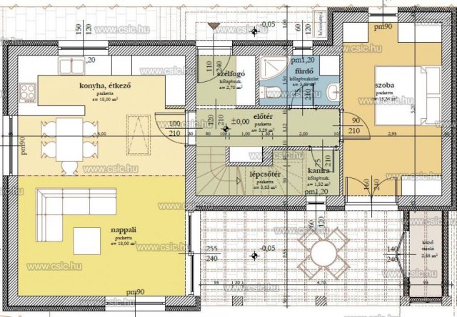
Eladó Tahitótfalu családiházas csendes övezetében egy 101m2 lakóterületű Nappali + 3 szobás , duplakomfortos újépítésű ikerház fél kulcsrakészen, önálló 403 m²-es telekrésszel.
A gondosan megtervezett otthon ideális választás családok számára, akik természetközeli, mégis modern és energiatakarékos ingatlant keresnek.

Főbb jellemzők:
• Tágas nappali–konyha–étkező kamrával
• 3 külön nyíló hálószoba
• 2 fürdőszoba (duplakomfort)
• Tároló és háztartási helyiség
• Fedett, burkolt terasz
• 2 autó számára kialakított beálló
• külső tároló
A két lakóegység teljesen elszeparált, dupla falazattal és szigeteléssel, szinteltolásos kialakítással – így biztosított a zavartalan, csendes élettér.
Az ingatlant tapasztalt, a közelben referenciákkal rendelkező kivitelező építi.

Modern műszaki tartalom:
• Porotherm falazat + 15 cm hőszigetelés
• Hőszivattyús rendszer padlófűtéssel
• 3 rétegű, korszerű nyílászárók
• Tetőszigetelés, cserépfedés
• Redőny-, riasztó- és napelem előkészítés
• Viacolor burkolatú beálló, kerítéssel

Az ingatlan kulcsrakész állapotban kerül átadásra, a burkolatok, szaniterek és belső ajtók választhatók – így saját ízlésére formálhatja új otthonát.

Fontos információk:
• Várható átadás: 2027. I. negyedév
• Konyhabútor nem része az árnak
• OSP (Otthon Start Program) kompatibilis – akár 3%-os hitellel is megvásárolható

Kinek ajánljuk?
Azoknak, akik:
• csendes, zöld környezetben szeretnének élni
• új építésű, alacsony rezsijű otthont keresnek
• értékelik a modern műszaki megoldásokat és az átgondolt elrendezést
Igény esetén független hitelügyintéző kollégánk díjmentesen segít a teljes folyamatban.

Hirdetés feltöltve: 2026. 04. 28.

4 szobás ikerházak ára Tahitótfalun

Ebből az összehasonlításból megtudhatod, hogyan viszonyul a lakás ára a környékbeli ikerházak átlagos árához. Ez nem azt jelenti, hogy ennyivel olcsóbb vagy drágább, mint amennyit a lakás ér, hanem hogy ennyivel tér el a környékbeli átlagtól.

Ennek a m² ára
Tahitótfalu m² ár
991 e Ft
843 e Ft -18%
Ennek az ára
Tahitótfalu átlagár
109 M Ft m Ft
84.9 m Ft -28%

Az ingatlan elhelyezkedése

Cím: Tahitótfalu

Eladó ingatlanok a környékről

Tahitótfalu
Eladó ikerház

Tahitótfalu

57.5 M Ft
2 szoba
47 m²
Alsónémedi
Eladó telek

Alsónémedi

2200 M Ft
9.14 ha
0 m²
Piliscsaba
Eladó családi ház

Piliscsaba

19.9 M Ft
3 szoba
90 m²
Szentendre
Eladó családi ház

Szentendre

449.9 M Ft
4 szoba
273 m²
Dunakeszi
Eladó ikerház

Dunakeszi

178 M Ft
6 szoba
140 m²
Veresegyház
Eladó ikerház

Veresegyház

130 M Ft
5 szoba
130 m²
Mogyoród
Eladó ikerház

Mogyoród

135 M Ft
5 szoba
137 m²
Vác
Eladó ikerház

Vác

149.9 M Ft
5 szoba
202 m²
Dunaharaszti
Eladó sorház

Dunaharaszti

124.9 M Ft
3 szoba
103 m²
Tahitótfalu
Eladó ikerház

Tahitótfalu

82.2 M Ft
3 szoba
110 m²
Szigetszentmárton
Eladó családi ház

Szigetszentmárton

72.9 M Ft
4 szoba
84 m²
Dunaharaszti
Eladó ikerház

Dunaharaszti

139 M Ft
3 szoba
116 m²
Tahitótfalu
Eladó ikerház

Tahitótfalu

57.5 M Ft
2 szoba
47 m²
Érd
Eladó ikerház

Érd

177.7 M Ft
7 szoba
181 m²
Hernád
Eladó ikerház

Hernád

41.3 M Ft
3 szoba
68 m²
Pomáz
Eladó ikerház

Pomáz

129.5 M Ft
4 szoba
100 m²
Diósd
Eladó ikerház

Diósd

213.46 M Ft
5 szoba
186 m²
Tahitótfalu
Eladó ikerház

Tahitótfalu

88.9 M Ft
4 szoba
110 m²
Vecsés
Eladó üzlethelyiség

Vecsés

240 M Ft
10 szoba
364 m²
Dunavarsány
Eladó családi ház

Dunavarsány

147.9 M Ft
4 szoba
144 m²
Szentendre
Eladó ikerház

Szentendre

718 M Ft
10 + 2 szoba
578 m²
Tahitótfalu
Eladó ikerház

Tahitótfalu

93.9 M Ft
4 szoba
98 m²
Diósd
Eladó ikerház

Diósd

206.25 M Ft
5 szoba
184 m²
Vác
Eladó ikerház

Vác

96.7 M Ft
4 + 1 szoba
126 m²

Falusi CSOK ingatlanok

Ónod
Eladó családi ház

Ónod

25.9 M Ft
3 + 1 szoba
180 m²
Hahót, Csányi László utca
Eladó családi ház

Hahót

48 M Ft
4 + 1 szoba
110 m²
Mád
Eladó családi ház

Mád

48 M Ft
3 szoba
181 m²
Balatonkenese
Eladó családi ház

Balatonkenese

170 M Ft
4 szoba
140 m²
Tápiószőlős
Eladó családi ház

Tápiószőlős

29.8 M Ft
3 szoba
75 m²
Ceglédbercel
Eladó családi ház

Ceglédbercel

64.99 M Ft
5 szoba
140 m²
Badacsonytomaj
Eladó családi ház

Badacsonytomaj

285 M Ft
4 szoba
230 m²
Újlengyel
Eladó családi ház

Újlengyel

110 M Ft
4 szoba
121 m²