Avico Greentop

Eladó ikerház
Szigetszentmiklós

+ 17 kép 1/20
83 500 000 Ft83.5 M Ft 713 675 Ft/m2
4 szoba
117 m²
építés éve:2000

Részletes adatok

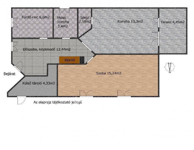
Telekméret: 547 m2
Fűtés: Gázkazán
Energetikai besorolás: Nem adta meg a hirdető

Az OTP Bank lakáshitel ajánlataFizetett hirdetés

+36 30 613
Kissné Pergő Viktória
Szigetszentmiklós OTP Ip

Érdekel az OTP Bank kedvezményes lakáshitel ajánlata? *

* A kérdésre „Igen” válasz bejelölése esetén, az „Üzenet küldése” gombra kattintva kijelentem, hogy az OTP Bank Nyrt. Adatkezelési tájékoztatójának tartalmát megismertem és tudomásul vettem.

Eladó ikerház leírása

Eladó Szigetszentmiklós egyik legcsendesebb, családbarát részén egy kiváló állapotú, 115 m2-es könnyűszerkezetes ikerház, amely a 2000-es években minőségi anyagok felhasználásával épült.

Az ingatlan tervezése és kivitelezése során nagy hangsúlyt kapott a tartós és biztonságos fa tartószerkezet, a prémium nyílászárók, a minőségi burkolatok, valamint az átgondolt elektromos hálózat. Az egyedi belső elrendezésnek köszönhetően a terek maximálisan kihasználhatók, vagy szükség szerint átépíthetők. A tágas, jellemzően 10 m2 feletti szobák pedig ideálisak akár egy 4 fős család számára is.

A beépített szekrények rengeteg tárolóhelyet biztosítanak, így a mindennapi élet kényelmes és rendezett lehet. Az egyedileg gyártott, hőszigetelt üvegezésű nyílászárók tovább növelik az otthon komfortját.

A fűtésről gáz-cirkó gondoskodik, amelyet két inverteres klíma egészít ki, így a fűtési-hűtési költségek kedvezően alakulnak:

Villany: kb. 13.000 Ft Gáz átalány: kb. 20.000 Ft

A kert részét képező, kb 15 m2-es szaletli és a kerti tűzrakóhely igazi szabadtéri oázist teremtenek, ahol a jó idő beköszöntével élmény a kikapcsolódás. A kertben 4 körös automata öntözőrendszer működik, az elektromos kapu pedig kényelmes behajtást biztosít. Az épület részét képezi egy több mint 4 m2-es külső tároló, amely alkalmas a kerti eszközök vagy szezonális holmik, szerszámok elhelyezésére.

A környék kiváló infrastruktúrával rendelkezik: bevásárlóközpontok, egészségügyi intézmények, óvodák és iskolák könnyen elérhetők. Szigetszentmiklós dinamikusan fejlődő városrésze ideális választás mindazoknak, akik nyugodt környezetben, mégis mindenhez közel szeretnének élni.

Ez az ingatlan remek választás azoknak, akik egy jól megépített, gondosan karbantartott, azonnal költözhető otthont keresnek.
Az OTP Bankcsoport teljes körű ügyintézéssel áll az eladók és a vevők rendelkezésére! A kínálatunkból választott ingatlan finanszírozásához kedvezményes hitelkonstrukciókat kínálunk. Az adásvételi szerződés megkötéséhez igény szerint megbízható ügyvédi közreműködést biztosítunk és segítséget nyújtunk az adásvételhez kapcsolódó ügyek intézéséhez. Referenciaszám: M317112

Az energetikai tanúsítvány készítése folyamatban van, amint rendelkezésre áll, úgy azzal a hirdetés frissítésre kerül.

Hirdetés feltöltve: 2026. 03. 03. Utoljára módosítva: 2026. 05. 10.

4 szobás ikerházak ára Szigetszentmiklóson

Ebből az összehasonlításból megtudhatod, hogyan viszonyul a lakás ára a környékbeli ikerházak átlagos árához. Ez nem azt jelenti, hogy ennyivel olcsóbb vagy drágább, mint amennyit a lakás ér, hanem hogy ennyivel tér el a környékbeli átlagtól.

Ennek a m² ára
Szigetszentmiklós m² ár
714 e Ft
848 e Ft 16%
Ennek az ára
Szigetszentmiklós átlagár
83.5 M Ft m Ft
88.3 m Ft 5%

Az ingatlan elhelyezkedése

Cím: Szigetszentmiklós

Eladó ikerházak a környékről

Szigetszentmiklós
Eladó ikerház

Szigetszentmiklós

83.5 M Ft
4 szoba
115 m²
Pécel
Eladó ikerház

Pécel

149.9 M Ft
5 szoba
306 m²
Szigetszentmiklós
Eladó ikerház

Szigetszentmiklós

94.9 M Ft
4 szoba
87 m²
Pécel
Eladó ikerház

Pécel

389 M Ft
11 szoba
430 m²
Szigetszentmiklós
Eladó ikerház

Szigetszentmiklós

129 M Ft
5 szoba
180 m²
Mogyoród
Eladó ikerház

Mogyoród

129 M Ft
5 szoba
123 m²
Szigetszentmiklós
Eladó ikerház

Szigetszentmiklós

93.5 M Ft
4 szoba
120 m²
Mogyoród
Eladó ikerház

Mogyoród

135 M Ft
5 szoba
137 m²
Szigetszentmiklós
Eladó ikerház

Szigetszentmiklós

83.5 M Ft
4 szoba
115 m²
Szigetszentmiklós
Eladó ikerház

Szigetszentmiklós

134.3 M Ft
5 szoba
137 m²
Szigetszentmiklós
Eladó ikerház

Szigetszentmiklós

99.9 M Ft
5 szoba
93 m²
Szigetszentmiklós
Eladó ikerház

Szigetszentmiklós

129 M Ft
5 szoba
180 m²
Vác
Eladó ikerház

Vác

149.9 M Ft
5 szoba
202 m²
Szigetszentmiklós
Eladó ikerház

Szigetszentmiklós

99 M Ft
4 szoba
90 m²
Vác
Eladó ikerház

Vác

96.7 M Ft
4 + 1 szoba
126 m²
Szigetszentmiklós
Eladó ikerház

Szigetszentmiklós

93.5 M Ft
2 + 2 szoba
96 m²
Szentendre
Eladó ikerház

Szentendre

359 M Ft
5 + 1 szoba
289 m²
Pécel, Pécel - kertváros
Eladó ikerház

Pécel

127 M Ft
4 szoba
125 m²
Szigetszentmiklós
Eladó ikerház

Szigetszentmiklós

83.5 M Ft
4 szoba
117 m²
Szigetszentmiklós
Eladó ikerház

Szigetszentmiklós

99 M Ft
4 szoba
90 m²
Szigetszentmiklós
Eladó ikerház

Szigetszentmiklós

99 M Ft
4 szoba
0 m²
Szigetszentmiklós
Eladó ikerház

Szigetszentmiklós

83.5 M Ft
4 szoba
115 m²
Szigetszentmiklós
Eladó ikerház

Szigetszentmiklós

83.5 M Ft
4 szoba
117 m²
Vác
Eladó ikerház

Vác

99.7 M Ft
4 + 1 szoba
129 m²

Falusi CSOK ingatlanok

Kunadacs
Eladó családi ház

Kunadacs

80 M Ft
4 szoba
148 m²
Vép
Eladó családi ház

Vép

75.9 M Ft
5 szoba
150 m²
Márianosztra
Eladó családi ház

Márianosztra

38 M Ft
4 szoba
75 m²
Zsámbok
Eladó családi ház

Zsámbok

54.85 M Ft
3 szoba
120 m²
Halimba
Eladó családi ház

Halimba

59.9 M Ft
6 szoba
182 m²
Badacsonytomaj
Eladó családi ház

Badacsonytomaj

285 M Ft
4 szoba
230 m²
Balatonkenese, Széchenyi utca
Eladó téglalakás

Balatonkenese

129.9 M Ft
3 szoba
83 m²
Balatonszepezd
Eladó családi ház

Balatonszepezd

299 M Ft
5 szoba
220 m²