Astora Márvány8

Eladó ikerház
Szigetszentmiklós

+ 17 kép 1/20
90 000 000 Ft90 M Ft 782 609 Ft/m2
4 szoba
115 m2
építés éve:2000

Részletes adatok

Telekméret: 547 m2
Fűtés: Gázkazán
Energetikai besorolás: Nem adta meg a hirdető

Az OTP Bank lakáshitel ajánlataFizetett hirdetés

+36 30 660
Szombay Alfréd
Otp Ingatlanpont Szigetszentmiklós

Érdekel az OTP Bank kedvezményes lakáshitel ajánlata? *

* A kérdésre „Igen” válasz bejelölése esetén, az „Üzenet küldése” gombra kattintva kijelentem, hogy az OTP Bank Nyrt. Adatkezelési tájékoztatójának tartalmát megismertem és tudomásul vettem.

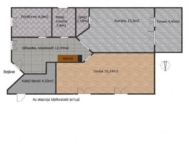
Eladó ikerház leírása

Eladó Szigetszentmiklós egyik legcsendesebb, családbarát részén egy kiváló állapotú, 115 m2-es könnyűszerkezetes ikerház, amely a 2000-es években minőségi anyagok felhasználásával épült.

Az ingatlan tervezése és kivitelezése során nagy hangsúlyt kapott a tartós és biztonságos fa tartószerkezet, a prémium nyílászárók, a minőségi burkolatok, valamint az átgondolt elektromos hálózat. Az egyedi belső elrendezésnek köszönhetően a terek maximálisan kihasználhatók, vagy szükség szerint átépíthetők. A tágas, jellemzően 10 m2 feletti szobák pedig ideálisak akár egy 4 fős család számára is.

A beépített szekrények rengeteg tárolóhelyet biztosítanak, így a mindennapi élet kényelmes és rendezett lehet. Az egyedileg gyártott, hőszigetelt üvegezésű nyílászárók tovább növelik az otthon komfortját.

A fűtésről gáz-cirkó gondoskodik, amelyet két inverteres klíma egészít ki, így a fűtési-hűtési költségek kedvezően alakulnak:

Villany: kb. 13.000 Ft Gáz átalány: kb. 20.000 Ft

A kert részét képező, kb 15 m2-es szaletli és a kerti tűzrakóhely igazi szabadtéri oázist teremtenek, ahol a jó idő beköszöntével élmény a kikapcsolódás. A kertben 4 körös automata öntözőrendszer működik, az elektromos kapu pedig kényelmes behajtást biztosít. Az épület részét képezi egy több mint 4 m2-es külső tároló, amely alkalmas a kerti eszközök vagy szezonális holmik, szerszámok elhelyezésére.

A környék kiváló infrastruktúrával rendelkezik: bevásárlóközpontok, egészségügyi intézmények, óvodák és iskolák könnyen elérhetők. Szigetszentmiklós dinamikusan fejlődő városrésze ideális választás mindazoknak, akik nyugodt környezetben, mégis mindenhez közel szeretnének élni.

Ez az ingatlan remek választás azoknak, akik egy jól megépített, gondosan karbantartott, azonnal költözhető otthont keresnek.
Az OTP Bankcsoport teljes körű ügyintézéssel áll az eladók és a vevők rendelkezésére! A kínálatunkból választott ingatlan finanszírozásához kedvezményes hitelkonstrukciókat kínálunk. Az adásvételi szerződés megkötéséhez igény szerint megbízható ügyvédi közreműködést biztosítunk és segítséget nyújtunk az adásvételhez kapcsolódó ügyek intézéséhez. Referenciaszám: M317112

Hirdetés feltöltve: 2025. 11. 16. Utoljára módosítva: 2025. 12. 11.

4 szobás ikerházak ára Szigetszentmiklóson

Ebből az összehasonlításból megtudhatod, hogyan viszonyul a lakás ára a környékbeli ikerházak átlagos árához. Ez nem azt jelenti, hogy ennyivel olcsóbb vagy drágább, mint amennyit a lakás ér, hanem hogy ennyivel tér el a környékbeli átlagtól.

Ennek a m² ára
Szigetszentmiklós m² ár
783 e Ft
955 e Ft 18%
Ennek az ára
Szigetszentmiklós átlagár
90 M Ft m Ft
95.3 m Ft 6%

Az ingatlan elhelyezkedése

Cím: Szigetszentmiklós

Eladó ikerházak a környékről

Eladó ikerház
Eladó ikerház

Szigetszentmiklós

99.9 M Ft
4 szoba
91 m2
Eladó ikerház
Eladó ikerház

Érd, Érdligeten található utca

64.9 M Ft
4 szoba
112 m2
Eladó ikerház
Eladó ikerház

Szigetszentmiklós

103.9 M Ft
5 szoba
100 m2
Eladó ikerház
Eladó ikerház

Szigetszentmiklós

99 M Ft
4 szoba
90 m2
Eladó ikerház
Eladó ikerház

Szigetszentmiklós

86.45 M Ft
5 szoba
93 m2
Eladó ikerház
Eladó ikerház

Diósd

213.46 M Ft
5 szoba
186 m2
Eladó ikerház
Eladó ikerház

Mogyoród, Fóti út

188 M Ft
6 szoba
182 m2
Eladó ikerház
Eladó ikerház

Pécel

149.9 M Ft
5 szoba
306 m2
Eladó ikerház
Eladó ikerház

Dunakeszi

149 M Ft
1 + 4 szoba
127 m2
Eladó ikerház
Eladó ikerház

Üröm

249.9 M Ft
4 szoba
154 m2
Eladó ikerház
Eladó ikerház

Szigetszentmiklós

95.9 M Ft
4 szoba
90 m2
Eladó ikerház
Eladó ikerház

Dunaharaszti

124.999 M Ft
4 szoba
105 m2
Eladó ikerház
Eladó ikerház

Szentendre, Szentendre

398 M Ft
5 szoba
267 m2
Eladó ikerház
Eladó ikerház

Szentendre

179 M Ft
5 + 1 szoba
147 m2
Eladó ikerház
Eladó ikerház

Szigetszentmiklós

78.5 M Ft
4 szoba
105 m2
Eladó ikerház
Eladó ikerház

Szigetszentmiklós

120 M Ft
2 szoba
81 m2
Eladó ikerház
Eladó ikerház

Szigetszentmiklós

104.9 M Ft
4 + 1 szoba
121 m2
Eladó ikerház
Eladó ikerház

Vác

96.5 M Ft
4 + 1 szoba
129 m2
Eladó ikerház
Eladó ikerház

Pusztazámor

55 M Ft
10 szoba
470 m2
Eladó ikerház
Eladó ikerház

Szigetszentmiklós

147.75 M Ft
5 + 1 szoba
142 m2
Eladó ikerház
Eladó ikerház

Szigetszentmiklós

104.9 M Ft
4 + 1 szoba
121 m2
Eladó ikerház
Eladó ikerház

Veresegyház

145 M Ft
4 szoba
120 m2
Eladó ikerház
Eladó ikerház

Szigetszentmiklós

104.9 M Ft
5 szoba
111 m2
Eladó ikerház
Eladó ikerház

Szigetszentmiklós

99.9 M Ft
4 szoba
91 m2

Falusi CSOK ingatlanok

Eladó családi ház
Eladó családi ház

Bakonycsernye

39 M Ft
3 szoba
350 m2
Eladó téglalakás
Eladó téglalakás

Balatonszemes

119.9 M Ft
2 szoba
81 m2
Eladó családi ház
Eladó családi ház

Farmos

38.9 M Ft
2 szoba
46 m2
Eladó családi ház
Eladó családi ház

Kondorfa, Fővég utca

24.9 M Ft
3 szoba
102 m2
Eladó családi ház
Eladó családi ház

Ispánk

149 M Ft
6 szoba
250 m2
Eladó téglalakás
Eladó téglalakás

Nagyharsány

22.5 M Ft
3 szoba
71 m2
Eladó családi ház
Eladó családi ház

Somogygeszti

10.9 M Ft
2 szoba
115 m2
Eladó családi ház
Eladó családi ház

Elek

85.9 M Ft
5 szoba
274 m2