River Life

Eladó ikerház
Szigetcsép

Figyelem!

Ez az ingatlan a 2019.07.01-től induló falusi CSOK által támogatott településen található

+ 13 kép 1/16
91 900 000 Ft91.9 M Ft 820 536 Ft/m2
2 + 3 szoba
112 m²
építés éve:2024

Részletes adatok

Telekméret: 1333 m2
Fűtés: Gázkazán
Komfort: Összkomfortos
Energetikai besorolás: Nem adta meg a hirdető

Az OTP Bank lakáshitel ajánlataFizetett hirdetés

+36 30 400
Papp-Horváth Katalin
Otp Ingatlanpont Falk Miksa

Érdekel az OTP Bank kedvezményes lakáshitel ajánlata? *

* A kérdésre „Igen” válasz bejelölése esetén, az „Üzenet küldése” gombra kattintva kijelentem, hogy az OTP Bank Nyrt. Adatkezelési tájékoztatójának tartalmát megismertem és tudomásul vettem.

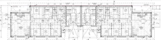
Eladó ikerház leírása

Pest vármegye, Szigetcsép új építésű részén 112nm-es utca fronti ikerház fél eladó 833 nm-es telek résszel. Az ingatlan új, készültségi foka 80%-os. Átadása kulcsrakészen kerül sor, teljesen befejezve konyhabútorral. Az ingatlanok egymáshoz garázzsal kapcsolódnak, teljesen le vannak választva egymástól. A házban található egy szoba, egy amerikai konyhás nappali, három félszoba, fürdőszoba wc-vel, wc és tároló, ezen kívűl egy garázs. Az otthon melegéről kombi gáz cirkó gondoskodik padlófűtéses rendszeren keresztül. Vevő ügyfeleinket díjmentes hitel tanácsadással, és a piaci hiteleknél kedvezőbb hitelekkel lepjük meg. További kérdését várom bizalommal.

Az energetikai tanúsítvány készítése folyamatban van, amint rendelkezésre áll, úgy azzal a hirdetés frissítésre kerül.

Energetikai tanúsítvány jelenleg nem elérhető.

Referencia szám: M288087

Hirdetés feltöltve: 2026. 04. 11. Utoljára módosítva: 2026. 05. 27.

5 szobás ikerházak ára Szigetcsépen

Ebből az összehasonlításból megtudhatod, hogyan viszonyul a lakás ára a környékbeli ikerházak átlagos árához. Ez nem azt jelenti, hogy ennyivel olcsóbb vagy drágább, mint amennyit a lakás ér, hanem hogy ennyivel tér el a környékbeli átlagtól.

Ennek a m² ára
Szigetcsép m² ár
821 e Ft
714 e Ft -15%
Ennek az ára
Szigetcsép átlagár
91.9 M Ft m Ft
91.9 m Ft 0%

Az ingatlan elhelyezkedése

Cím: Szigetcsép

Eladó ikerházak a környékről

Diósd
Eladó ikerház

Diósd

213.46 M Ft
5 szoba
186 m²
Szigetcsép
Eladó ikerház

Szigetcsép

91.9 M Ft
5 szoba
134 m²
Pomáz
Eladó ikerház

Pomáz

129.5 M Ft
4 szoba
100 m²
Szigetcsép
Eladó ikerház

Szigetcsép

91.9 M Ft
5 szoba
134 m²
Mogyoród
Eladó ikerház

Mogyoród

129 M Ft
5 szoba
123 m²
Vác
Eladó ikerház

Vác

99.7 M Ft
4 + 1 szoba
129 m²
Mogyoród
Eladó ikerház

Mogyoród

135 M Ft
5 szoba
137 m²
Szigetcsép
Eladó ikerház

Szigetcsép

82.9 M Ft
4 szoba
104 m²
Vác
Eladó ikerház

Vác

149.9 M Ft
5 szoba
202 m²
Vácrátót
Eladó ikerház

Vácrátót

99.9 M Ft
3 + 2 szoba
112 m²
Szigetcsép
Eladó ikerház

Szigetcsép

91.9 M Ft
5 szoba
134 m²
Szigetcsép
Eladó ikerház

Szigetcsép

91.9 M Ft
2 + 3 szoba
112 m²
Érd
Eladó ikerház

Érd

177.7 M Ft
7 szoba
181 m²
Vácrátót
Eladó ikerház

Vácrátót

94.9 M Ft
2 + 3 szoba
108 m²
Szigetcsép
Eladó ikerház

Szigetcsép

91.9 M Ft
5 szoba
140 m²
Szigetcsép
Eladó ikerház

Szigetcsép

91.9 M Ft
2 + 3 szoba
112 m²
Szigetcsép
Eladó ikerház

Szigetcsép

82.9 M Ft
4 szoba
85 m²
Szigetcsép
Eladó ikerház

Szigetcsép

124.9 M Ft
4 szoba
180 m²
Szigetcsép
Eladó ikerház

Szigetcsép

82.9 M Ft
4 szoba
104 m²
Szigetcsép
Eladó ikerház

Szigetcsép

91.9 M Ft
5 szoba
134 m²
Nagytarcsa
Eladó ikerház

Nagytarcsa

119.9 M Ft
4 szoba
103 m²
Herceghalom
Eladó ikerház

Herceghalom

148 M Ft
5 szoba
134 m²
Szigetcsép, Napos út
Eladó ikerház

Szigetcsép

139.9 M Ft
4 szoba
160 m²
Pécel
Eladó ikerház

Pécel

389 M Ft
11 szoba
430 m²

Falusi CSOK ingatlanok

Újhartyán
Eladó családi ház

Újhartyán

59.9 M Ft
4 szoba
75 m²
Sződ
Eladó családi ház

Sződ

102.9 M Ft
4 szoba
92 m²
Ostffyasszonyfa
Eladó családi ház

Ostffyasszonyfa

37.9 M Ft
5 szoba
494 m²
Jászkarajenő
Eladó családi ház

Jászkarajenő

17 M Ft
3 szoba
81 m²
Nagyharsány
Eladó téglalakás

Nagyharsány

22.5 M Ft
3 szoba
71 m²
Vép
Eladó családi ház

Vép

75.9 M Ft
5 szoba
150 m²
Tápiógyörgye
Eladó családi ház

Tápiógyörgye

12 M Ft
2 szoba
89 m²
Hévízgyörk
Eladó családi ház

Hévízgyörk

94.8 M Ft
8 szoba
254 m²

Falusi CSOK ingatlanok

Tihany
Eladó családi ház

Tihany

385 M Ft
5 szoba
200 m²
Nagyvázsony
Eladó családi ház

Nagyvázsony

57.5 M Ft
2 szoba
79 m²
Maklár
Eladó családi ház

Maklár

99 M Ft
6 szoba
230 m²
Balatonszemes
Eladó téglalakás

Balatonszemes

125.2 M Ft
2 szoba
50 m²
Jászkarajenő
Eladó családi ház

Jászkarajenő

17 M Ft
3 szoba
81 m²
Ostffyasszonyfa
Eladó családi ház

Ostffyasszonyfa

37.9 M Ft
5 szoba
494 m²
Herend
Eladó családi ház

Herend

144.9 M Ft
7 szoba
285 m²
Szob
Eladó sorház

Szob

16 M Ft
2 szoba
45 m²