Astora Art House

Eladó ikerház
Siófok

+ 15 kép 1/18
70 900 000 Ft70.9 M Ft 1 042 647 Ft/m2
4 szoba
68 m2
építés éve:2025

Részletes adatok

Telekméret: 297 m2
Fűtés: Egyéb
Energetikai besorolás: Nem adta meg a hirdető

Az OTP Bank lakáshitel ajánlataFizetett hirdetés

3629769713
Tivadarné Kulcsár Imola
referens

Érdekel az OTP Bank kedvezményes lakáshitel ajánlata? *

* A kérdésre „Igen” válasz bejelölése esetén, az „Üzenet küldése” gombra kattintva kijelentem, hogy az OTP Bank Nyrt. Adatkezelési tájékoztatójának tartalmát megismertem és tudomásul vettem.

Eladó ikerház leírása

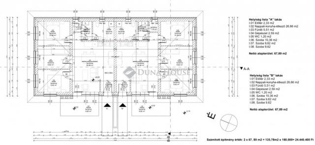
Siófokon a Rét utca közelében kínálok megvételre egy ÚJÉPíTÉSŰ, Nappali + 3 szobás, HŐSZIVATTYÚS, utcafronthoz képest hátsó Ikerházfelet, 800 méterre a Balatontól

Az ingatlan főbb jellemzői:
- Építés éve: 2025
- Hasznos alapterület: 68 nm + 9,8 nm terasz
- Telek mérete: 217 nm + 80 nm közös használatú szorgalmi út
- A Telek első felében egy ikerház, mögötte pedig egy önálló Családi ház található

Elrendezése:
- Amerikai konyhás Nappali+ Étkező
- 3 db Szoba
- Előtér
- Fürdőszoba
- Wc
- Gépház
- Terasz

Műszaki tartalom:

- Szerkezete: Porotherm K-30 tégla
- Homlokzat 15 cm-es grafit szigeteléssel, lábazat 5 cm-es szigeteléssel készül
- Belső válaszfalak Porotherm 10 cm-es tégla
- Födémszerkezet: Fafödém, 25 cm vastag üveggyapot szigeteléssel
- Antracit színű cserépfedés
- Az épülethez tartozik padlásfeljáró és tetőkibúvó
- Fehér színű nyílászárók, háromrétegű üvegezéssel szerelt 5 légkamrás
- Fűtése hőszivattyú, padlófűtéses hőleadással, a padlón 10 cm-es lépésálló hőszigetelés készül
- Melegvíz ellátása villanybojlerrel történik
- Napelemhez, riasztó-és kamerarendszerhez a szükséges vezetékezés előkészítésre kerül ( a berendezéseket a vételár nem tartalmazza)

Belső burkolatok és szaniterek:
- Melegburkolat 4500 Ft/nm
- Hidegburkolat 5000 Ft/nm-ig válaszhatók

A telek minden irányból körbekerített, a hátsó telekhatáron 2 m magas betonelemes kerítés, az oldalsó részeken drótfonatos kerítés lesz kialakítva kerti szegéllyel, az utcafronti zsalukő kerítés 1,5 m magas oszlopokkal készül.

Az épület körül 50 cm szélességben szegélykő készül, a kocsibeálló és a szorgalmi utak is fehér dolomittal lesznek feltöltve.

A járdák viacolor térkő burkolattal épülnek 6000 Ft/nm értékhatárig.

A tereprendezés része a kivitelezésnek, termőréteg kialakításával és füvesítésre előkészített állapotban ( a fűmag vetése a Vevő feladata lesz)
Amennyiben az ingatlan felkeltette az érdeklődését, keressen bizalommal a hét bármely napján!
Jöjjön el, nézze meg, szeressen bele, legyen Ön a a következő lakója!

Érd: Kulcsár Imola, tel: +36/20/240 4146, e-mail: kulcsar.imola@dh.hu

Az ajánlatom megfelelne az elvárásainak, de nem rendelkezik a kiválasztott ingatlan teljes vételárával!?
Hitelre történő vásárlás esetén Bankfüggetlen Credipass Pénzügyi Szakértőnk kötelezettség nélkül megtalálja az Ön számára legkedvezőbb megoldást! A tanácsadás ingyenes!

Referencia szám: HZ041237

Hirdetés feltöltve: 2025. 11. 13. Utoljára módosítva: 2026. 02. 05.

4 szobás ikerházak ára Siófokon

Ebből az összehasonlításból megtudhatod, hogyan viszonyul a lakás ára a környékbeli ikerházak átlagos árához. Ez nem azt jelenti, hogy ennyivel olcsóbb vagy drágább, mint amennyit a lakás ér, hanem hogy ennyivel tér el a környékbeli átlagtól.

Ennek a m² ára
Siófok m² ár
1043 e Ft
1167 e Ft 11%
Ennek az ára
Siófok átlagár
70.9 M Ft m Ft
112.2 m Ft 37%

Az ingatlan elhelyezkedése

Cím: Siófok

Eladó ikerházak a környékről

Eladó ikerház
Eladó ikerház

Balatonföldvár

223 M Ft
2 + 2 szoba
184 m2
Eladó ikerház
Eladó ikerház

Siófok

165.397 M Ft
3 szoba
122 m2
Eladó ikerház
Eladó ikerház

Siófok

62 M Ft
3 szoba
58 m2
Eladó ikerház
Eladó ikerház

Siófok

99.9 M Ft
4 szoba
110 m2
Eladó ikerház
Eladó ikerház

Siófok

165.13 M Ft
3 szoba
118 m2
Eladó ikerház
Eladó ikerház

Siófok

120 M Ft
4 szoba
110 m2
Eladó ikerház
Eladó ikerház

Balatonfenyves

135 M Ft
4 szoba
104 m2
Eladó ikerház
Eladó ikerház

Balatonberény

128 M Ft
3 + 1 szoba
121 m2
Eladó ikerház
Eladó ikerház

Balatonszárszó

79.9 M Ft
7 szoba
133 m2
Eladó ikerház
Eladó ikerház

Siófok

220 M Ft
6 szoba
200 m2
Eladó ikerház
Eladó ikerház

Siófok

169 M Ft
10 szoba
305 m2
Eladó ikerház
Eladó ikerház

Siófok

98 M Ft
5 szoba
98 m2
Eladó ikerház
Eladó ikerház

Siófok

220 M Ft
6 szoba
200 m2
Eladó ikerház
Eladó ikerház

Siófok

98 M Ft
5 szoba
98 m2
Eladó ikerház
Eladó ikerház

Siófok

169 M Ft
12 szoba
240 m2
Eladó ikerház
Eladó ikerház

Balatonszemes

59.99 M Ft
3 szoba
94 m2
Eladó ikerház
Eladó ikerház

Balatonföldvár

117.5 M Ft
3 szoba
94 m2
Eladó ikerház
Eladó ikerház

Siófok

169.999 M Ft
6 + 1 szoba
135 m2
Eladó ikerház
Eladó ikerház

Siófok

96 M Ft
6 szoba
122 m2
Eladó ikerház
Eladó ikerház

Siófok

72.9 M Ft
4 szoba
68 m2
Eladó ikerház
Eladó ikerház

Zamárdi

175 M Ft
3 szoba
140 m2
Eladó ikerház
Eladó ikerház

Siófok

62 M Ft
3 szoba
58 m2
Eladó ikerház
Eladó ikerház

Siófok

165.13 M Ft
3 szoba
118 m2
Eladó ikerház
Eladó ikerház

Siófok

145.9 M Ft
5 szoba
130 m2

Falusi CSOK ingatlanok

Eladó családi ház
Eladó családi ház

Mencshely

99 M Ft
3 szoba
126 m2
Eladó családi ház
Eladó családi ház

Borota

16.9 M Ft
2 szoba
75 m2
Eladó családi ház
Eladó családi ház

Darnózseli

79.9 M Ft
4 szoba
104 m2
Eladó családi ház
Eladó családi ház

Recsk

35 M Ft
5 szoba
140 m2
Eladó családi ház
Eladó családi ház

Gönyű

111.951 M Ft
5 szoba
105 m2
Eladó családi ház
Eladó családi ház

Kesztölc

129.9 M Ft
8 szoba
210 m2
Eladó családi ház
Eladó családi ház

Kenyeri

39.9 M Ft
3 szoba
94 m2
Eladó családi ház
Eladó családi ház

Dunaszekcső

12.5 M Ft
3 szoba
110 m2