Astora Márvány8

Eladó ikerház
Siófok

+ 10 kép 1/13
75 900 000 Ft75.9 M Ft 1 116 176 Ft/m2
4 szoba
68 m2
építés éve:2025

Részletes adatok

Telekméret: 393 m2
Fűtés: Egyéb
Energetikai besorolás: Nem adta meg a hirdető

Az OTP Bank lakáshitel ajánlataFizetett hirdetés

3629769713
Kulcsár Imola
Duna House - Villa Gyömrő

Érdekel az OTP Bank kedvezményes lakáshitel ajánlata? *

* A kérdésre „Igen” válasz bejelölése esetén, az „Üzenet küldése” gombra kattintva kijelentem, hogy az OTP Bank Nyrt. Adatkezelési tájékoztatójának tartalmát megismertem és tudomásul vettem.

Eladó ikerház leírása

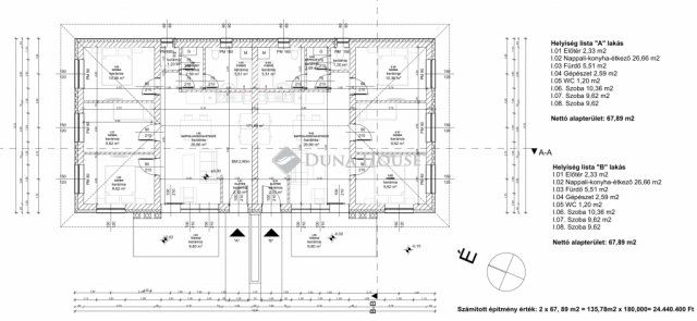
Siófokon a Bogáncs utca közelében kínálok megvételre egy ÚJÉPíTÉSŰ, Nappali + 3 szobás, HŐSZIVATTYÚS, utcafronthoz képest hátsó Ikerházfelet, 800 méterre a Balatontól

Az ingatlan főbb jellemzői:

-    Építés éve: 2025

-    Hasznos alapterület: 68 nm + 9,8 nm terasz

-    Telek mérete: 350 nm + 43 nm közös használatú szorgalmi út

Elrendezése:

-    Amerikai konyhás Nappali+ Étkező

-    3 db Szoba

-    Előtér

-    Fürdőszoba

-    Wc

-    Gépház

-    Terasz

Műszaki tartalom:

-    Szerkezete: Porotherm K-30 tégla

-    Homlokzat 15 cm-es grafit szigeteléssel, lábazat 5 cm-es szigeteléssel készül

-    Belső válaszfalak Porotherm 10 cm-es tégla

-    Födémszerkezet: Fafödém, 25 cm vastag üveggyapot szigeteléssel

-    Antracit színű cserépfedés

-    Az épülethez tartozik padlásfeljáró és tetőkibúvó

-    Fehér színű nyílászárók, háromrétegű üvegezéssel szerelt 5 légkamrás

-    Fűtése hőszivattyú, padlófűtéses hőleadással, a padlón 10 cm-es lépésálló hőszigetelés készül

-    Melegvíz ellátása villanybojlerrel történik

-    Napelemhez, riasztó-és kamerarendszerhez a szükséges vezetékezés előkészítésre kerül ( a berendezéseket a vételár nem tartalmazza)

Belső burkolatok és szaniterek:

-    Melegburkolat 4500 Ft/nm

-    Hidegburkolat 5000 Ft/nm-ig válaszhatók

A telek minden irányból körbekerített, a hátsó telekhatáron 2 m magas betonelemes kerítés, az oldalsó részeken drótfonatos kerítés lesz kialakítva kerti szegéllyel, az utcafronti zsalukő kerítés 1,5 m magas oszlopokkal készül.

Az épület körül 50 cm szélességben szegélykő készül, a kocsibeálló és a szorgalmi utak is fehér dolomittal lesznek feltöltve.

A járdák viacolor térkő burkolattal épülnek 6000 Ft/nm értékhatárig.

A tereprendezés része a kivitelezésnek, termőréteg kialakításával és füvesítésre előkészített állapotban ( a fűmag vetése a Vevő feladata lesz)

A falak állnak, a tetőszerkezet készítése következik, az értékesítés elkezdődött, ha nem szeretne lemaradni és szeretne Ön lenni a Tulajdonosa, keressen bizalommal a hét bármely napján!

Hirdetés feltöltve: 2025. 11. 12. Utoljára módosítva: 2026. 01. 13.

4 szobás ikerházak ára Siófokon

Ebből az összehasonlításból megtudhatod, hogyan viszonyul a lakás ára a környékbeli ikerházak átlagos árához. Ez nem azt jelenti, hogy ennyivel olcsóbb vagy drágább, mint amennyit a lakás ér, hanem hogy ennyivel tér el a környékbeli átlagtól.

Ennek a m² ára
Siófok m² ár
1116 e Ft
1091 e Ft -2%
Ennek az ára
Siófok átlagár
75.9 M Ft m Ft
98.7 m Ft 23%

Az ingatlan elhelyezkedése

Cím: Siófok

Eladó ikerházak a környékről

Eladó ikerház
Eladó ikerház

Balatonberény

128 M Ft
3 + 1 szoba
121 m2
Eladó ikerház
Eladó ikerház

Siófok

220 M Ft
6 szoba
200 m2
Eladó ikerház
Eladó ikerház

Siófok

165.397 M Ft
3 szoba
141 m2
Eladó ikerház
Eladó ikerház

Siófok

165.397 M Ft
3 szoba
141 m2
Eladó ikerház
Eladó ikerház

Siófok

219.99 M Ft
4 + 1 szoba
152 m2
Eladó ikerház
Eladó ikerház

Szántód

259 M Ft
5 szoba
140 m2
Eladó ikerház
Eladó ikerház

Siófok

96 M Ft
6 szoba
122 m2
Eladó ikerház
Eladó ikerház

Siófok

165.397 M Ft
3 szoba
122 m2
Eladó ikerház
Eladó ikerház

Siófok, Váci Mihály utca

94 M Ft
3 szoba
90 m2
Eladó ikerház
Eladó ikerház

Balatonszárszó

79.9 M Ft
7 szoba
133 m2
Eladó ikerház
Eladó ikerház

Siófok

145.9 M Ft
5 szoba
130 m2
Eladó ikerház
Eladó ikerház

Siófok

220 M Ft
6 szoba
200 m2
Eladó ikerház
Eladó ikerház

Siófok

96 M Ft
6 szoba
122 m2
Eladó ikerház
Eladó ikerház

Siófok

199.99 M Ft
4 + 1 szoba
152 m2
Eladó ikerház
Eladó ikerház

Siófok

169.9 M Ft
5 szoba
130 m2
Eladó ikerház
Eladó ikerház

Lengyeltóti, Ifjúság utca

69 M Ft
3 + 2 szoba
266 m2
Eladó ikerház
Eladó ikerház

Siófok

165.131 M Ft
3 szoba
118 m2
Eladó ikerház
Eladó ikerház

Siófok

125 M Ft
5 + 1 szoba
188 m2
Eladó ikerház
Eladó ikerház

Siófok

99.9 M Ft
4 szoba
110 m2
Eladó ikerház
Eladó ikerház

Siófok

145.9 M Ft
5 szoba
137 m2
Eladó ikerház
Eladó ikerház

Kaposvár

39.9 M Ft
4 szoba
206 m2
Eladó ikerház
Eladó ikerház

Siófok

169 M Ft
10 szoba
305 m2
Eladó ikerház
Eladó ikerház

Siófok

165.13 M Ft
3 szoba
118 m2
Eladó ikerház
Eladó ikerház

Siófok

120 M Ft
4 szoba
110 m2

Falusi CSOK ingatlanok

Eladó családi ház
Eladó családi ház

Sárok, Kossuth Lajos utca

21.9 M Ft
3 szoba
97 m2
Eladó családi ház
Eladó családi ház

Kenyeri

39.9 M Ft
3 szoba
94 m2
Eladó családi ház
Eladó családi ház

Gádoros

30 M Ft
3 szoba
100 m2
Eladó családi ház
Eladó családi ház

Érsekcsanád

68.8 M Ft
3 szoba
120 m2
Eladó családi ház
Eladó családi ház

Becsehely

18.5 M Ft
2 szoba
99 m2
Eladó családi ház
Eladó családi ház

Véménd

81.9 M Ft
3 szoba
150 m2
Eladó családi ház
Eladó családi ház

Szellő

125 M Ft
4 szoba
124 m2
Eladó családi ház
Eladó családi ház

Pécsvárad

85 M Ft
4 szoba
100 m2