Astora Olive Club House

Eladó ikerház
Pomáz

+ 2 kép 1/5
122 900 000 Ft122.9 M Ft 1 068 696 Ft/m2
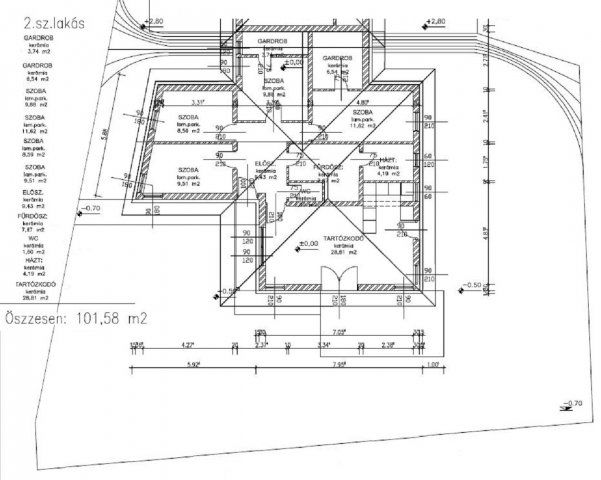
5 szoba
115 m²
építés éve:2025

Részletes adatok

Telekméret: 340 m2
Fűtés: Egyéb
Parkolás: Kocsibeálló
Közmű: Víz, Villany, Csatorna
Energetikai besorolás: Nem adta meg a hirdető

Az OTP Bank lakáshitel ajánlataFizetett hirdetés

+36 30 255
02. Tóth Helga - Hirdetünk ön helyett!
Körültekintő Ingatlan - hirdetünk ön helyett!

Érdekel az OTP Bank kedvezményes lakáshitel ajánlata? *

* A kérdésre „Igen” válasz bejelölése esetén, az „Üzenet küldése” gombra kattintva kijelentem, hogy az OTP Bank Nyrt. Adatkezelési tájékoztatójának tartalmát megismertem és tudomásul vettem.

Eladó ikerház leírása

Pomázon a Meselia déli oldalában, csendes környezetben 340 nm-es saját, kizárólagos használatú kerttel rendelkező, egy szintes, nappali + 4 hálószobás ikerház-fél eladó.

Az építéssel kapcsolatos paraméterek:
- Tervezett átadás: szerződés kötéstől számított egy éven belül
- hőszivattyús fűtés, padlófűtéssel, radiátorokkal
- magas minőségű hőszigetelés, ZÖLD hitelnek megfelelő energetikai besorolás
- több rétegű, műanyag nyílászárók
- választható belső burkolatok, szaniterek
- riasztó rendszer előkészítés
- 30 nm-es, az amerikai konyhás nappalihoz kapcsolódó terasz
- durva tereprendezés
- kulcsrakész átadás
Finanszírozási lehetőség:
- Zöld hitel kompatibilitás
- CSOK (10+15M) hitel, illeték mentesség, Áfa visszatérítés igényelhető.
- Az alaprajz igény szerint még módosítható.

A beruházó a környék elismert építési vállalkozója, rengeteg referenciamunkával rendelkezik.

Hirdetés feltöltve: 2026. 03. 03. Utoljára módosítva: 2026. 03. 03.

5 szobás ikerházak ára Pomázon

Ebből az összehasonlításból megtudhatod, hogyan viszonyul a lakás ára a környékbeli ikerházak átlagos árához. Ez nem azt jelenti, hogy ennyivel olcsóbb vagy drágább, mint amennyit a lakás ér, hanem hogy ennyivel tér el a környékbeli átlagtól.

Ennek a m² ára
Pomáz m² ár
1069 e Ft
832 e Ft -28%
Ennek az ára
Pomáz átlagár
122.9 M Ft m Ft
103.5 m Ft -19%

Az ingatlan elhelyezkedése

Cím: Pomáz

Eladó ingatlanok a környékről

Pomáz
Eladó ikerház

Pomáz

139 M Ft
3 szoba
86 m²
Pusztazámor
Eladó ikerház

Pusztazámor

55 M Ft
10 szoba
470 m²
Pomáz
Eladó ikerház

Pomáz

145.95 M Ft
3 szoba
86 m²
Pomáz
Eladó ikerház

Pomáz

82.9 M Ft
2 + 1 szoba
55 m²
Veresegyház
Eladó téglalakás

Veresegyház

83.723 M Ft
3 szoba
64 m²
Érd
Eladó ikerház

Érd

177.7 M Ft
7 szoba
181 m²
Pomáz
Eladó ikerház

Pomáz

119.9 M Ft
5 szoba
111 m²
Vácrátót
Eladó ikerház

Vácrátót

99.9 M Ft
3 + 2 szoba
112 m²
Pomáz
Eladó ikerház

Pomáz

129.5 M Ft
4 szoba
100 m²
Szentendre
Eladó ikerház

Szentendre

359 M Ft
5 + 1 szoba
289 m²
Pilisjászfalu
Eladó ikerház

Pilisjászfalu

82.279 M Ft
4 szoba
73 m²
Gödöllő
Eladó családi ház

Gödöllő

124.9 M Ft
6 szoba
160 m²
Pomáz
Eladó ikerház

Pomáz

165 M Ft
6 szoba
130 m²
Mogyoród
Eladó ikerház

Mogyoród

135 M Ft
5 szoba
137 m²
Nagytarcsa, Rozmaring utca
Eladó sorház

Nagytarcsa

126 M Ft
4 szoba
84 m²
Szentendre
Eladó ikerház

Szentendre

179 M Ft
5 + 1 szoba
147 m²
Mogyoród
Eladó ikerház

Mogyoród

129 M Ft
5 szoba
123 m²
Vác
Eladó ikerház

Vác

89.9 M Ft
4 szoba
91 m²
Majosháza
Eladó családi ház

Majosháza

41.9 M Ft
4 + 1 szoba
72 m²
Veresegyház
Eladó téglalakás

Veresegyház

94.474 M Ft
3 szoba
69 m²
Pomáz
Eladó ikerház

Pomáz

122.9 M Ft
5 szoba
115 m²
Veresegyház
Eladó téglalakás

Veresegyház

115.494 M Ft
3 szoba
98 m²
Szentendre
Eladó ikerház

Szentendre

718 M Ft
10 + 2 szoba
578 m²
Pécel
Eladó ikerház

Pécel

149.9 M Ft
5 szoba
306 m²

Falusi CSOK ingatlanok

Letenye
Eladó családi ház

Letenye

34.5 M Ft
4 szoba
100 m²
Úri
Eladó családi ház

Úri

260 M Ft
7 szoba
300 m²
Törtel
Eladó családi ház

Törtel

44 M Ft
2 + 1 szoba
81 m²
Bugac
Eladó családi ház

Bugac

17 M Ft
3 szoba
80 m²
Nyáregyháza
Eladó családi ház

Nyáregyháza

68.9 M Ft
3 szoba
143 m²
Ábrahámhegy
Eladó családi ház

Ábrahámhegy

139 M Ft
4 szoba
106 m²
Bugac
Eladó családi ház

Bugac

90 M Ft
5 szoba
230 m²
Balatonszemes
Eladó téglalakás

Balatonszemes

125.2 M Ft
2 szoba
50 m²