Oasis Residence

Eladó ikerház
Pilis

+ 3 kép 1/6
66 625 000 Ft66.625 M Ft 653 186 Ft/m2
3 szoba
102 m²
építés éve:2023

Részletes adatok

Telekméret: 900 m2
Fűtés: Gázkazán
Energetikai besorolás: Nem adta meg a hirdető

Az OTP Bank lakáshitel ajánlataFizetett hirdetés

3629769723
Majzikné Tóth Krisztina
referens

Érdekel az OTP Bank kedvezményes lakáshitel ajánlata? *

* A kérdésre „Igen” válasz bejelölése esetén, az „Üzenet küldése” gombra kattintva kijelentem, hogy az OTP Bank Nyrt. Adatkezelési tájékoztatójának tartalmát megismertem és tudomásul vettem.

Eladó ikerház leírása

ELADÓ ÚJ ÉPÍTÉSŰ IKERHÁZ PILIS FREKVENTÁLT RÉSZÉN, VASÚTÁLLOMÁS KÖZELÉBEN!

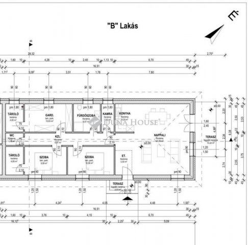
AZ Ingatlan 102 m2 alapterületű egy 900 m2-es telken helyezkedik el. További terasz mérete 20m2. Kiváló lakóközösség zárt Lakóparkban helyezkedik el, új építésű, pár éves ingatlanok szomszédságában.

CSOK, 5%-os áfa, illetékmentesség igénybe vehető.

Kialakítása: 2 szoba, tágas 40 m2-es amerikai nappali konyha, kamra, fürdő+wc, külön wc, gardrób, 2 tároló.

Fűtést gázcirkó biztosítja, mindenhol padlófűtés. Nappaliban 3,5 kw-os inverteres klíma.

EXTRA: viacolor beálló, redőny, Geberit márkájú wc a falba süllyesztve.

Választható hideg és meleg burkolatok 900.000 Ft-ig telje réteg rendben. Dekor fóliás ajtók 60.000 Ft-ig választhatók.

Szigetelés 15 cm, tető szigetelés 30 cm. Sok referencia munkát tudok mutatni, nézzük meg együtt a helyszínt és a kész lakóingatlanokat.
Homlokzat: antracit lábazat, fehér falak, antracit tető.

Közelben: pár perc gyalogosan Vasútállomás, Gyógyszertár... bevásárlási lehetőségek, Iskola, Óvoda.
Budapest autóval M4-es autópálya 25 perc, vonattal Budapest Nyugati Pályaudvarig 50 perc.

Átadás: 2024. augusztus Megbízható kivitelező, több éve a piacon.

Amennyiben felkeltettem érdeklődését, várom megtisztelő hívását a hét bármely napján.
Érd.: Majzikné Tóth Krisztina, tel.: +36/20 927 3299, e-mail: majzikne.krisztina@dh.hu

Referencia szám: HZ099750

Hirdetés feltöltve: 2026. 03. 08. Utoljára módosítva: 2026. 03. 08.

Az ingatlan elhelyezkedése

Cím: Pilis

Eladó ingatlanok a környékről

Pilis
Eladó ikerház

Pilis

66.625 M Ft
3 szoba
102 m²
Pilisvörösvár
Eladó családi ház

Pilisvörösvár

69 M Ft
1 + 2 szoba
50 m²
Pilis
Eladó ikerház

Pilis

68 M Ft
4 szoba
90 m²
Dunakeszi
Eladó ikerház

Dunakeszi

149 M Ft
1 + 4 szoba
127 m²
Dunavarsány
Eladó ikerház

Dunavarsány

71.9 M Ft
1 + 2 szoba
51 m²
Pilis
Eladó ikerház

Pilis

68 M Ft
4 szoba
90 m²
Dunaharaszti
Eladó ikerház

Dunaharaszti

146 M Ft
5 szoba
116 m²
Pomáz
Eladó ikerház

Pomáz

129.5 M Ft
4 szoba
100 m²
Pilisvörösvár
Eladó téglalakás

Pilisvörösvár

74 M Ft
3 szoba
61 m²
Pilis
Eladó ikerház

Pilis

68 M Ft
4 szoba
90 m²
Pilis
Eladó ikerház

Pilis

64.5 M Ft
3 szoba
73 m²
Gyömrő
Eladó családi ház

Gyömrő

95 M Ft
7 szoba
126 m²
Szentendre
Eladó ikerház

Szentendre

718 M Ft
10 + 2 szoba
578 m²
Dunavarsány
Eladó téglalakás

Dunavarsány

74 M Ft
3 + 1 szoba
74 m²
Diósd
Eladó ikerház

Diósd

213.46 M Ft
5 szoba
186 m²
Pilis
Eladó ikerház

Pilis

64.5 M Ft
3 szoba
73 m²
Vác
Eladó ikerház

Vác

96.7 M Ft
4 + 1 szoba
126 m²
Pilis
Eladó ikerház

Pilis

66.33 M Ft
3 szoba
78 m²
Ócsa
Eladó családi ház

Ócsa

79.9 M Ft
3 szoba
83 m²
Szentendre
Eladó ikerház

Szentendre

359 M Ft
5 + 1 szoba
289 m²
Pilisvörösvár
Eladó telek

Pilisvörösvár

60 M Ft
817 m²
Vácrátót
Eladó ikerház

Vácrátót

94.9 M Ft
2 + 3 szoba
108 m²
Pilis
Eladó ikerház

Pilis

68 M Ft
4 szoba
90 m²
Diósd
Eladó ikerház

Diósd

206.25 M Ft
5 szoba
184 m²

Falusi CSOK ingatlanok

Tök
Eladó családi ház

Tök

119.2 M Ft
4 szoba
128 m²
Kőröshegy
Eladó családi ház

Kőröshegy

68 M Ft
3 szoba
65 m²
Tormafölde
Eladó családi ház

Tormafölde

15 M Ft
2 szoba
74 m²
Berzence, Máryás utca
Eladó családi ház

Berzence

27.9 M Ft
3 szoba
94 m²
Fertőd
Eladó téglalakás

Fertőd

58 M Ft
3 + 1 szoba
65 m²
Recsk
Eladó családi ház

Recsk

59 M Ft
2 szoba
70 m²
Kaposgyarmat
Eladó családi ház

Kaposgyarmat

695 M Ft
6 szoba
610 m²
Tápiószőlős
Eladó családi ház

Tápiószőlős

47.5 M Ft
5 szoba
122 m²