BAM Living

Eladó ikerház
Pilis

+ 3 kép 1/6
66 625 000 Ft66.625 M Ft 653 186 Ft/m2
3 szoba
102 m2
építés éve:2023

Részletes adatok

Telekméret: 900 m2
Fűtés: Gázkazán
Energetikai besorolás: Nem adta meg a hirdető

Az OTP Bank lakáshitel ajánlataFizetett hirdetés

3629769724
Nagy Gergő
referens

Érdekel az OTP Bank kedvezményes lakáshitel ajánlata? *

* A kérdésre „Igen” válasz bejelölése esetén, az „Üzenet küldése” gombra kattintva kijelentem, hogy az OTP Bank Nyrt. Adatkezelési tájékoztatójának tartalmát megismertem és tudomásul vettem.

Eladó ikerház leírása

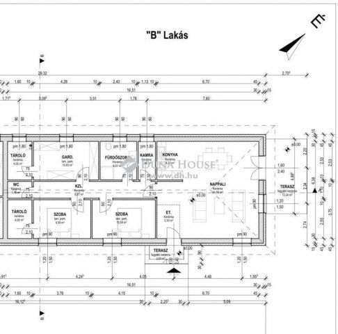
ELADÓ ÚJ ÉPÍTÉSŰ IKERHÁZ PILIS FREKVENTÁLT RÉSZÉN, VASÚTÁLLOMÁS KÖZELÉBEN!AZ Ingatlan 102 m2 alapterületű egy 900 m2-es telken helyezkedik el. További terasz mérete 20m2. Kiváló lakóközösség zárt Lakóparkban helyezkedik el, új építésű, pár éves ingatlanok szomszédságában.CSOK, 5%-os áfa, illetékmentesség igénybe vehető.Kialakítása: 2 szoba, tágas 40 m2-es amerikai nappali konyha, kamra, fürdő+wc, külön wc, gardrób, 2 tároló.Fűtést gázcirkó biztosítja, mindenhol padlófűtés. Nappaliban 3,5 kw-os inverteres klíma.EXTRA: viacolor beálló, redőny, Geberit márkájú wc a falba süllyesztve.Választható hideg és meleg burkolatok 900.000 Ft-ig telje réteg rendben. Dekor fóliás ajtók 60.000 Ft-ig választhatók.Szigetelés 15 cm, tető szigetelés 30 cm. Sok referencia munkát tudok mutatni, nézzük meg együtt a helyszínt és a kész lakóingatlanokat.Homlokzat: antracit lábazat, fehér falak, antracit tető.Közelben: pár perc gyalogosan Vasútállomás, Gyógyszertár... bevásárlási lehetőségek, Iskola, Óvoda.Budapest autóval M4-es autópálya 25 perc, vonattal Budapest Nyugati Pályaudvarig 50 perc.Átadás: 2024. augusztus Megbízható kivitelező, több éve a piacon.Amennyiben felkeltettem érdeklődését, várom megtisztelő hívását a hét bármely napján.
Amenyiben talált kapcsolódási pontot az ingatlannal keressen.
A megtekintés díjtalan!
Nagy Gergő, tel.: +36/70 946 5368, e-mail: nagy.gergo1@dh.hu

Referencia szám: HZ099750

Hirdetés feltöltve: 2025. 10. 01. Utoljára módosítva: 2026. 01. 12.

Az ingatlan elhelyezkedése

Cím: Pilis

Eladó ingatlanok a környékről

Eladó telek
Eladó telek

Dabas

5.99 M Ft
806 m²
806 m2
Eladó ikerház
Eladó ikerház

Üröm, Üröm

126.9 M Ft
4 szoba
128 m2
Eladó ikerház
Eladó ikerház

Pilis

66.33 M Ft
3 szoba
78 m2
Eladó családi ház
Eladó családi ház

Mogyoród, Lake Forest Villapark

285 M Ft
6 + 4 szoba
404 m2
Eladó családi ház
Eladó családi ház

Nagykőrös

69 M Ft
1 + 4 szoba
150 m2
Eladó ikerház
Eladó ikerház

Pilis

64.5 M Ft
3 szoba
73 m2
Eladó ikerház
Eladó ikerház

Vác

175.356 M Ft
5 szoba
165 m2
Eladó ikerház
Eladó ikerház

Szentendre, Szentendre

398 M Ft
5 szoba
267 m2
Eladó ikerház
Eladó ikerház

Pilis

64.5 M Ft
3 szoba
73 m2
Eladó családi ház
Eladó családi ház

Leányfalu

390 M Ft
13 szoba
530 m2
Eladó családi ház
Eladó családi ház

Örkény

41.9 M Ft
3 szoba
77 m2
Eladó ikerház
Eladó ikerház

Pusztazámor

55 M Ft
10 szoba
470 m2
Eladó ikerház
Eladó ikerház

Mogyoród

135 M Ft
5 szoba
137 m2
Eladó családi ház
Eladó családi ház

Pilisborosjenő, Pilisborosjenő, központ

120 M Ft
3 szoba
80 m2
Eladó családi ház
Eladó családi ház

Dabas

52 M Ft
2 + 2 szoba
90 m2
Eladó ikerház
Eladó ikerház

Vác

149.9 M Ft
5 szoba
202 m2
Eladó ikerház
Eladó ikerház

Pilis

66.33 M Ft
3 szoba
78 m2
Eladó ikerház
Eladó ikerház

Vác

96.5 M Ft
4 + 1 szoba
129 m2
Eladó ikerház
Eladó ikerház

Diósd

206.25 M Ft
5 szoba
184 m2
Eladó ikerház
Eladó ikerház

Mogyoród

129 M Ft
5 szoba
123 m2
Eladó ikerház
Eladó ikerház

Üröm, Üröm, Rókahegy lakópark

198 M Ft
5 szoba
125 m2
Eladó ikerház
Eladó ikerház

Pilis

56.8 M Ft
3 szoba
66 m2
Eladó ikerház
Eladó ikerház

Pilis, Nincs utca

34.5 M Ft
2 szoba
66 m2
Eladó ikerház
Eladó ikerház

Szentendre

179 M Ft
5 + 1 szoba
147 m2

Falusi CSOK ingatlanok

Eladó családi ház
Eladó családi ház

Somlóvásárhely

39.8 M Ft
1 szoba
78 m2
Eladó családi ház
Eladó családi ház

Tésenfa, Kossuth utca 23/a

5.55 M Ft
1 + 1 szoba
109 m2
Eladó családi ház
Eladó családi ház

Tab

14.9 M Ft
3 szoba
110 m2
Eladó családi ház
Eladó családi ház

Szabadbattyán

163.99 M Ft
5 szoba
255 m2
Eladó családi ház
Eladó családi ház

Mikepércs

56 M Ft
3 + 1 szoba
87 m2
Eladó családi ház
Eladó családi ház

Berzence

31.9 M Ft
6 szoba
136 m2
Eladó családi ház
Eladó családi ház

Szigliget

299 M Ft
3 szoba
95 m2
Eladó családi ház
Eladó családi ház

Bag

16.9 M Ft
6 szoba
160 m2