Avico

Eladó ikerház
Őrbottyán

+ 6 kép 1/9
85 900 000 Ft85.9 M Ft 740 517 Ft/m2
4 szoba
116 m2
építés éve:2025

Részletes adatok

Telekméret: 380 m2
Fűtés: Egyéb
Parkolás: Kocsibeálló
Közmű: Víz, Villany, Csatorna
Energetikai besorolás: Nem adta meg a hirdető

Az OTP Bank lakáshitel ajánlataFizetett hirdetés

+36 70 418
Kovács Péter
referens

Érdekel az OTP Bank kedvezményes lakáshitel ajánlata? *

* A kérdésre „Igen” válasz bejelölése esetén, az „Üzenet küldése” gombra kattintva kijelentem, hogy az OTP Bank Nyrt. Adatkezelési tájékoztatójának tartalmát megismertem és tudomásul vettem.

Eladó ikerház leírása

Új építésű, dupla-komfortos ikerházi lakások eladók Őrbottyánban a tó közelében!

A két lakás csak a belső lépcsőházakkal érintkezik!
A lakások bruttó területe 116 nm, nettó lakótér 105 nm + terasz + 2 erkély, amerikai konyhás nappali + 3 szobás elrendezésűek, dupla-komfortosak, lakásonként kb. 380 nm-es saját telekrésszel.

CÉGES ÉPÍTKEZÉS, a 2024-től aktuális állami támogatások valamint kedvezményes, kamattámogatott hitelek felvehetőek – akár a 3%-os OTTHON START hitel, CSOK PLUS, babaváró is igényelhető, az ügyintézésben díjmentesen segítünk!
Az építő munkájára jellemző a megbízhatóság és igényesség, leinformálható, referencia házai megtekinthetők.


Rövid műszaki tartalom:
Az ikerház 30-as Porotherm téglából, 15 cm-es külső homlokzati hőszigeteléssel épül.
A tetőre betoncserép fedés kerül.
Az ablakok fehér színű, műanyag szerkezetű, háromrétegű, hőszigetelő üvegezéssel ellátottak.

A fűtés modern, hőszivattyús fűtésrendszerrel kerül kialakításra, a hőleadás, padlófűtéssel fog történni a teljes lakótérben.

A szobákba laminált parketta, a vizes helyiségekben kerámia burkolat kerül, a belső műszaki tartalomban vállalt árakig.

Parkolás udvari beállón kerül kialakításra.

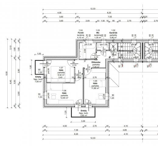
Helyiségek:
Földszint: amerikai konyhás nappali 40,15 nm, kapcsolódó terasz 16 nm, előszoba 4,15 nm, zuhanyzó 5,1 nm, tároló 2,52 nm, lépcső 5,5 nm.
Emelet: 3 szoba 12,8 – 11,88 és 9,52 nm, fürdőszoba 4,1 nm, gardrób 0,86 nm, közlekedő 7,26 nm, külön WC 1,35 nm, 2 erkély 3,6 nm és 1,8 nm.

A lakások kulcsrakész állapotban kerülnek átadásra, konyhabútor nélkül.
Burkolatok, szaniterek választhatók, a belső műszaki tartalomban vállalt árig a vételár részét képezve.

Ár: 85.900.000.- Ft/lakás
Azonosító: 4652

Hirdetés feltöltve: 2025. 11. 02. Utoljára módosítva: 2025. 11. 02.

4 szobás ikerházak ára Őrbottyánban

Ebből az összehasonlításból megtudhatod, hogyan viszonyul a lakás ára a környékbeli ikerházak átlagos árához. Ez nem azt jelenti, hogy ennyivel olcsóbb vagy drágább, mint amennyit a lakás ér, hanem hogy ennyivel tér el a környékbeli átlagtól.

Ennek a m² ára
Őrbottyán m² ár
741 e Ft
959 e Ft 23%
Ennek az ára
Őrbottyán átlagár
85.9 M Ft m Ft
85.8 m Ft 0%

Az ingatlan elhelyezkedése

Cím: Őrbottyán

Eladó ikerházak a környékről

Eladó ikerház
Eladó ikerház

Őrbottyán

110 M Ft
5 szoba
113 m2
Eladó ikerház
Eladó ikerház

Pécel, Pécel - kertváros

127 M Ft
4 szoba
125 m2
Eladó ikerház
Eladó ikerház

Őrbottyán

90.75 M Ft
4 szoba
93 m2
Eladó ikerház
Eladó ikerház

Üröm

249.9 M Ft
4 szoba
154 m2
Eladó ikerház
Eladó ikerház

Őrbottyán

110 M Ft
5 szoba
140 m2
Eladó ikerház
Eladó ikerház

Őrbottyán

89.2 M Ft
3 szoba
117 m2
Eladó ikerház
Eladó ikerház

Vác

96.5 M Ft
4 + 1 szoba
129 m2
Eladó ikerház
Eladó ikerház

Őrbottyán

110 M Ft
5 szoba
117 m2
Eladó ikerház
Eladó ikerház

Pécel

149.9 M Ft
5 szoba
306 m2
Eladó ikerház
Eladó ikerház

Őrbottyán

110 M Ft
1 + 4 szoba
116 m2
Eladó ikerház
Eladó ikerház

Pusztazámor

55 M Ft
10 szoba
470 m2
Eladó ikerház
Eladó ikerház

Érd, Érdligeten található utca

64.9 M Ft
4 szoba
112 m2
Eladó ikerház
Eladó ikerház

Őrbottyán

92.5 M Ft
4 + 1 szoba
116 m2
Eladó ikerház
Eladó ikerház

Tahitótfalu

88.9 M Ft
4 szoba
110 m2
Eladó ikerház
Eladó ikerház

Őrbottyán, Kálvária utca

90.75 M Ft
4 szoba
93 m2
Eladó ikerház
Eladó ikerház

Dunakeszi

149 M Ft
1 + 4 szoba
127 m2
Eladó ikerház
Eladó ikerház

Mogyoród, Fóti út

188 M Ft
6 szoba
182 m2
Eladó ikerház
Eladó ikerház

Őrbottyán

84.9 M Ft
5 szoba
117 m2
Eladó ikerház
Eladó ikerház

Őrbottyán

89.2 M Ft
3 szoba
117 m2
Eladó ikerház
Eladó ikerház

Őrbottyán

88.95 M Ft
4 szoba
93 m2
Eladó ikerház
Eladó ikerház

Őrbottyán

79.8 M Ft
3 szoba
112 m2
Eladó ikerház
Eladó ikerház

Szentendre, Szentendre

398 M Ft
5 szoba
267 m2
Eladó ikerház
Eladó ikerház

Szentendre

179 M Ft
5 + 1 szoba
147 m2
Eladó ikerház
Eladó ikerház

Solymár

150 M Ft
4 + 2 szoba
252 m2

Falusi CSOK ingatlanok

Eladó családi ház
Eladó családi ház

Ádánd

55.5 M Ft
6 szoba
180 m2
Eladó családi ház
Eladó családi ház

Bugac

69.9 M Ft
4 szoba
130 m2
Eladó családi ház
Eladó családi ház

Ságvár

59.9 M Ft
3 szoba
87 m2
Eladó családi ház
Eladó családi ház

Tass

95 M Ft
5 szoba
409 m2
Eladó családi ház
Eladó családi ház

Tóalmás

35 M Ft
1 szoba
36 m2
Eladó családi ház
Eladó családi ház

Kaposgyarmat

5.9 M Ft
1 szoba
40 m2
Eladó családi ház
Eladó családi ház

Besnyő

105.999 M Ft
6 szoba
189 m2
Eladó családi ház
Eladó családi ház

Újszilvás

9.5 M Ft
3 szoba
57 m2