Astora Olive Club House

Eladó ikerház
Őrbottyán

89 500 000 Ft89.5 M Ft 962 366 Ft/m2
4 szoba
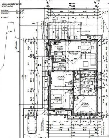
93 m2
építés éve:2024

Részletes adatok

Telekméret: 769 m2
Fűtés: Geotermikus
Energetikai besorolás: Nem adta meg a hirdető

Az OTP Bank lakáshitel ajánlataFizetett hirdetés

+36 20 220
Szabó Sándor
referens

Érdekel az OTP Bank kedvezményes lakáshitel ajánlata? *

* A kérdésre „Igen” válasz bejelölése esetén, az „Üzenet küldése” gombra kattintva kijelentem, hogy az OTP Bank Nyrt. Adatkezelési tájékoztatójának tartalmát megismertem és tudomásul vettem.

Eladó ikerház leírása

MEGÚJULÓ ENERGIÁVAL ÉPŰLŐ INGATLANOK ŐRBOTTYÁNBAN!

Őrbottyán központi részén megvételre kínálok újonnan épülő ingatlanokat!
A házak magas műszaki tartalommal épülnek.
- 3 rétegű nyílászárók
- Bramac tetőcserép
- 12 cm szigetelés
- H-tarifás óra
- napelem előkészítés
- riasztórendszer kiállás
- hőszivattyús fűtés, padlófűtés
Az ingatlanok kulcsrakész állapotban kerülnek átadásra, az építés jelenlegi fázisában lehetőség van a burkolatok, szaniterek, beltéri, illetve bejárati ajtó kiválasztására, a műszaki tartalomban megjelölt összegig. Az udvaron belül térburkolattal ellátott parkolóhely kerül kialakításra.
Egyes házaknál teljes mértékben a vevő igényeire szabható az ingatlan, akár a tervek is módosíthatóak!
Az ingatlan kiváló infrastruktúrával rendelkezik mindössze 30-40 percre helyezkedik el a belvárostól. A környéken megtalálható, óvoda iskola, orvosi rendelő, gyógyszertár, bevásárlási lehetőség.

Ha további kérdése lenne vagy szeretné megtekinteni az ingatlant hívjon bizalommal akár hétvégén is!
Érd.: Szabó Sándor +3620-220 4440

Referencia szám: M279237-ZE

Hirdetés feltöltve: 2025. 09. 28. Utoljára módosítva: 2025. 11. 07.

4 szobás ikerházak ára Őrbottyánban

Ebből az összehasonlításból megtudhatod, hogyan viszonyul a lakás ára a környékbeli ikerházak átlagos árához. Ez nem azt jelenti, hogy ennyivel olcsóbb vagy drágább, mint amennyit a lakás ér, hanem hogy ennyivel tér el a környékbeli átlagtól.

Ennek a m² ára
Őrbottyán m² ár
962 e Ft
959 e Ft 0%
Ennek az ára
Őrbottyán átlagár
89.5 M Ft m Ft
85.8 m Ft -4%

Az ingatlan elhelyezkedése

Cím: Őrbottyán

Eladó ikerházak a környékről

Eladó ikerház
Eladó ikerház

Vác

94.5 M Ft
4 + 1 szoba
126 m2
Eladó ikerház
Eladó ikerház

Őrbottyán

90.75 M Ft
4 szoba
81 m2
Eladó ikerház
Eladó ikerház

Őrbottyán, Kálvária utca

90.75 M Ft
4 szoba
93 m2
Eladó ikerház
Eladó ikerház

Őrbottyán, Kálvária utca

88.95 M Ft
4 szoba
90 m2
Eladó ikerház
Eladó ikerház

Érd, Érdligeten található utca

64.9 M Ft
4 szoba
112 m2
Eladó ikerház
Eladó ikerház

Veresegyház

145 M Ft
4 szoba
120 m2
Eladó ikerház
Eladó ikerház

Őrbottyán

92.5 M Ft
5 szoba
132 m2
Eladó ikerház
Eladó ikerház

Tahitótfalu

88.9 M Ft
4 szoba
110 m2
Eladó ikerház
Eladó ikerház

Őrbottyán

110 M Ft
5 szoba
140 m2
Eladó ikerház
Eladó ikerház

Vác

175.356 M Ft
5 szoba
165 m2
Eladó ikerház
Eladó ikerház

Dunakeszi

149 M Ft
1 + 4 szoba
127 m2
Eladó ikerház
Eladó ikerház

Őrbottyán

79.8 M Ft
3 szoba
112 m2
Eladó ikerház
Eladó ikerház

Őrbottyán

98 M Ft
5 szoba
120 m2
Eladó ikerház
Eladó ikerház

Őrbottyán

110 M Ft
5 szoba
117 m2
Eladó ikerház
Eladó ikerház

Pusztazámor

55 M Ft
10 szoba
470 m2
Eladó ikerház
Eladó ikerház

Őrbottyán

89.2 M Ft
3 szoba
117 m2
Eladó ikerház
Eladó ikerház

Mogyoród, Fóti út

188 M Ft
6 szoba
182 m2
Eladó ikerház
Eladó ikerház

Őrbottyán

92.85 M Ft
4 szoba
82 m2
Eladó ikerház
Eladó ikerház

Őrbottyán

110 M Ft
1 + 4 szoba
116 m2
Eladó ikerház
Eladó ikerház

Diósd

213.46 M Ft
5 szoba
186 m2
Eladó ikerház
Eladó ikerház

Rád

100 M Ft
4 szoba
152 m2
Eladó ikerház
Eladó ikerház

Őrbottyán

84.9 M Ft
5 szoba
117 m2
Eladó ikerház
Eladó ikerház

Őrbottyán

90.75 M Ft
4 szoba
93 m2
Eladó ikerház
Eladó ikerház

Őrbottyán

88.95 M Ft
4 szoba
93 m2

Falusi CSOK ingatlanok

Eladó családi ház
Eladó családi ház

Bócsa

68 M Ft
3 szoba
100 m2
Eladó családi ház
Eladó családi ház

Álmosd

13.9 M Ft
2 szoba
80 m2
Eladó családi ház
Eladó családi ház

Enese

78.9 M Ft
4 szoba
90 m2
Eladó családi ház
Eladó családi ház

Tass

55 M Ft
2 + 1 szoba
65 m2
Eladó családi ház
Eladó családi ház

Tabdi

95 M Ft
45 szoba
1490 m2
Eladó családi ház
Eladó családi ház

Mezőfalva

39 M Ft
3 szoba
77 m2
Eladó családi ház
Eladó családi ház

Badacsonytomaj

199.8 M Ft
3 szoba
166 m2
Eladó családi ház
Eladó családi ház

Onga

65 M Ft
5 szoba
168 m2