NapForrás 20 - Buda

Eladó ikerház
Nyírtura

Figyelem!

Ez az ingatlan a 2019.07.01-től induló falusi CSOK által támogatott településen található

+ 10 kép 1/13
62 990 000 Ft62.99 M Ft 629 900 Ft/m2
3 szoba
100 m2
építés éve:2026

Részletes adatok

Telekméret: 500 m2
Fűtés: Egyéb
Közmű: Víz, Villany, Csatorna
Energetikai besorolás: Nem adta meg a hirdető

Az OTP Bank lakáshitel ajánlataFizetett hirdetés

+36 30 567
DoraLi'ingatlan
DoraLi'Ingatlan

Érdekel az OTP Bank kedvezményes lakáshitel ajánlata? *

* A kérdésre „Igen” válasz bejelölése esetén, az „Üzenet küldése” gombra kattintva kijelentem, hogy az OTP Bank Nyrt. Adatkezelési tájékoztatójának tartalmát megismertem és tudomásul vettem.

Eladó ikerház leírása

Eladó ikerház Nyíregyházától pár percre, Nyírturán – Falusi CSOK igényelhető!

Kiváló elhelyezkedésű, modern, prémium kivitelezésű ikerházat kínálok eladásra Nyírturán, mindössze néhány percre Nyíregyházától!

A ház Falusi CSOK-ra alkalmas, így ideális választás lehet fiatal pároknak és családoknak is.

Főbb jellemzők:
• 100 m2-es alapterület
• Amerikai konyhás nappali + 3 különnyíló szoba
• Hőszivattyús fűtési rendszer padlófűtéssel
• A beltéri ajtók és burkolatok még választhatók – alakítsa saját ízlésére új otthonát!
• A két lakás csak garázsnál érintkezik, így megmarad a teljes intimitás
• Tágas telek, igényes kivitelezés, modern megoldások

A fotók referencia munkákat mutatnak, a kivitelezés minőségét szemléltetik.
Várható átadás: 2026 nyara
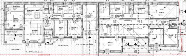
(A vételár nem tartalmazza a konyhabútort és berendezést. Az alaprajz tájékoztató jellegű.)

Amennyiben felkeltette érdeklődését, kérem, hívjon bizalommal a részletekért vagy személyes megtekintés egyeztetéséhez!

Hirdetés feltöltve: 2025. 11. 05. Utoljára módosítva: 2025. 12. 09.

Az ingatlan elhelyezkedése

Cím: Nyírtura

Eladó ingatlanok a környékről

Eladó családi ház
Eladó családi ház

Timár

31.9 M Ft
3 szoba
112 m2
Eladó ikerház
Eladó ikerház

Nyíregyháza

83 M Ft
4 szoba
122 m2
Eladó családi ház
Eladó családi ház

Pátroha

36 M Ft
5 szoba
140 m2
Eladó téglalakás
Eladó téglalakás

Nyíregyháza

60 M Ft
2 + 1 szoba
86 m2
Eladó ikerház
Eladó ikerház

Nyíregyháza

69.9 M Ft
4 szoba
101 m2
Eladó téglalakás
Eladó téglalakás

Nyíregyháza

41 M Ft
3 szoba
55 m2
Eladó ikerház
Eladó ikerház

Nyíregyháza, Oros, Pompás utca

75 M Ft
4 szoba
110 m2
Eladó téglalakás
Eladó téglalakás

Nyíregyháza

40.99 M Ft
3 szoba
55 m2
Eladó ikerház
Eladó ikerház

Nyíregyháza

103 M Ft
4 szoba
143 m2
Eladó családi ház
Eladó családi ház

Tiszanagyfalu

25.5 M Ft
2 szoba
70 m2
Eladó ikerház
Eladó ikerház

Nyíregyháza

105 M Ft
4 + 2 szoba
188 m2
Eladó téglalakás
Eladó téglalakás

Nyíregyháza

69.9 M Ft
2 + 2 szoba
140 m2
Eladó ikerház
Eladó ikerház

Nagykálló

68.5 M Ft
4 szoba
155 m2
Eladó telek
Eladó telek

Nyíregyháza, Belváros, Tamás utca

8.3 M Ft
3930 m²
3930 m2
Eladó telek
Eladó telek

Nyíregyháza

11 M Ft
2259 m²
2259 m2
Eladó ikerház
Eladó ikerház

Nyíregyháza

80 M Ft
4 szoba
112 m2
Eladó ikerház
Eladó ikerház

Nyíregyháza

62 M Ft
2 + 1 szoba
105 m2
Eladó családi ház
Eladó családi ház

Újfehértó

42.9 M Ft
6 szoba
190 m2
Eladó téglalakás
Eladó téglalakás

Nyíregyháza

41.5 M Ft
2 szoba
58 m2
Eladó téglalakás
Eladó téglalakás

Nyíregyháza

41 M Ft
1 + 2 szoba
55 m2
Eladó családi ház
Eladó családi ház

Szabolcsbáka

31.35 M Ft
2 szoba
77 m2
Eladó családi ház
Eladó családi ház

Nyírkarász

25 M Ft
2 + 1 szoba
100 m2
Eladó ikerház
Eladó ikerház

Nyírtura

62.99 M Ft
3 szoba
100 m2
Eladó ikerház
Eladó ikerház

Nyíregyháza, Belváros, Rózsa utca

155 M Ft
6 szoba
278 m2

Falusi CSOK ingatlanok

Eladó téglalakás
Eladó téglalakás

Balatonszemes

91.5 M Ft
2 szoba
60 m2
Eladó családi ház
Eladó családi ház

Törtel

32 M Ft
2 szoba
67 m2
Eladó családi ház
Eladó családi ház

Jászalsószentgyörgy

39.9 M Ft
2 szoba
74 m2
Eladó családi ház
Eladó családi ház

Alattyán

8.5 M Ft
1 + 1 szoba
70 m2
Eladó ikerház
Eladó ikerház

Seregélyes

39.9 M Ft
4 szoba
150 m2
Eladó családi ház
Eladó családi ház

Tapsony

23.8 M Ft
3 szoba
130 m2
Eladó családi ház
Eladó családi ház

Tápiógyörgye

32 M Ft
3 szoba
86 m2
Eladó téglalakás
Eladó téglalakás

Balatonszemes

125.2 M Ft
2 szoba
50 m2

Falusi CSOK ingatlanok

Eladó családi ház
Eladó családi ház

Szil

25 M Ft
2 szoba
90 m2
Eladó családi ház
Eladó családi ház

Ráksi

69.9 M Ft
4 szoba
139 m2
Eladó családi ház
Eladó családi ház

Kenyeri

21.8 M Ft
2 szoba
75 m2
Eladó családi ház
Eladó családi ház

Vasvár

64.9 M Ft
3 szoba
91 m2
Eladó családi ház
Eladó családi ház

Hahót

64.9 M Ft
5 szoba
118 m2
Eladó családi ház
Eladó családi ház

Tésenfa, Kossuth utca 23/a

5.55 M Ft
1 + 1 szoba
109 m2
Eladó családi ház
Eladó családi ház

Hernádnémeti

18.9 M Ft
2 szoba
62 m2
Eladó családi ház
Eladó családi ház

Kondorfa, Fővég utca

24.9 M Ft
3 szoba
102 m2