Astora Márvány8

Eladó ikerház
Nyírtura, Liliom utca

Figyelem!

Ez az ingatlan a 2019.07.01-től induló falusi CSOK által támogatott településen található

1/2
66 900 000 Ft66.9 M Ft 743 333 Ft/m2
4 szoba
90 m²
építés éve:2027

Részletes adatok

Telekméret: 1200 m2
Fűtés: Egyéb
Energetikai besorolás: Nem adta meg a hirdető

Az OTP Bank lakáshitel ajánlataFizetett hirdetés

3642815001
Vass István
Duna House - Nyíregyháza, Szegfű utca

Érdekel az OTP Bank kedvezményes lakáshitel ajánlata? *

* A kérdésre „Igen” válasz bejelölése esetén, az „Üzenet küldése” gombra kattintva kijelentem, hogy az OTP Bank Nyrt. Adatkezelési tájékoztatójának tartalmát megismertem és tudomásul vettem.

Eladó ikerház leírása

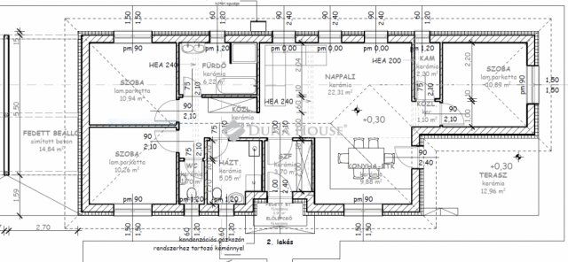
Nyírtura településen, komoly referenciával rendelkező kivitelező által megépített, 90 nm-es, nappali +3 szobás, szigetelt, műanyag nyílászárós, új építésű ikerház, 2027 tavaszi átadással, 600 nm-es telken eladó.

- a lakótér 90 nm + 18 nm fedett gépkocsibeálló + 13 nm terasz
- nappali-konyha-étkező, 3 hálószoba, fürdőszoba-wc, külön wc, háztartási helyiség, kamra, előszoba, közlekedő tagolja
- a telek 600 nm
- Porotherm N+F 30-as téglából épül, 15 cm-es homlokzati szigeteléssel
- a külső és belső burkolatok a vevő igényeinek megfelelő minőségben, illetve színvilágban kerülhetnek beépítésre, amennyiben a kivitelezés alatt lefoglalja az ingatlant
- korszerű hőszivattyús fűtésrendszer, minden helyiségben padlófűtéssel szerelve
- a vételár 100 %-os, kulcsrakész állapotot jelent.
- kellemes környezetben, csupa új építésű házak szomszédságában
-a piacon lévő kedvezmények igénybe vehetők az ingatlanra.

Független pénzügyi szakértő kollégáink ingyenesen, sorban állás nélkül kalauzolják el Önöket, és keresik meg személyre szabottan a legjobb hitel és támogatási konstrukciókat. Hitelfelvétellel kapcsolatban ingatlantól függetlenül állunk leendő ügyfeleink rendelkezésére.

Hirdetés feltöltve: 2026. 03. 04. Utoljára módosítva: 2026. 03. 04.

Az ingatlan elhelyezkedése

Cím: Nyírtura, Liliom utca

Eladó ingatlanok a környékről

Kisvárda
Eladó téglalakás

Kisvárda

42 M Ft
2 szoba
56 m²
Nyíregyháza
Eladó családi ház

Nyíregyháza

24.9 M Ft
2 szoba
55 m²
Nyíregyháza
Eladó téglalakás

Nyíregyháza

54.9 M Ft
2 szoba
64 m²
Gyulaháza
Eladó családi ház

Gyulaháza

15 M Ft
2 szoba
50 m²
Nyíregyháza
Eladó ikerház

Nyíregyháza

80 M Ft
3 + 1 szoba
113 m²
Nyíregyháza
Eladó ikerház

Nyíregyháza

83 M Ft
4 szoba
122 m²
Nyíregyháza
Eladó panellakás

Nyíregyháza

53 M Ft
1 + 2 szoba
62 m²
Nyíregyháza, Örökösföld, Törzs utca 2
Eladó ikerház

Nyíregyháza

114.9 M Ft
5 szoba
129 m²
Nagycserkesz
Eladó családi ház

Nagycserkesz

11.9 M Ft
2 szoba
40 m²
Nyíregyháza
Eladó nyaraló

Nyíregyháza

89.99 M Ft
4 szoba
117 m²
Mándok
Eladó családi ház

Mándok

10.5 M Ft
2 szoba
80 m²
Nyíregyháza
Eladó ikerház

Nyíregyháza

69.9 M Ft
4 szoba
165 m²
Nyíregyháza
Eladó panellakás

Nyíregyháza

40.9 M Ft
2 szoba
51 m²
Bököny
Eladó családi ház

Bököny

46.9 M Ft
3 szoba
175 m²
Nyíregyháza
Eladó panellakás

Nyíregyháza

36.9 M Ft
2 szoba
55 m²
Nyíregyháza
Eladó téglalakás

Nyíregyháza

79.9 M Ft
3 szoba
78 m²
Nyíregyháza
Eladó ikerház

Nyíregyháza

92 M Ft
5 szoba
144 m²
Nyíregyháza
Eladó ikerház

Nyíregyháza

76 M Ft
2 + 1 szoba
100 m²
Nyíregyháza
Eladó ikerház

Nyíregyháza

107 M Ft
2 szoba
180 m²
Nyíregyháza
Eladó ikerház

Nyíregyháza

69.9 M Ft
4 szoba
101 m²
Nyíregyháza
Eladó ikerház

Nyíregyháza

85 M Ft
4 szoba
120 m²
Nyíregyháza
Eladó ikerház

Nyíregyháza

80 M Ft
3 szoba
125 m²
Nyírkarász
Eladó családi ház

Nyírkarász

11.5 M Ft
1 szoba
55 m²
Nyíregyháza
Eladó ikerház

Nyíregyháza

62 M Ft
2 + 1 szoba
105 m²

Falusi CSOK ingatlanok

Vasboldogasszony
Eladó családi ház

Vasboldogasszony

85 M Ft
6 szoba
180 m²
Magyarszék
Eladó családi ház

Magyarszék

48.5 M Ft
3 + 1 szoba
86 m²
Mád
Eladó családi ház

Mád

48 M Ft
3 szoba
181 m²
Újlengyel
Eladó ikerház

Újlengyel

78 M Ft
4 szoba
88 m²
Bugac
Eladó családi ház

Bugac

15 M Ft
3 szoba
52 m²
Kőtelek
Eladó családi ház

Kőtelek

25 M Ft
2 szoba
90 m²
Felsőmocsolád
Eladó családi ház

Felsőmocsolád

48 M Ft
4 szoba
150 m²
Véménd
Eladó családi ház

Véménd

81.9 M Ft
3 szoba
150 m²

Falusi CSOK ingatlanok

Lengyeltóti
Eladó családi ház

Lengyeltóti

93.9 M Ft
7 szoba
200 m²
Véménd
Eladó családi ház

Véménd

81.9 M Ft
3 szoba
150 m²
Ostffyasszonyfa
Eladó családi ház

Ostffyasszonyfa

37.9 M Ft
5 szoba
494 m²
Szilvásvárad
Eladó családi ház

Szilvásvárad

104.9 M Ft
5 szoba
340 m²
Magyarszerdahely, Vadalmás utca
Eladó családi ház

Magyarszerdahely

104 M Ft
4 szoba
145 m²
Kemecse
Eladó családi ház

Kemecse

71.9 M Ft
4 szoba
144 m²
Sávoly, Rákóczi Ferenc utca 76
Eladó családi ház

Sávoly

12.94 M Ft
2 + 1 szoba
88 m²
Hosszúhetény, Iskola utca 2
Eladó családi ház

Hosszúhetény

9.3 M Ft
4 szoba
145 m²