BAM Living

Eladó ikerház
Nyíregyháza

+ 17 kép 1/20
129 000 000 Ft129 M Ft 1 151 786 Ft/m2
2 + 1 szoba
112 m²
építés éve:2019

Részletes adatok

Állapot: Újszerű
Telekméret: 600 m2
Fűtés: Gázkazán
Energetikai besorolás: A+

Az OTP Bank lakáshitel ajánlataFizetett hirdetés

+36 30 292
Takács Erzsébet
OTP Ingatlanpont

Érdekel az OTP Bank kedvezményes lakáshitel ajánlata? *

* A kérdésre „Igen” válasz bejelölése esetén, az „Üzenet küldése” gombra kattintva kijelentem, hogy az OTP Bank Nyrt. Adatkezelési tájékoztatójának tartalmát megismertem és tudomásul vettem.

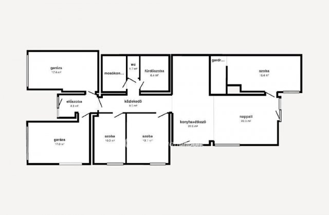
Eladó ikerház leírása

Nyíregyháza egyik legcsendesebb és legkedveltebb részén, a Báthory-lakópark nyugodt, lakó-pihenő övezetében kínálok megvételre egy 2019-ben épült, különleges hangulatú családi otthont, amely a modern kényelmet és a harmonikus életteret ötvözi. A 600 nm-es telken elhelyezkedő ingatlan gondosan kialakított kerttel várja új tulajdonosát, ahol az automata öntözőrendszerrel ellátott pihenőkert valódi kikapcsolódást nyújt a mindennapok után. A ház 112 nm alapterületű, tágas és világos terekkel, ahol a három külön nyíló szoba és az amerikai konyhás nappali kényelmes, családbarát elrendezést biztosít. A nappalit egy elegáns beépített kandalló teszi teljessé, amely a hűvösebb estéken különleges hangulatot teremt. Az otthon egyik legvonzóbb része a közel 60 nm-es fedett terasz, amely ideális helyszíne lehet a nyugodt reggeli kávézásoknak, nyári vacsoráknak vagy baráti összejöveteleknek. A gazdaságos fenntartásról napelemrendszer, gázcirkó fűtés, valamint két darab hűtő-fűtő klíma gondoskodik, míg a kamera- és riasztórendszer a biztonságot szolgálja. A praktikus kialakítás része a külön mosókonyha, a két mellékhelyiség és a kétállásos garázs is. A fürdőszoba 2025-ben teljes körű, igényes felújításon esett át. A beépített bútorok a vételár részét képezik, a további berendezések pedig megegyezés szerint az ingatlanban maradhatnak. Ez az otthon nem csupán egy ingatlan, hanem egy harmonikus élettér, ahol minden adott a nyugodt, hosszú távon is élvezhető mindennapokhoz.

OTP Banki hátterünknek köszönhetően finanszírozási igényekben (pl. Otthon Start Hitelprogram, Babaváró, Falusi CSOK, CSOK Plusz, Lakáshitel, Személyi kölcsön stb.), illetve biztosítások tekintetében is díjmentesen, soron kívüli ügyintézéssel segítem ügyfeleim! Referenciaszám: M324748

Érdeklődni:
Takács Erzsó
06 30 292 0107

Referencia szám: M324748

Hirdetés feltöltve: 2026. 04. 22. Utoljára módosítva: 2026. 05. 10.

3 szobás ikerházak ára Nyíregyházán

Ebből az összehasonlításból megtudhatod, hogyan viszonyul a lakás ára a környékbeli ikerházak átlagos árához. Ez nem azt jelenti, hogy ennyivel olcsóbb vagy drágább, mint amennyit a lakás ér, hanem hogy ennyivel tér el a környékbeli átlagtól.

Ennek a m² ára
Nyíregyháza m² ár
1152 e Ft
813 e Ft -42%
Ennek az ára
Nyíregyháza átlagár
129 M Ft m Ft
86.4 m Ft -49%

Az ingatlan elhelyezkedése

Cím: Nyíregyháza

Eladó ikerházak a környékről

Nyíregyháza
Eladó ikerház

Nyíregyháza

76 M Ft
2 + 1 szoba
100 m²
Nyíregyháza
Eladó ikerház

Nyíregyháza

74.9 M Ft
4 szoba
116 m²
Nyíregyháza
Eladó ikerház

Nyíregyháza

80 M Ft
3 + 1 szoba
113 m²
Nyíregyháza, Belváros, Rózsa utca
Eladó ikerház

Nyíregyháza

139 M Ft
6 szoba
278 m²
Nyíregyháza
Eladó ikerház

Nyíregyháza

76 M Ft
2 + 1 szoba
100 m²
Nyíregyháza
Eladó ikerház

Nyíregyháza

75 M Ft
2 + 1 szoba
105 m²
Nyíregyháza
Eladó ikerház

Nyíregyháza

73.9 M Ft
4 szoba
113 m²
Nyíregyháza
Eladó ikerház

Nyíregyháza

83 M Ft
4 szoba
122 m²
Nyíregyháza
Eladó ikerház

Nyíregyháza

120.7 M Ft
4 szoba
141 m²
Nyíregyháza
Eladó ikerház

Nyíregyháza

73.9 M Ft
4 szoba
113 m²
Nyíregyháza
Eladó ikerház

Nyíregyháza

74.9 M Ft
4 szoba
116 m²
Nyíregyháza
Eladó ikerház

Nyíregyháza

145 M Ft
5 szoba
145 m²
Nyíregyháza, Örökösföld, Törzs utca 2
Eladó ikerház

Nyíregyháza

114.9 M Ft
5 szoba
129 m²
Nyíregyháza
Eladó ikerház

Nyíregyháza

103 M Ft
4 szoba
143 m²
Nyíregyháza
Eladó ikerház

Nyíregyháza

80 M Ft
3 szoba
125 m²
Nyíregyháza
Eladó ikerház

Nyíregyháza

103 M Ft
4 szoba
103 m²
Nyíregyháza, Belváros, Rózsa utca
Eladó ikerház

Nyíregyháza

139 M Ft
6 szoba
278 m²
Nyíregyháza
Eladó ikerház

Nyíregyháza

80 M Ft
3 + 1 szoba
113 m²
Nyíregyháza
Eladó ikerház

Nyíregyháza

80 M Ft
4 szoba
112 m²
Nyíregyháza
Eladó ikerház

Nyíregyháza

58 M Ft
4 szoba
110 m²
Nyíregyháza
Eladó ikerház

Nyíregyháza

69.9 M Ft
4 szoba
103 m²
Nyíregyháza
Eladó ikerház

Nyíregyháza

145 M Ft
5 szoba
145 m²
Nyíregyháza
Eladó ikerház

Nyíregyháza

58 M Ft
4 szoba
110 m²
Nyíregyháza
Eladó ikerház

Nyíregyháza

68.5 M Ft
4 szoba
83 m²

Falusi CSOK ingatlanok

Szentmártonkáta
Eladó családi ház

Szentmártonkáta

59.99 M Ft
6 szoba
117 m²
Fülöpszállás
Eladó családi ház

Fülöpszállás

69.9 M Ft
4 szoba
190 m²
Csárdaszállás
Eladó családi ház

Csárdaszállás

11.99 M Ft
3 + 2 szoba
100 m²
Köveskál
Eladó családi ház

Köveskál

215 M Ft
4 szoba
100 m²
Egerbakta
Eladó családi ház

Egerbakta

43.9 M Ft
5 + 1 szoba
160 m²
Nagylóc, Hegyalja út
Eladó családi ház

Nagylóc

8.9 M Ft
2 szoba
70 m²
Balatonszepezd
Eladó családi ház

Balatonszepezd

299 M Ft
5 szoba
220 m²
Rakamaz
Eladó családi ház

Rakamaz

86.9 M Ft
5 szoba
280 m²