Seven Pearl

Eladó ikerház
Nyíregyháza, Oros, Oros

+ 6 kép 1/9
76 000 000 Ft76 M Ft 950 000 Ft/m2
4 szoba
80 m²
építés éve:2026

Részletes adatok

Telekméret: 480 m2
Fűtés: Gázkazán
Parkolás: Kocsibeálló
Közmű: Víz, Gáz, Villany, Csatorna
Energetikai besorolás: A++

Az OTP Bank lakáshitel ajánlataFizetett hirdetés

+36 30 459
Némethné Judit
Judit Ingatlanház

Érdekel az OTP Bank kedvezményes lakáshitel ajánlata? *

* A kérdésre „Igen” válasz bejelölése esetén, az „Üzenet küldése” gombra kattintva kijelentem, hogy az OTP Bank Nyrt. Adatkezelési tájékoztatójának tartalmát megismertem és tudomásul vettem.

Eladó ikerház leírása

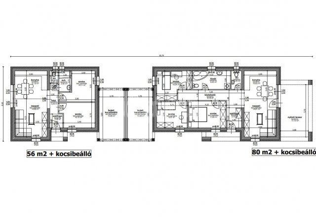
Nyíregyháza, Orosi kivezető fiatal építésű utcájában lefoglalható 2026-be épülő iker ház mindkét oldala. Az ingatlan 80-56 m2-s, a nagyobb három fél szoba, nappali, étkező, amerikai konyha, fürdőszoba és wc egyben, külön wc és szélfogó a kisebb ház kettő fél szoba, nappali+étkező+amerikai konyha egy térben, külön zuhanyzó és wc, szélfogó tartozik hozzájuk, műanyag nyílászárós mely három rétegű üveggel ellátott, villany kazán és padlófűtésű, 30-s porotherm téglából készülnek külsőleg 15 cm-s nikecel szigetelés, belső falak kartonozva, fafödémes rajta 35 cm-s salakgyapot szigetelés a mennyezet fémvázra erősített tűzálló gipszkarton a nyereg tető beton cseréppel fedett alatta párazáró fóliával. A nagyobbik háznak 480 m2-s telekterülete van a kisebbiknek 240 m2-s, mindkettőhöz tartozik egy fedett gépkocsi beálló és térkövezett járda. KÖLTÖZNI LEGHAMARABB 2026 ÉV VÉGE.

80 m2- 76 000 000 Ft.

56-m2- 65 000 000 Ft.

AMENNYIBEN FELKELTETTE AZ ÉRDEKLŐDÉSÉT KERESSEN ÉS HA SZÜKSÉGES HITELÜGYINTÉZÉSBEN IS TUDUNK SEGÍTENI.

Hirdetés feltöltve: 2026. 02. 05. Utoljára módosítva: 2026. 04. 28.

4 szobás ikerházak ára Nyíregyházán

Ebből az összehasonlításból megtudhatod, hogyan viszonyul a lakás ára a környékbeli ikerházak átlagos árához. Ez nem azt jelenti, hogy ennyivel olcsóbb vagy drágább, mint amennyit a lakás ér, hanem hogy ennyivel tér el a környékbeli átlagtól.

Ennek a m² ára
Oros m² ár
Nyíregyháza m² ár
950 e Ft
551 e Ft -73%
756 e Ft -26%
Ennek az ára
Oros átlagár
Nyíregyháza átlagár
76 M Ft m Ft
69 m Ft -10%
89.7 m Ft 15%

Az ingatlan elhelyezkedése

Cím: Nyíregyháza, Oros, Oros

Eladó ikerházak a környékről

Nyíregyháza
Eladó ikerház

Nyíregyháza

103 M Ft
4 szoba
103 m²
Nyíregyháza
Eladó ikerház

Nyíregyháza

74.9 M Ft
4 szoba
116 m²
Nyíregyháza
Eladó ikerház

Nyíregyháza

69.9 M Ft
4 szoba
103 m²
Nyíregyháza
Eladó ikerház

Nyíregyháza

18.5 M Ft
1 + 1 szoba
45 m²
Nyíregyháza, Örökösföld, Törzs utca 2
Eladó ikerház

Nyíregyháza

114.9 M Ft
5 szoba
129 m²
Nyíregyháza
Eladó ikerház

Nyíregyháza

68.5 M Ft
4 szoba
83 m²
Nyíregyháza
Eladó ikerház

Nyíregyháza

80 M Ft
3 szoba
125 m²
Nyíregyháza
Eladó ikerház

Nyíregyháza

80 M Ft
4 szoba
112 m²
Nyíregyháza, Belváros, Rózsa utca
Eladó ikerház

Nyíregyháza

139 M Ft
6 szoba
278 m²
Nyíregyháza, Belváros, Rózsa utca
Eladó ikerház

Nyíregyháza

139 M Ft
6 szoba
278 m²
Nyíregyháza
Eladó ikerház

Nyíregyháza

76 M Ft
2 + 1 szoba
100 m²
Nyíregyháza
Eladó ikerház

Nyíregyháza

107 M Ft
4 szoba
180 m²
Nyíregyháza
Eladó ikerház

Nyíregyháza

83 M Ft
4 szoba
122 m²
Nyíregyháza
Eladó ikerház

Nyíregyháza

75 M Ft
2 + 1 szoba
105 m²
Nyíregyháza
Eladó ikerház

Nyíregyháza

107 M Ft
4 szoba
180 m²
Nyíregyháza
Eladó ikerház

Nyíregyháza

85 M Ft
4 szoba
96 m²
Nyíregyháza
Eladó ikerház

Nyíregyháza

73.9 M Ft
4 szoba
113 m²
Nyíregyháza
Eladó ikerház

Nyíregyháza

145 M Ft
5 szoba
145 m²
Nyíregyháza
Eladó ikerház

Nyíregyháza

103 M Ft
4 szoba
143 m²
Nyíregyháza
Eladó ikerház

Nyíregyháza

120.7 M Ft
4 szoba
141 m²
Nyíregyháza
Eladó ikerház

Nyíregyháza

73.9 M Ft
4 szoba
113 m²
Nyíregyháza
Eladó ikerház

Nyíregyháza

75 M Ft
2 + 1 szoba
105 m²
Nyíregyháza
Eladó ikerház

Nyíregyháza

120.7 M Ft
4 szoba
141 m²
Nyíregyháza
Eladó ikerház

Nyíregyháza

93.3 M Ft
4 szoba
109 m²

Falusi CSOK ingatlanok

Balatonszemes
Eladó téglalakás

Balatonszemes

129.9 M Ft
3 szoba
67 m²
Sásd
Eladó családi ház

Sásd

35.9 M Ft
4 + 1 szoba
71 m²
Rakamaz
Eladó családi ház

Rakamaz

86.9 M Ft
5 szoba
280 m²
Zalacsány
Eladó családi ház

Zalacsány

69.9 M Ft
3 szoba
90 m²
Táborfalva, Tarcsay út
Eladó téglalakás

Táborfalva

33 M Ft
2 + 1 szoba
68 m²
Bag
Eladó ikerház

Bag

93 M Ft
3 szoba
68 m²
Karád, Kodály utca
Eladó családi ház

Karád

24.5 M Ft
3 szoba
75 m²
Balatonkeresztúr, Kanizsai utca
Eladó ikerház

Balatonkeresztúr

32.9 M Ft
3 szoba
30 m²