Oasis Residence

Eladó ikerház
Nyíregyháza

+ 17 kép 1/20
119 700 000 Ft119.7 M Ft 570 000 Ft/m2
5 + 2 szoba
210 m2
építés éve:1990

Részletes adatok

Telekméret: 440 m2
Fűtés: Gázkazán
Energetikai besorolás: Nem adta meg a hirdető

Az OTP Bank lakáshitel ajánlataFizetett hirdetés

+36 31 771
Huszár Gabriella
OTPIP Nyíregyháza Hunyadi u.

Érdekel az OTP Bank kedvezményes lakáshitel ajánlata? *

* A kérdésre „Igen” válasz bejelölése esetén, az „Üzenet küldése” gombra kattintva kijelentem, hogy az OTP Bank Nyrt. Adatkezelési tájékoztatójának tartalmát megismertem és tudomásul vettem.

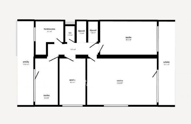
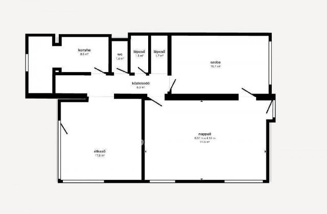
Eladó ikerház leírása

Felújított, napelemes családi ház Nyíregyháza-Hímesben 0 Ft villanyszámla!

Nyíregyháza egyik legkedveltebb, csendes és kulturált utcájában, igényes környéken kínáljuk eladásra ezt 210 m2-es, kiváló állapotú családi házat, amelyhez tágas pince és gondozott, parkosított udvar is tartozik.

Az ingatlan elosztása:

5 szoba + 2 félszoba,
nappali, konyha, étkező
2 fürdőszoba, 2 külön WC
mosókonyha, szauna
2 nagy erkély
80 m? száraz pince (ebből 60 m? tároló)
előkert, nagy fedett terasz
parkosított udvar, garázs

Műszaki és energetikai előnyök:

Teljes energetikai felújítás pár éve
15 cm grafitos szigetelés
3 rétegű műanyag nyílászárók
Kondenzációs gázkazán
Napelemes rendszer áram-visszatáplálással

Ennek köszönhetően a ház 0 Ft villanyszámlával üzemel, még a szauna egész éves használata mellett is!
A gázfogyasztás szintén minimális, rezsitámogatáson belüli.

Összességében a lakótér és a pince együtt közel 300 m? kényelmes, igényes életteret biztosít egy nagyobb család számára is.

Ez a ház nemcsak kényelmes és tágas, hanem hosszú távon gazdaságosan fenntartható otthont kínál egy rendezett, nyugodt környéken.
OTP Banki hátterünknek köszönhetően finanszírozási igényekben (pl. Otthon Start Hitelprogram, Babaváró, Falusi CSOK, CSOK Plusz, Lakáshitel, Személyi kölcsön stb.), illetve biztosítások tekintetében is díjmentesen, soron kívüli ügyintézéssel segítem ügyfeleim! Referenciaszám: M313169

Ne hagyja ki ezt a nagyszerű álom otthont! Hívjon még ma!

Hirdetés feltöltve: 2025. 12. 05. Utoljára módosítva: 2025. 12. 05.

Az ingatlan elhelyezkedése

Cím: Nyíregyháza

Eladó ikerházak a környékről

Eladó ikerház
Eladó ikerház

Nyíregyháza

69.9 M Ft
4 szoba
101 m2
Eladó ikerház
Eladó ikerház

Nyíregyháza

80 M Ft
4 szoba
112 m2
Eladó ikerház
Eladó ikerház

Nyíregyháza, Oros, Pompás utca

75 M Ft
4 szoba
110 m2
Eladó ikerház
Eladó ikerház

Nyíregyháza

95 M Ft
5 szoba
174 m2
Eladó ikerház
Eladó ikerház

Nyíregyháza, Oros, Pompás utca

75 M Ft
4 szoba
110 m2
Eladó ikerház
Eladó ikerház

Nyíregyháza

95 M Ft
5 szoba
163 m2
Eladó ikerház
Eladó ikerház

Nyíregyháza

107 M Ft
4 szoba
180 m2
Eladó ikerház
Eladó ikerház

Nyíregyháza

107 M Ft
4 szoba
180 m2
Eladó ikerház
Eladó ikerház

Nagykálló

68.5 M Ft
4 szoba
155 m2
Eladó ikerház
Eladó ikerház

Nyíregyháza

105 M Ft
4 szoba
188 m2
Eladó ikerház
Eladó ikerház

Nyíregyháza

80 M Ft
3 szoba
125 m2
Eladó ikerház
Eladó ikerház

Nyíregyháza

69.9 M Ft
3 szoba
95 m2
Eladó ikerház
Eladó ikerház

Nyíregyháza

105 M Ft
4 + 2 szoba
188 m2
Eladó ikerház
Eladó ikerház

Nyíregyháza

73.9 M Ft
4 szoba
113 m2
Eladó ikerház
Eladó ikerház

Nyíregyháza

69.9 M Ft
2 szoba
80 m2
Eladó ikerház
Eladó ikerház

Nyíregyháza

83 M Ft
4 szoba
122 m2
Eladó ikerház
Eladó ikerház

Nyíregyháza

69.9 M Ft
4 szoba
101 m2
Eladó ikerház
Eladó ikerház

Nyíregyháza

80 M Ft
3 + 1 szoba
113 m2
Eladó ikerház
Eladó ikerház

Nyíregyháza, Örökösföld, Törzs utca 2

114.9 M Ft
5 szoba
129 m2
Eladó ikerház
Eladó ikerház

Nyíregyháza

18.5 M Ft
1 + 1 szoba
45 m2
Eladó ikerház
Eladó ikerház

Nyíregyháza

92 M Ft
5 szoba
144 m2
Eladó ikerház
Eladó ikerház

Nyíregyháza

69.9 M Ft
2 szoba
80 m2
Eladó ikerház
Eladó ikerház

Nyíregyháza

107 M Ft
2 szoba
180 m2
Eladó ikerház
Eladó ikerház

Nyíregyháza

62 M Ft
2 + 1 szoba
105 m2

Falusi CSOK ingatlanok

Eladó családi ház
Eladó családi ház

Sümegcsehi

119 M Ft
5 szoba
237 m2
Eladó családi ház
Eladó családi ház

Balatonfenyves

430 M Ft
4 szoba
274 m2
Eladó családi ház
Eladó családi ház

Gégény, Kossuth

15 M Ft
4 szoba
135 m2
Eladó családi ház
Eladó családi ház

Tápióbicske

38 M Ft
3 szoba
50 m2
Eladó családi ház
Eladó családi ház

Törtel

39 M Ft
1 + 1 szoba
118 m2
Eladó ikerház
Eladó ikerház

Alcsútdoboz, Külterület

37.5 M Ft
2 szoba
80 m2
Eladó családi ház
Eladó családi ház

Mályi

84.9 M Ft
4 szoba
100 m2
Eladó ikerház
Eladó ikerház

Seregélyes

39.9 M Ft
4 szoba
150 m2