Seven Pearl

Eladó ikerház
Nyíregyháza

+ 5 kép 1/8
75 000 000 Ft75 M Ft 675 676 Ft/m2
3 szoba
111 m2
építés éve:2026

Részletes adatok

Telekméret: 1050 m2
Fűtés: Egyéb
Energetikai besorolás: Nem adta meg a hirdető

Az OTP Bank lakáshitel ajánlataFizetett hirdetés

+36 70 583
Szanyi Alexandra
OTPIP Nyíregyháza Hunyadi u.

Érdekel az OTP Bank kedvezményes lakáshitel ajánlata? *

* A kérdésre „Igen” válasz bejelölése esetén, az „Üzenet küldése” gombra kattintva kijelentem, hogy az OTP Bank Nyrt. Adatkezelési tájékoztatójának tartalmát megismertem és tudomásul vettem.

Eladó ikerház leírása

Új építésű ikerház eladó Nyíregyháza közkedvelt kertvárosi övezetében!

Nyíregyháza egyik legkeresettebb, csendes kertvárosi részén, forgalomtól mentes, csak az ott lakók által használt utcában új lakópark épül, ahol most Ön is megtalálhatja álmai otthonát!

A kiváló elhelyezkedésnek köszönhetően autóval mindössze 5-10 perc alatt elérhető bölcsőde, óvoda, iskola, gyógyszertár, orvosi rendelő és ABC is - ideális választás családok számára.

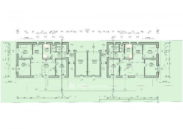
Az 1050 m2-es telken épülő, 111 m2-es ikerház az alábbi helyiségekkel várja új tulajdonosát:
- 3 szoba
- nappali
- étkező
- fürdőszoba
- külön mosókonyha és vizesblokk
- garázs

A ház modern, A+ energetikai besorolású hűtő-fűtő rendszerrel rendelkezik, amely garantálja az alacsony rezsiköltségeket és a komfortos mindennapokat.

Ne hagyja ki ezt a kivételes lehetőséget - érdeklődjön még ma, és költözzön egy nyugodt, családbarát környezetbe!

Hirdetés feltöltve: 2025. 10. 15. Utoljára módosítva: 2025. 11. 07.

3 szobás ikerházak ára Nyíregyházán

Ebből az összehasonlításból megtudhatod, hogyan viszonyul a lakás ára a környékbeli ikerházak átlagos árához. Ez nem azt jelenti, hogy ennyivel olcsóbb vagy drágább, mint amennyit a lakás ér, hanem hogy ennyivel tér el a környékbeli átlagtól.

Ennek a m² ára
Nyíregyháza m² ár
676 e Ft
718 e Ft 6%
Ennek az ára
Nyíregyháza átlagár
75 M Ft m Ft
80.7 m Ft 7%

Az ingatlan elhelyezkedése

Cím: Nyíregyháza

Eladó ikerházak a környékről

Eladó ikerház
Eladó ikerház

Nyíregyháza

80 M Ft
4 szoba
112 m2
Eladó ikerház
Eladó ikerház

Nyíregyháza, Belváros, Rózsa utca

155 M Ft
6 szoba
278 m2
Eladó ikerház
Eladó ikerház

Nyíregyháza

80 M Ft
4 szoba
112 m2
Eladó ikerház
Eladó ikerház

Nyíregyháza

107 M Ft
2 szoba
180 m2
Eladó ikerház
Eladó ikerház

Nyíregyháza

105 M Ft
4 szoba
188 m2
Eladó ikerház
Eladó ikerház

Nyíregyháza

83 M Ft
4 szoba
122 m2
Eladó ikerház
Eladó ikerház

Nyíregyháza

105 M Ft
4 + 2 szoba
188 m2
Eladó ikerház
Eladó ikerház

Nyíregyháza, Örökösföld, Törzs utca 2

114.9 M Ft
5 szoba
129 m2
Eladó ikerház
Eladó ikerház

Nyíregyháza, Oros, Pompás utca

75 M Ft
4 szoba
110 m2
Eladó ikerház
Eladó ikerház

Nyíregyháza

107 M Ft
4 szoba
180 m2
Eladó ikerház
Eladó ikerház

Nyíregyháza

92 M Ft
5 szoba
144 m2
Eladó ikerház
Eladó ikerház

Nyíregyháza, Örökösföld, Törzs utca 2

114.9 M Ft
5 szoba
129 m2
Eladó ikerház
Eladó ikerház

Nyíregyháza

69.9 M Ft
4 szoba
101 m2
Eladó ikerház
Eladó ikerház

Nagykálló

68.5 M Ft
4 szoba
155 m2
Eladó ikerház
Eladó ikerház

Nyíregyháza

107 M Ft
4 szoba
180 m2
Eladó ikerház
Eladó ikerház

Nyíregyháza

95 M Ft
5 szoba
174 m2
Eladó ikerház
Eladó ikerház

Nyíregyháza

18.5 M Ft
1 + 1 szoba
45 m2
Eladó ikerház
Eladó ikerház

Nyíregyháza

92 M Ft
5 szoba
144 m2
Eladó ikerház
Eladó ikerház

Nyíregyháza

105 M Ft
4 szoba
188 m2
Eladó ikerház
Eladó ikerház

Nyíregyháza

69.9 M Ft
2 szoba
80 m2
Eladó ikerház
Eladó ikerház

Nyíregyháza, Oros, Pompás utca

75 M Ft
4 szoba
110 m2
Eladó ikerház
Eladó ikerház

Nyíregyháza

105 M Ft
4 + 2 szoba
188 m2
Eladó ikerház
Eladó ikerház

Nyíregyháza

80 M Ft
3 szoba
125 m2
Eladó ikerház
Eladó ikerház

Nyíregyháza

80 M Ft
3 szoba
125 m2

Falusi CSOK ingatlanok

Eladó családi ház
Eladó családi ház

Nagyberény

24.9 M Ft
3 szoba
62 m2
Eladó családi ház
Eladó családi ház

Szabadbattyán

67.5 M Ft
5 szoba
180 m2
Eladó családi ház
Eladó családi ház

Palkonya

137 M Ft
6 szoba
160 m2
Eladó családi ház
Eladó családi ház

Gönyű

111.951 M Ft
4 szoba
105 m2
Eladó családi ház
Eladó családi ház

Recsk

59 M Ft
2 szoba
70 m2
Eladó családi ház
Eladó családi ház

Devecser

62.49 M Ft
5 szoba
180 m2
Eladó családi ház
Eladó családi ház

Sellye

54.99 M Ft
4 szoba
99 m2
Eladó családi ház
Eladó családi ház

Szabolcs

64.9 M Ft
6 szoba
272 m2