Eladó ikerház
Nyíregyháza

+ 16 kép 1/19
72 000 000 Ft72 M Ft 553 846 Ft/m2
4 szoba
130 m2
építés éve:2025

Részletes adatok

Telekméret: 360 m2
Fűtés: Egyéb
Parkolás: Garázs
Közmű: Víz, Villany, Csatorna
Energetikai besorolás: Nem adta meg a hirdető

Az OTP Bank lakáshitel ajánlataFizetett hirdetés

+36 70 933
Kaszás Sándor
Royal Ingatlanstúdió

Érdekel az OTP Bank kedvezményes lakáshitel ajánlata? *

* A kérdésre „Igen” válasz bejelölése esetén, az „Üzenet küldése” gombra kattintva kijelentem, hogy az OTP Bank Nyrt. Adatkezelési tájékoztatójának tartalmát megismertem és tudomásul vettem.

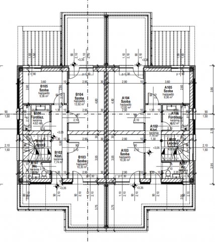
Eladó ikerház leírása

Eladó új építésű, napelemes ikerház Nyíregyházán – Nyírszőlős városrészben!
Modern, energiatakarékos otthon gyors költözési lehetőséggel! Ez a 130 m²-es, szintes, 4 szobás ikerház tökéletes választás családok számára, kényelmes elrendezéssel és korszerű megoldásokkal.
Főbb jellemzők:
✅ 130 m² lakóterület
✅ 360 m²-es telek
✅ Padlófűtés hőszivattyúval
✅ Beépített napelemes rendszer (8 kW és 3 kW), engedélyezett betáplálással
✅ Klíma előkészítés, riasztórendszer és elektromos redőnyök kábelezve
Elrendezés:
Földszint: előtér, WC + zuhanyzó, lépcsőház, nappali + konyha + étkező, hálószoba, garázs
Emelet: közlekedő, 3 szoba, fürdőszoba, külön WC kézmosóval, terasz
Vételár: 72 000 000 Ft
Ne hagyja ki ezt a kiváló lehetőséget! Érdeklődjön bizalommal, akár hétvégén is!
Tel.: +36 70 933 37 55

Hirdetés feltöltve: 2025. 05. 01. Utoljára módosítva: 2025. 09. 27.

4 szobás ikerházak ára Nyíregyházán

Ebből az összehasonlításból megtudhatod, hogyan viszonyul a lakás ára a környékbeli ikerházak átlagos árához. Ez nem azt jelenti, hogy ennyivel olcsóbb vagy drágább, mint amennyit a lakás ér, hanem hogy ennyivel tér el a környékbeli átlagtól.

Ennek a m² ára
Nyíregyháza m² ár
554 e Ft
693 e Ft 20%
Ennek az ára
Nyíregyháza átlagár
72 M Ft m Ft
82.5 m Ft 13%

Az ingatlan elhelyezkedése

Cím: Nyíregyháza

Eladó ikerházak a környékről

Eladó ikerház
Eladó ikerház

Nyíregyháza

84.9 M Ft
5 szoba
115 m2
Eladó ikerház
Eladó ikerház

Nyíregyháza, Örökösföld, Törzs utca 2

114.9 M Ft
5 szoba
129 m2
Eladó ikerház
Eladó ikerház

Nyíregyháza

69.9 M Ft
4 szoba
120 m2
Eladó ikerház
Eladó ikerház

Nyíregyháza

86 M Ft
4 szoba
180 m2
Eladó ikerház
Eladó ikerház

Nyíregyháza

84.5 M Ft
3 szoba
130 m2
Eladó ikerház
Eladó ikerház

Nyíregyháza

86 M Ft
2 szoba
180 m2
Eladó ikerház
Eladó ikerház

Nyíregyháza

62 M Ft
2 + 1 szoba
105 m2
Eladó ikerház
Eladó ikerház

Nyíregyháza

69.9 M Ft
4 szoba
119 m2
Eladó ikerház
Eladó ikerház

Nyíregyháza

86 M Ft
4 szoba
180 m2
Eladó ikerház
Eladó ikerház

Nyíregyháza, Örökösföld, Törzs utca 2

114.9 M Ft
5 szoba
129 m2
Eladó ikerház
Eladó ikerház

Nyíregyháza

105 M Ft
4 szoba
188 m2
Eladó ikerház
Eladó ikerház

Nagykálló

68.5 M Ft
4 szoba
155 m2
Eladó ikerház
Eladó ikerház

Nyíregyháza

17.5 M Ft
1 + 1 szoba
45 m2
Eladó ikerház
Eladó ikerház

Nyíregyháza

64.9 M Ft
4 szoba
96 m2
Eladó ikerház
Eladó ikerház

Nyíregyháza

84.5 M Ft
3 szoba
130 m2
Eladó ikerház
Eladó ikerház

Nyíregyháza

86 M Ft
4 szoba
180 m2
Eladó ikerház
Eladó ikerház

Nyíregyháza

92 M Ft
5 szoba
144 m2
Eladó ikerház
Eladó ikerház

Nyíregyháza

62 M Ft
2 + 1 szoba
105 m2
Eladó ikerház
Eladó ikerház

Nyíregyháza

105 M Ft
4 szoba
188 m2
Eladó ikerház
Eladó ikerház

Nyíregyháza, Oros, Pompás utca

75 M Ft
4 szoba
110 m2
Eladó ikerház
Eladó ikerház

Nyíregyháza

69.9 M Ft
4 szoba
119 m2
Eladó ikerház
Eladó ikerház

Nyíregyháza

69.9 M Ft
4 szoba
101 m2
Eladó ikerház
Eladó ikerház

Nyíregyháza

18.5 M Ft
1 + 1 szoba
45 m2
Eladó ikerház
Eladó ikerház

Nyíregyháza

69.9 M Ft
4 szoba
119 m2

Falusi CSOK ingatlanok

Eladó családi ház
Eladó családi ház

Tiszatenyő

31 M Ft
3 szoba
100 m2
Eladó téglalakás
Eladó téglalakás

Hegyeshalom

35 M Ft
43 m2
Eladó családi ház
Eladó családi ház

Szőlősgyörök, Táncsics Mihály utca

47.999 M Ft
5 szoba
105 m2
Eladó családi ház
Eladó családi ház

Tihany

119.9 M Ft
3 + 1 szoba
92 m2
Eladó családi ház
Eladó családi ház

Bogács

135 M Ft
2 szoba
106 m2
Eladó családi ház
Eladó családi ház

Balatonszemes

79.5 M Ft
2 szoba
70 m2
Eladó családi ház
Eladó családi ház

Szécsisziget

12.5 M Ft
1 szoba
57 m2
Eladó családi ház
Eladó családi ház

Bár

89.5 M Ft
4 + 1 szoba
172 m2