NapForrás 20 - Buda

Eladó ikerház
Monor

+ 4 kép 1/7
86 600 000 Ft86.6 M Ft 1 082 500 Ft/m2
3 szoba
80 m2
építés éve:2025

Részletes adatok

Telekméret: 350 m2
Fűtés: Egyéb
Energetikai besorolás: Nem adta meg a hirdető

Az OTP Bank lakáshitel ajánlataFizetett hirdetés

+36 30 989
Keszthelyi László
Szigetszentmiklós OTP Ip

Érdekel az OTP Bank kedvezményes lakáshitel ajánlata? *

* A kérdésre „Igen” válasz bejelölése esetén, az „Üzenet küldése” gombra kattintva kijelentem, hogy az OTP Bank Nyrt. Adatkezelési tájékoztatójának tartalmát megismertem és tudomásul vettem.

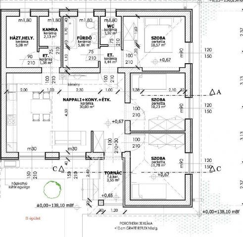
Eladó ikerház leírása

Új építésű, energiatakarékos földszintes lakás eladó Monoron.

Monor egyik csendes, rendezett részén eladó egy 80,3 négyzetméteres, földszintes, új építésű lakás modern kivitelezésben. Az ingatlan hátsó egysége, B épülete eladó , amely korszerű technológiával és magas minőségű anyagokkal épül.

A praktikus alaprajz három hálószobát, egy tágas nappali, étkező, konyha teret, fürdőszobát, külön WC-t, háztartási helyiséget, kamrát és előteret tartalmaz minden adott egy kényelmes, modern otthonhoz. Hideg-meleg burkolatok válaszhatóak 5000 Ft/négyzetméterig.

Műszaki tartalom:

Porotherm X-Therm 30 cm-es tégla + 10 cm grafitos hőszigetelés.

Háromrétegű, hőszigetelt nyílászárók.

Sötétszürke beton cserépfedés, fa födémszerkezet.

Korszerű víz-levegő hőszivattyús fűtés padlófűtéssel és radiátorokkal.

Inverteres klíma a nyári hűtéshez.

Teljes közművesítés, ideiglenes házi szennyvíztisztítóval (városi hálózatra való csatlakozás előkészítve).

A lakáshoz saját, burkolt gépkocsibeálló és rendezett, zöldfelületes kert tartozik.
A modern technológia, az alacsony rezsiköltség és a minőségi kivitelezés miatt az ingatlan hosszú távon értékálló befektetés, családok és befektetők számára egyaránt ideális választás.

További előnyök:

Teljes körű, díjmentes tanácsadás.

Hitelügyintézés helyben, gyorsan és egyszerűen.

Hirdetés feltöltve: 2026. 01. 26. Utoljára módosítva: 2026. 01. 26.

3 szobás ikerházak ára Monoron

Ebből az összehasonlításból megtudhatod, hogyan viszonyul a lakás ára a környékbeli ikerházak átlagos árához. Ez nem azt jelenti, hogy ennyivel olcsóbb vagy drágább, mint amennyit a lakás ér, hanem hogy ennyivel tér el a környékbeli átlagtól.

Ennek a m² ára
Monor m² ár
1083 e Ft
2996 e Ft 64%
Ennek az ára
Monor átlagár
86.6 M Ft m Ft
39.8 m Ft -117%

Az ingatlan elhelyezkedése

Cím: Monor

Eladó ikerházak a környékről

Eladó ikerház
Eladó ikerház

Monor

95 M Ft
4 szoba
127 m2
Eladó ikerház
Eladó ikerház

Monor

57.7 M Ft
2 szoba
50 m2
Eladó ikerház
Eladó ikerház

Vác

175.356 M Ft
5 szoba
165 m2
Eladó ikerház
Eladó ikerház

Monor

89.9 M Ft
4 szoba
80 m2
Eladó ikerház
Eladó ikerház

Monor

89.9 M Ft
5 szoba
107 m2
Eladó ikerház
Eladó ikerház

Monor

89.9 M Ft
5 szoba
107 m2
Eladó ikerház
Eladó ikerház

Monor

95 M Ft
4 szoba
127 m2
Eladó ikerház
Eladó ikerház

Mogyoród, Fóti út

188 M Ft
6 szoba
182 m2
Eladó ikerház
Eladó ikerház

Monor

89.9 M Ft
4 szoba
80 m2
Eladó ikerház
Eladó ikerház

Pomáz

129.5 M Ft
4 szoba
100 m2
Eladó ikerház
Eladó ikerház

Monor

86.6 M Ft
4 szoba
80 m2
Eladó ikerház
Eladó ikerház

Monor

95 M Ft
4 szoba
127 m2
Eladó ikerház
Eladó ikerház

Monor

89.9 M Ft
5 szoba
107 m2
Eladó ikerház
Eladó ikerház

Pusztazámor

55 M Ft
10 szoba
470 m2
Eladó ikerház
Eladó ikerház

Vác

99.7 M Ft
4 + 1 szoba
129 m2
Eladó ikerház
Eladó ikerház

Szentendre

718 M Ft
10 + 2 szoba
578 m2
Eladó ikerház
Eladó ikerház

Monor

48 M Ft
2 szoba
49 m2
Eladó ikerház
Eladó ikerház

Diósd

206.25 M Ft
5 szoba
184 m2
Eladó ikerház
Eladó ikerház

Szentendre

359 M Ft
5 + 1 szoba
289 m2
Eladó ikerház
Eladó ikerház

Dunakeszi

149 M Ft
1 + 4 szoba
127 m2
Eladó ikerház
Eladó ikerház

Veresegyház

145 M Ft
4 szoba
120 m2
Eladó ikerház
Eladó ikerház

Monor

95 M Ft
4 szoba
127 m2
Eladó ikerház
Eladó ikerház

Pécel

149.9 M Ft
5 szoba
306 m2
Eladó ikerház
Eladó ikerház

Vác

96.7 M Ft
4 + 1 szoba
126 m2

Falusi CSOK ingatlanok

Eladó családi ház
Eladó családi ház

Lesenceistvánd

75 M Ft
2 szoba
90 m2
Eladó családi ház
Eladó családi ház

Fülöpszállás

299 M Ft
14 + 5 szoba
680 m2
Eladó családi ház
Eladó családi ház

Töttös, Rákóczi utca

55.9 M Ft
4 szoba
129 m2
Eladó családi ház
Eladó családi ház

Kislippó

16 M Ft
3 szoba
100 m2
Eladó családi ház
Eladó családi ház

Nádasdladány

45.9 M Ft
1 + 1 szoba
50 m2
Eladó családi ház
Eladó családi ház

Úri

260 M Ft
7 szoba
300 m2
Eladó családi ház
Eladó családi ház

Letenye

46.5 M Ft
7 szoba
220 m2
Eladó családi ház
Eladó családi ház

Kesztölc

129.9 M Ft
8 szoba
210 m2