Stay Family Park

Eladó ikerház
Monor

+ 2 kép 1/5
86 600 000 Ft86.6 M Ft 1 082 500 Ft/m2
4 szoba
80 m2
építés éve:2025

Részletes adatok

Telekméret: 350 m2
Fűtés: Egyéb
Energetikai besorolás: Nem adta meg a hirdető

Az OTP Bank lakáshitel ajánlataFizetett hirdetés

+36 70 242
Erdélyi Miklós István
Otp Ingatlanpont Falk Miksa

Érdekel az OTP Bank kedvezményes lakáshitel ajánlata? *

* A kérdésre „Igen” válasz bejelölése esetén, az „Üzenet küldése” gombra kattintva kijelentem, hogy az OTP Bank Nyrt. Adatkezelési tájékoztatójának tartalmát megismertem és tudomásul vettem.

Eladó ikerház leírása

***Új építésű, energiatakarékos földszintes lakás eladó Monoron***

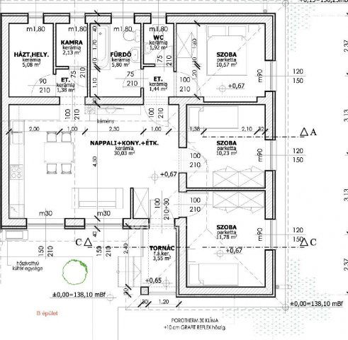
Monor egyik csendes, rendezett részén eladó egy 80,3 négyzetméteres, földszintes, új építésű lakás modern kivitelezésben. Az ingatlan hátsó egysége, B épülete eladó , amely korszerű technológiával és magas minőségű anyagokkal épül.

A praktikus alaprajz három hálószobát, egy tágas nappali, étkező, konyha teret, fürdőszobát, külön WC-t, háztartási helyiséget, kamrát és előteret tartalmaz minden adott egy kényelmes, modern otthonhoz. Hideg-meleg burkolatok válaszhatóak.

Műszaki tartalom:

Porotherm X-Therm 30 cm-es tégla + 10 cm grafitos hőszigetelés.

Háromrétegű, hőszigetelt nyílászárók.

Sötétszürke beton cserépfedés, fa födémszerkezet.

Korszerű víz-levegő hőszivattyús fűtés padlófűtéssel és radiátorokkal.

Inverteres klíma a nyári hűtéshez.

Teljes közművesítés, ideiglenes házi szennyvíztisztítóval (városi hálózatra való csatlakozás előkészítve).

A lakáshoz saját, burkolt gépkocsibeálló és rendezett, zöldfelületes kert tartozik.
A modern technológia, az alacsony rezsiköltség és a minőségi kivitelezés miatt az ingatlan hosszú távon értékálló befektetés, családok és befektetők számára egyaránt ideális választás.

Ingatlanjogász ügyvédi iroda vagyunk!

Referencia szám: M314978-ZE

Hirdetés feltöltve: 2025. 10. 13. Utoljára módosítva: 2025. 12. 18.

4 szobás ikerházak ára Monoron

Ebből az összehasonlításból megtudhatod, hogyan viszonyul a lakás ára a környékbeli ikerházak átlagos árához. Ez nem azt jelenti, hogy ennyivel olcsóbb vagy drágább, mint amennyit a lakás ér, hanem hogy ennyivel tér el a környékbeli átlagtól.

Ennek a m² ára
Monor m² ár
1083 e Ft
927 e Ft -17%
Ennek az ára
Monor átlagár
86.6 M Ft m Ft
86.7 m Ft 0%

Az ingatlan elhelyezkedése

Cím: Monor

Eladó ikerházak a környékről

Eladó ikerház
Eladó ikerház

Monor

89.9 M Ft
5 szoba
107 m2
Eladó ikerház
Eladó ikerház

Monor

89.9 M Ft
5 szoba
107 m2
Eladó ikerház
Eladó ikerház

Monor

95 M Ft
4 szoba
127 m2
Eladó ikerház
Eladó ikerház

Monor

89.9 M Ft
5 szoba
107 m2
Eladó ikerház
Eladó ikerház

Monor

95 M Ft
4 szoba
127 m2
Eladó ikerház
Eladó ikerház

Dunakeszi

149 M Ft
1 + 4 szoba
127 m2
Eladó ikerház
Eladó ikerház

Monor

95 M Ft
4 szoba
127 m2
Eladó ikerház
Eladó ikerház

Tahitótfalu

88.9 M Ft
4 szoba
110 m2
Eladó ikerház
Eladó ikerház

Érd, Érdligeten található utca

64.9 M Ft
4 szoba
112 m2
Eladó ikerház
Eladó ikerház

Mogyoród

135 M Ft
5 szoba
137 m2
Eladó ikerház
Eladó ikerház

Monor

95 M Ft
4 + 1 szoba
127 m2
Eladó ikerház
Eladó ikerház

Monor

95 M Ft
4 szoba
105 m2
Eladó ikerház
Eladó ikerház

Diósd

206.25 M Ft
5 szoba
184 m2
Eladó ikerház
Eladó ikerház

Szentendre, Szentendre

398 M Ft
5 szoba
267 m2
Eladó ikerház
Eladó ikerház

Dunaharaszti

124.999 M Ft
4 szoba
105 m2
Eladó ikerház
Eladó ikerház

Monor, Jósika utca

78.5 M Ft
4 szoba
83 m2
Eladó ikerház
Eladó ikerház

Monor

68.8 M Ft
4 szoba
86 m2
Eladó ikerház
Eladó ikerház

Mogyoród, Fóti út

188 M Ft
6 szoba
182 m2
Eladó ikerház
Eladó ikerház

Monor

89.9 M Ft
5 szoba
107 m2
Eladó ikerház
Eladó ikerház

Monor

70.9 M Ft
4 szoba
86 m2
Eladó ikerház
Eladó ikerház

Monor

89.9 M Ft
4 szoba
98 m2
Eladó ikerház
Eladó ikerház

Pécel, Pécel - kertváros

127 M Ft
4 szoba
125 m2
Eladó ikerház
Eladó ikerház

Monor

95 M Ft
4 szoba
105 m2
Eladó ikerház
Eladó ikerház

Solymár

150 M Ft
4 + 2 szoba
252 m2

Falusi CSOK ingatlanok

Eladó családi ház
Eladó családi ház

Bag

110 M Ft
5 szoba
320 m2
Eladó családi ház
Eladó családi ház

Patak

26.9 M Ft
4 szoba
160 m2
Eladó családi ház
Eladó családi ház

Tapsony

10 M Ft
2 szoba
57 m2
Eladó családi ház
Eladó családi ház

Somogygeszti

38.6 M Ft
3 + 1 szoba
98 m2
Eladó családi ház
Eladó családi ház

Bükkábrány

46.9 M Ft
4 szoba
120 m2
Eladó családi ház
Eladó családi ház

Bajánsenye

34.9 M Ft
5 szoba
130 m2
Eladó családi ház
Eladó családi ház

Ölbő

15 M Ft
3 szoba
103 m2
Eladó családi ház
Eladó családi ház

Dunavecse

25 M Ft
3 szoba
120 m2