City Pearl

Eladó ikerház
Mogyoród

+ 3 kép 1/6
114 900 000 Ft114.9 M Ft 919 200 Ft/m2
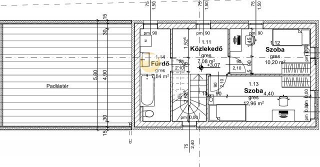
4 szoba
125 m2
építés éve:2025

Részletes adatok

Telekméret: 500 m2
Fűtés: Egyéb
Parkolás: Garázs
Energetikai besorolás: A++

Az OTP Bank lakáshitel ajánlataFizetett hirdetés

+36 70 490
Nagy Barbara
referens

Érdekel az OTP Bank kedvezményes lakáshitel ajánlata? *

* A kérdésre „Igen” válasz bejelölése esetén, az „Üzenet küldése” gombra kattintva kijelentem, hogy az OTP Bank Nyrt. Adatkezelési tájékoztatójának tartalmát megismertem és tudomásul vettem.

Eladó ikerház leírása

Eladásra kínálok Mogyoródon kertvárosi környezetben, 2026. év augusztusi átadással egy ikerház felet, amely 125 nm nagyságú, és 115 Millió forintba kerül, kulcsrakész állapotban.
Jellemzője, a minőségi alapanyag, átgondolt terv!
- 30 centiméter vastagságú Porotherm tartó téglafalazattal, a szintek között monolit födémmel, vagy Porotherm födémmel készül, a gépészeti rész szerinti területeken a födémbe tekert csővezetékekkel. A válaszfalak pedig 10 centiméter vastagságú téglából lesznek.
- Az emeleti födém szeglemezes tartószerkezettel készül, amely 25 cm hőszigetelést kap, valamint a mennyezeti tartószerkezeten elhelyezett álmennyezeti gipszkarton rendszer kerül kialakításra a gépészeti rész szerinti területeken integrált mennyezethűtéssel. A padlásterek megközelítésére padlásfeljáró beépítésre kerül.
- A földszinten a vízszigetelés fölé 12 cm lépésálló hőszigetelés kerül, melyre fóliafedést terítünk, erre pedig a burkolatok alá 8 centiméter vastagságban úsztatott esztrich beton készül, benne a padlófűtési csővezetékekkel.
- A homlokzaton 15 cm vastagságú EPS80, a lábazaton 10 cm vastagságú XPS polisztirol alapú homlokzati hőszigetelő rendszer készül 2mm szemcsenagyságú dörzsölt vakolattal törtfehér kivitelben. A lábazat igazodik a cserép színéhez.
- A tető, Terrán barna színű cserépfedést kap. Az ereszcsatornák és az egyéb bádogozások alumíniumból készülnek, igazodva a cserép színéhez.
- A külső műanyag nyílászárók, a (a jelenlegi energetikai szabályozásnak megfelelően) 6 légkamrás, háromrétegű hőszigetelő üvegezéssel, argon gázzal töltve, kerülnek kialakításra, bukó-nyíló kivitelben.
-A padlókra a fürdőkben, konyhában, étkezőben, mellékhelyiségekben, kamrában, előszobában, közlekedőben, lépcsőházban, igény szerint választható, hálósan rakott mázas kerámialap, vagy greslap kerül lerakásra. Jelenleg, még választható, burkolatok!
-Nappaliban, hálószobákban, gardróbban közepes kopásállóságú, I.o. laminált parketta választható, 4 centiméter magas szegélyléccel.
-A Fűtést és a használati melegvíz előállítását, valamint a hűtést hőszivattyú végzi. A vezérlés nappali és szobánkénti digitális termosztáttal, és mini hőközpont kialakításával történik.
Az emeleten és a földszinten padlófűtés és mennyezethűtés (vizes és nem lakó helyiségekben, valamint a konyha fölött nincs hűtés) kerül kiépítésre. A cirkulációs rendszer kiépítését az alapár nem tartalmazza. A WC berendezések falsík alatti tartállyal készülnek.

Egyéb információért hívjon bizalommal! ...TOVÁBBI, TÖBBEZRES INGATLAN KÍNÁLAT: www.gdn-ingatlan.hu - GDN azonosító: 387769

Hirdetés feltöltve: 2026. 02. 10. Utoljára módosítva: 2026. 02. 10.

4 szobás ikerházak ára Mogyoródon

Ebből az összehasonlításból megtudhatod, hogyan viszonyul a lakás ára a környékbeli ikerházak átlagos árához. Ez nem azt jelenti, hogy ennyivel olcsóbb vagy drágább, mint amennyit a lakás ér, hanem hogy ennyivel tér el a környékbeli átlagtól.

Ennek a m² ára
Mogyoród m² ár
919 e Ft
1032 e Ft 11%
Ennek az ára
Mogyoród átlagár
114.9 M Ft m Ft
139.1 m Ft 17%

Az ingatlan elhelyezkedése

Cím: Mogyoród

Eladó ikerházak a környékről

Eladó ikerház
Eladó ikerház

Mogyoród

199.99 M Ft
4 szoba
160 m2
Eladó ikerház
Eladó ikerház

Mogyoród

199.99 M Ft
5 szoba
160 m2
Eladó ikerház
Eladó ikerház

Érd

177.7 M Ft
7 szoba
181 m2
Eladó ikerház
Eladó ikerház

Mogyoród

124.99 M Ft
4 szoba
115 m2
Eladó ikerház
Eladó ikerház

Diósd

213.46 M Ft
5 szoba
186 m2
Eladó ikerház
Eladó ikerház

Szentendre

179 M Ft
5 + 1 szoba
147 m2
Eladó ikerház
Eladó ikerház

Mogyoród

135 M Ft
5 szoba
137 m2
Eladó ikerház
Eladó ikerház

Mogyoród

115 M Ft
3 szoba
140 m2
Eladó ikerház
Eladó ikerház

Mogyoród

98.5 M Ft
4 szoba
115 m2
Eladó ikerház
Eladó ikerház

Mogyoród

129 M Ft
5 szoba
123 m2
Eladó ikerház
Eladó ikerház

Szentendre

359 M Ft
5 + 1 szoba
289 m2
Eladó ikerház
Eladó ikerház

Mogyoród

124.99 M Ft
4 szoba
115 m2
Eladó ikerház
Eladó ikerház

Mogyoród, Árpád vezér út

185 M Ft
6 szoba
179 m2
Eladó ikerház
Eladó ikerház

Mogyoród

199.99 M Ft
4 szoba
160 m2
Eladó ikerház
Eladó ikerház

Pomáz

129.5 M Ft
4 szoba
100 m2
Eladó ikerház
Eladó ikerház

Mogyoród

124.99 M Ft
4 szoba
115 m2
Eladó ikerház
Eladó ikerház

Mogyoród

135 M Ft
5 szoba
137 m2
Eladó ikerház
Eladó ikerház

Mogyoród

125 M Ft
5 szoba
133 m2
Eladó ikerház
Eladó ikerház

Mogyoród

120 M Ft
4 szoba
126 m2
Eladó ikerház
Eladó ikerház

Kiskunlacháza

41 M Ft
2 szoba
39 m2
Eladó ikerház
Eladó ikerház

Pécel, Pécel - kertváros

127 M Ft
4 szoba
125 m2
Eladó ikerház
Eladó ikerház

Mogyoród

113.99 M Ft
4 szoba
115 m2
Eladó ikerház
Eladó ikerház

Mogyoród

113.99 M Ft
4 szoba
115 m2
Eladó ikerház
Eladó ikerház

Dunakeszi

149 M Ft
1 + 4 szoba
127 m2

Falusi CSOK ingatlanok

Eladó családi ház
Eladó családi ház

Lovasberény

34.9 M Ft
3 szoba
87 m2
Eladó családi ház
Eladó családi ház

Ráksi

69.9 M Ft
4 szoba
139 m2
Eladó családi ház
Eladó családi ház

Sárisáp, Orgona utca

60 M Ft
4 szoba
145 m2
Eladó családi ház
Eladó családi ház

Városlőd

51.9 M Ft
1 + 2 szoba
53 m2
Eladó családi ház
Eladó családi ház

Marcaltő

26 M Ft
3 szoba
103 m2
Eladó családi ház
Eladó családi ház

Szigliget

299 M Ft
3 szoba
95 m2
Eladó családi ház
Eladó családi ház

Tápióság

125 M Ft
4 szoba
130 m2
Eladó családi ház
Eladó családi ház

Magyarszék

48.5 M Ft
3 + 1 szoba
86 m2