Avico Greentop

Eladó ikerház
Mende

+ 7 kép 1/10
95 000 000 Ft95 M Ft 1 010 638 Ft/m2
4 szoba
94 m²
építés éve:2026

Részletes adatok

Telekméret: 981 m2
Fűtés: Egyéb
Energetikai besorolás: Nem adta meg a hirdető

Az OTP Bank lakáshitel ajánlataFizetett hirdetés

3629998835
Gerőcs Krisztina
referens

Érdekel az OTP Bank kedvezményes lakáshitel ajánlata? *

* A kérdésre „Igen” válasz bejelölése esetén, az „Üzenet küldése” gombra kattintva kijelentem, hogy az OTP Bank Nyrt. Adatkezelési tájékoztatójának tartalmát megismertem és tudomásul vettem.

Eladó ikerház leírása

MENDE – PUSZTASZENTISTVÁNI RÉSZÉN
ÚJ ÉPÍTÉSŰ, 3 SZOBÁS OTTHON SAJÁT KERTTEL

IKERHÁZ – HÁTSÓ HÁZ

Vasútállomáshoz közel, mégis csendes, nyugodt környezetben

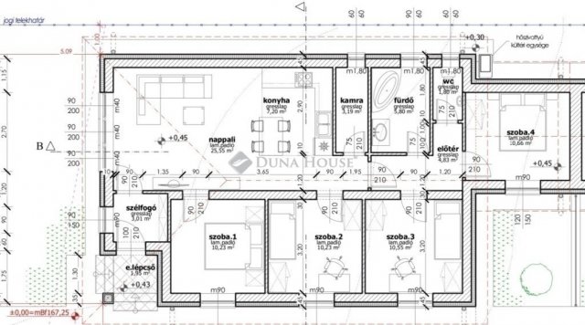
Mendén, a közkedvelt Pusztaszentistváni részen, a vasútállomástól nem messze – de kellő távolságra ahhoz, hogy a vonatok zaja ne legyen zavaró – eladó egy nettó 94 m²-es, új építésű, kiváló elosztású családi otthon.

A 981 m²-es telken elhelyezkedő hátsó ingatlanhoz 350 m² kizárólagos használatú kert tartozik, amely ideális pihenésre, kerti sütögetésre, medencére vagy mobilgarázs kialakítására.

Itt valóban megvan az intimitás és a nyugalom.

MŰSZAKI TARTALOM – IDŐTÁLLÓ MINŐSÉG
30 cm-es nútféderes tégla falazat
Fa födém
Antracit betoncserép fedés
15 cm EPS homlokzati szigetelés
10 cm Austrotherm padlószigetelés
25 cm ásványgyapot födémszigetelés
6 légkamrás, 3 rétegű üvegezésű nyílászárók

MODERN, GAZDASÁGOS FŰTÉS
10 kW-os monoblokkos hőszivattyú
Teljes körű padlófűtés
Alacsony fenntartás, korszerű megoldások

PRAKTIKUS, CSALÁDBARÁT ELRENDEZÉS
3 tágas szoba
Amerikai konyhás nappali
Fürdőszoba + külön WC
Külön háztartási helyiség
Átgondolt, élhető alaprajz

VÁLASZTHATÓ BURKOLATOK ÉS SZANITEREK (KÖLTSÉGKERETEN BELÜL)
Hideg- és melegburkolatok: 5.000 Ft/m²-ig
Csaptelepek: 25.000 Ft/db
Kád vagy zuhany: 70.000 Ft
Beltéri ajtók: 50.000 Ft/db
Falsík mögötti WC rendszer
Magasabb kategória is választható, különbözettel

ELEKTROMOS KIÉPÍTÉS
Szobákban: 3-3 konnektor
Nappaliban: 4 konnektor + internet + kábel TV
Konyhában: 6 konnektor
Helyiségenként világítási kiállás
Kábel TV előkészítés
Riasztó- és kapumozgató elektronika előkészítés

MEGBÍZHATÓ KIVITELEZŐ
A kivitelező Kókán, Sülysápon több mint 30 ingatlant épített
Referenciaházak komoly érdeklődés esetén megtekinthetők

VÁRHATÓ ÁTADÁS: 2026. SZEPTEMBER–OKTÓBER

Ha szeretné biztos, értékálló helyen tudni családja új otthonát Mendén, keressen bizalommal.
Nézzük meg együtt leendő új otthonát.

Független hitelügyintézés biztosított.
Érdeklődni: Gerőcs Krisztina + 36204529828
E-mail : gerocs.krisztina@dh.hu

Referencia szám: HZ023295

Hirdetés feltöltve: 2026. 04. 21. Utoljára módosítva: 2026. 04. 21.

Az ingatlan elhelyezkedése

Cím: Mende

Eladó ikerházak a környékről

Mogyoród
Eladó ikerház

Mogyoród

135 M Ft
5 szoba
137 m²
Kiskunlacháza
Eladó ikerház

Kiskunlacháza

44.9 M Ft
2 szoba
39 m²
Mende
Eladó ikerház

Mende

95 M Ft
4 szoba
94 m²
Szentendre
Eladó ikerház

Szentendre

359 M Ft
5 + 1 szoba
289 m²
Pécel
Eladó ikerház

Pécel

149.9 M Ft
5 szoba
306 m²
Diósd
Eladó ikerház

Diósd

213.46 M Ft
5 szoba
186 m²
Mende
Eladó ikerház

Mende

132.5 M Ft
5 szoba
127 m²
Vácrátót
Eladó ikerház

Vácrátót

99.9 M Ft
3 + 2 szoba
112 m²
Herceghalom
Eladó ikerház

Herceghalom

99 M Ft
4 szoba
106 m²
Mogyoród
Eladó ikerház

Mogyoród

135 M Ft
5 szoba
137 m²
Mende
Eladó ikerház

Mende

95 M Ft
4 szoba
94 m²
Budakalász
Eladó ikerház

Budakalász

159 M Ft
6 szoba
140 m²
Mende
Eladó ikerház

Mende

85 M Ft
4 szoba
94 m²
Herceghalom
Eladó ikerház

Herceghalom

148 M Ft
5 szoba
134 m²
Budakalász
Eladó ikerház

Budakalász

195 M Ft
5 + 2 szoba
170 m²
Pécel, Pécel - kertváros
Eladó ikerház

Pécel

127 M Ft
4 szoba
125 m²
Mende
Eladó ikerház

Mende

130.5 M Ft
5 szoba
127 m²
Mende
Eladó ikerház

Mende

95 M Ft
4 szoba
94 m²
Nagytarcsa
Eladó ikerház

Nagytarcsa

119.9 M Ft
4 szoba
103 m²
Mende
Eladó ikerház

Mende

130.5 M Ft
5 szoba
127 m²
Dunakeszi
Eladó ikerház

Dunakeszi

178 M Ft
6 szoba
140 m²
Mende
Eladó ikerház

Mende

132.5 M Ft
5 szoba
127 m²
Érd
Eladó ikerház

Érd

177.7 M Ft
7 szoba
181 m²
Mende
Eladó ikerház

Mende

127.9 M Ft
5 szoba
93 m²

Falusi CSOK ingatlanok

Zalalövő
Eladó családi ház

Zalalövő

47 M Ft
4 + 1 szoba
117 m²
Tápiógyörgye
Eladó családi ház

Tápiógyörgye

29.49 M Ft
2 szoba
60 m²
Zsámbok
Eladó családi ház

Zsámbok

63.5 M Ft
4 szoba
108 m²
Cece
Eladó családi ház

Cece

56.95 M Ft
5 szoba
170 m²
Seregélyes
Eladó családi ház

Seregélyes

75 M Ft
6 szoba
160 m²
Zsámbok
Eladó családi ház

Zsámbok

32 M Ft
2 szoba
75 m²
Enese
Eladó családi ház

Enese

72.025 M Ft
4 szoba
75 m²
Balástya, Tanya 86/1
Eladó családi ház

Balástya

8.28 M Ft
1 + 1 szoba
111 m²