BAM Living

Eladó ikerház
Mende

+ 7 kép 1/10
85 000 000 Ft85 M Ft 904 255 Ft/m2
4 szoba
94 m²
építés éve:2026

Részletes adatok

Telekméret: 981 m2
Fűtés: Egyéb
Energetikai besorolás: Nem adta meg a hirdető

Az OTP Bank lakáshitel ajánlataFizetett hirdetés

3629998800
Lázár Balázs
referens

Érdekel az OTP Bank kedvezményes lakáshitel ajánlata? *

* A kérdésre „Igen” válasz bejelölése esetén, az „Üzenet küldése” gombra kattintva kijelentem, hogy az OTP Bank Nyrt. Adatkezelési tájékoztatójának tartalmát megismertem és tudomásul vettem.

Eladó ikerház leírása

MENDE PUSZTASZENTISTVÁNI RÉSZÉN ÚJ ÉPÍTÉSŰ, 3 SZOBÁS OTTHON SAJÁT KERTTEL!

Ikerház: ELSŐ HÁZ

Vasútállomáshoz közel, mégis csendes, nyugodt környezetben!

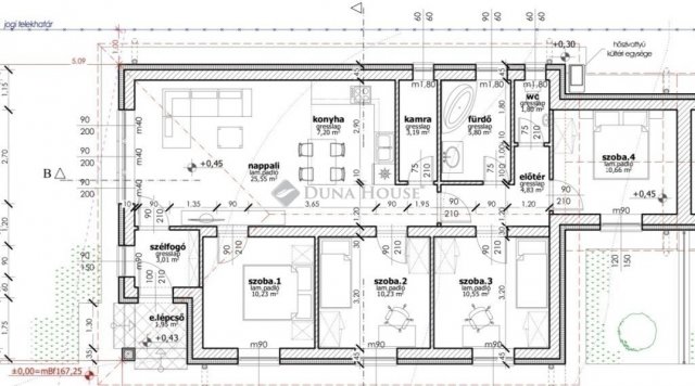
Mendén, a közkedvelt Pusztaszentistváni részen, a vasútállomástól nem messze de kellő távolságra ahhoz, hogy a vonatok zaja ne legyen zavaró kínálok megvételre egy nettó 94 m²-es, új építésű, kiváló elosztású családi otthont.

A 981 m²-es telken elhelyezkedő első ingatlanhoz 250 m² kizárólagos használatú kert tartozik tökéletes választás pihenéshez, kerti sütögetéshez, medencéhez vagy akár mobilgarázs kialakításához.

Itt valóban megvan az intimitás és a nyugalom!

MŰSZAKI TARTALOM IDŐTÁLLÓ MINŐSÉG
30 cm-es nútféderes tégla falazat
Fa födém
Antracit betoncserép fedés
15 cm EPS homlokzati szigetelés
10 cm Austrotherm padlószigetelés
25 cm ásványgyapot födémszigetelés
6 légkamrás, 3 rétegű üvegezésű nyílászárók

MODERN, GAZDASÁGOS FŰTÉS

10 kW-os monoblokkos hőszivattyú

Teljes körű padlófűtés

Alacsony fenntartás, korszerű megoldások.

PRAKTIKUS, CSALÁDBARÁT ELRENDEZÉS
3 tágas szoba
Amerikai konyhás nappali
Fürdőszoba + külön WC
Külön háztartási helyiség

Átgondolt alaprajz, élhető terek.

VÁLASZTHATÓ BURKOLATOK ÉS SZANITEREK (KÖLTSÉGKERETEN BELÜL)

Hideg- és melegburkolatok: 5.000 Ft/m²-ig
Csaptelepek: 25.000 Ft/db
Kád vagy zuhany: 70.000 Ft
Beltéri ajtók: 50.000 Ft/db
Falsík mögötti WC rendszer

Magasabb kategória is választható, különbözet ráfizetésével.

ELEKTROMOS KIÉPÍTÉS

Szobákban: 3-3 konnektor
Nappaliban: 4 konnektor + internet + kábel TV
Konyhában: 6 konnektor
Helyiségenként világítási kiállás
Kábel TV előkészítés
Riasztó- és kapumozgató elektronika előkészítés

MEGBÍZHATÓ KIVITELEZŐ

A kivitelező Kókán,Sülysápon, több mint 30 ingatlant épített.

Referenciaházakat komoly érdeklődés esetén szívesen mutatok!

Várható átadás: 2026. SZEPTEMBER-OKTÓBER

Ha szeretné biztos, értékálló helyen tudni családja új otthonát Mendén, hívjon bizalommal!

Nézzük meg együtt leendő ÚJ OTTHONÁT!

Független hitelügyintézővel is segítem a vásárlást.
Mutass
Lázár Balázs, Tel.: +36709435047, E-mail: lazar.balazs@dh.hu

Referencia szám: HZ040483

Hirdetés feltöltve: 2026. 04. 12. Utoljára módosítva: 2026. 05. 04.

Az ingatlan elhelyezkedése

Cím: Mende

Eladó ikerházak a környékről

Hernád
Eladó ikerház

Hernád

41.3 M Ft
3 szoba
68 m²
Vácrátót
Eladó ikerház

Vácrátót

99.9 M Ft
3 + 2 szoba
112 m²
Mende
Eladó ikerház

Mende

85 M Ft
4 szoba
94 m²
Mogyoród
Eladó ikerház

Mogyoród

135 M Ft
5 szoba
137 m²
Mende
Eladó ikerház

Mende

89.9 M Ft
3 szoba
76 m²
Pomáz
Eladó ikerház

Pomáz

129.5 M Ft
4 szoba
100 m²
Herceghalom
Eladó ikerház

Herceghalom

99 M Ft
4 szoba
106 m²
Mende
Eladó ikerház

Mende

95 M Ft
4 szoba
94 m²
Mende
Eladó ikerház

Mende

89.9 M Ft
4 szoba
80 m²
Vác
Eladó ikerház

Vác

149.9 M Ft
5 szoba
202 m²
Pécel
Eladó ikerház

Pécel

149.9 M Ft
5 szoba
306 m²
Vácrátót
Eladó ikerház

Vácrátót

94.9 M Ft
2 + 3 szoba
108 m²
Mende, Dobó István utca
Eladó ikerház

Mende

130.5 M Ft
5 szoba
127 m²
Mende
Eladó ikerház

Mende

85 M Ft
4 szoba
94 m²
Nagytarcsa
Eladó ikerház

Nagytarcsa

119.9 M Ft
4 szoba
103 m²
Mende
Eladó ikerház

Mende

85 M Ft
4 szoba
94 m²
Mende
Eladó ikerház

Mende

130.5 M Ft
5 szoba
127 m²
Érd
Eladó ikerház

Érd

177.7 M Ft
7 szoba
181 m²
Mende
Eladó ikerház

Mende

85 M Ft
4 szoba
94 m²
Dunakeszi
Eladó ikerház

Dunakeszi

178 M Ft
6 szoba
140 m²
Mende
Eladó ikerház

Mende

132.5 M Ft
5 szoba
127 m²
Mende
Eladó ikerház

Mende

127.9 M Ft
5 szoba
93 m²
Mende
Eladó ikerház

Mende

132.5 M Ft
5 szoba
127 m²
Mende
Eladó ikerház

Mende

95 M Ft
4 szoba
94 m²

Falusi CSOK ingatlanok

Csátalja, Dózsa György utca
Eladó családi ház

Csátalja

30.5 M Ft
3 szoba
110 m²
Tákos
Eladó családi ház

Tákos

20 M Ft
3 szoba
84 m²
Galgahévíz
Eladó családi ház

Galgahévíz

43 M Ft
3 szoba
115 m²
Kaposgyarmat
Eladó családi ház

Kaposgyarmat

695 M Ft
6 szoba
610 m²
Hegyeshalom, Margaréta utca 12
Eladó téglalakás

Hegyeshalom

46.91 M Ft
2 szoba
43 m²
Kaposfő
Eladó családi ház

Kaposfő

15 M Ft
2 szoba
68 m²
Balatonszemes, Ady Endre u
Eladó téglalakás

Balatonszemes

119.9 M Ft
3 szoba
67 m²
Nagyszénás
Eladó családi ház

Nagyszénás

12.8 M Ft
3 + 1 szoba
110 m²