Eladó ikerház
Majosháza

+ 3 kép 1/6
65 900 000 Ft65.9 M Ft 969 118 Ft/m2
3 szoba
68 m2
építés éve:2025

Részletes adatok

Telekméret: 619 m2
Fűtés: Gázkazán
Energetikai besorolás: Nem adta meg a hirdető

Az OTP Bank lakáshitel ajánlataFizetett hirdetés

3624814327
Berényi Katalin
referens

Érdekel az OTP Bank kedvezményes lakáshitel ajánlata? *

* A kérdésre „Igen” válasz bejelölése esetén, az „Üzenet küldése” gombra kattintva kijelentem, hogy az OTP Bank Nyrt. Adatkezelési tájékoztatójának tartalmát megismertem és tudomásul vettem.

Eladó ikerház leírása

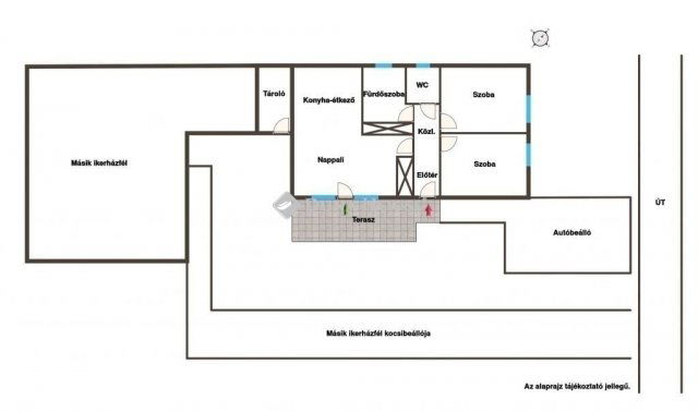
Eladó újépítésű ikerházfél Majosházán, 250 méterre a Duna-parttól!Az ingatlan 68,80 m²-es, praktikus elrendezéssel: előszoba, amerikai konyhás nappali, két hálószoba, fürdőszoba, külön WC, külőn tároló és egy nyitott 14,7 nm-es terasz. Szerkezetét tekintve 30-as tégla falazattal, rajta 10 cm-es szigeteléssel épül. Az otthon melegéről kondenzációs gázkazán gondoskodik, mely a meleget padlófűtésen keresztül adja. Alternatív fűtésként 2 db inverteres klíma szolgál majd. További műszaki paraméterek: Alapozás: Beton alap, megfelelő vasalással, időtálló szerkezettel.Födém: Fafödém 30 cm kőzetgyapot hőszigeteléssel, energiatakarékos kialakítással.Tető: Betoncseréppel fedve, tartós és modern megjelenéssel, barna színbenNyílászárók: Műanyag ablakok, víztiszta háromrétegű hőszigetelő üvegezéssel, barna színbenHomlokzat: Dörzsölt homlokzatvakolat, fehér színbenLábazati vakolat: Dörzsölt fagyálló lábazati vakolat, barna színbenAz ingatlan saját, elkerített kertrésszel, és kocsibeállóval kerül megépítésre.A burkolatok és szaniterek egyedi ízlés szerint alakíthatók: Melegburkolat: bruttó 6.000 Ft/m²-ig Hidegburkolat: bruttó 8.000 Ft/m²-ig Szaniterek: összesen 400.000 Ft értékhatárig, igény szerint kiválaszthatókAz ár a kulcsrakész állapotra értendő.Átadás: 2025. utolsó negyedévAz ingatlan ideális választás azok számára, akik új építésű, energiatakarékos otthont keresnek nyugodt, természetközeli környezetben, Budapest vonzáskörzetében.Amennyiben hitelre lenne szüksége, kiváló, szakmailag felkészült kollégánkkal a Credipasstól ingyenes és bankfüggetlen szaktanácsadás keretén belül biztosan megtalálják a lehető legkedvezőbb, személyre szabott konstrukciót. További kérdés esetén állok szíves rendelkezésükre hétvégén is, a megadott elérhetőségek bármelyikén.

Referencia szám: HZ059006

Hirdetés feltöltve: 2025. 10. 01.

3 szobás ikerházak ára Majosházán

Ebből az összehasonlításból megtudhatod, hogyan viszonyul a lakás ára a környékbeli ikerházak átlagos árához. Ez nem azt jelenti, hogy ennyivel olcsóbb vagy drágább, mint amennyit a lakás ér, hanem hogy ennyivel tér el a környékbeli átlagtól.

Ennek a m² ára
Majosháza m² ár
969 e Ft
961 e Ft -1%
Ennek az ára
Majosháza átlagár
65.9 M Ft m Ft
65.5 m Ft -1%

Az ingatlan elhelyezkedése

Cím: Majosháza

Eladó ikerházak a környékről

Eladó ikerház
Eladó ikerház

Majosháza

69.9 M Ft
3 szoba
67 m2
Eladó ikerház
Eladó ikerház

Majosháza

60 M Ft
3 szoba
60 m2
Eladó ikerház
Eladó ikerház

Majosháza

65.9 M Ft
3 szoba
81 m2
Eladó ikerház
Eladó ikerház

Majosháza

76.9 M Ft
4 szoba
77 m2
Eladó ikerház
Eladó ikerház

Majosháza

65.9 M Ft
3 szoba
68 m2
Eladó ikerház
Eladó ikerház

Fót

105 M Ft
2 + 3 szoba
112 m2
Eladó ikerház
Eladó ikerház

Majosháza

65.9 M Ft
3 szoba
68 m2
Eladó ikerház
Eladó ikerház

Majosháza

69.9 M Ft
3 szoba
73 m2
Eladó ikerház
Eladó ikerház

Majosháza

69.9 M Ft
3 szoba
67 m2
Eladó ikerház
Eladó ikerház

Pomáz

129.5 M Ft
4 szoba
100 m2
Eladó ikerház
Eladó ikerház

Majosháza

65.9 M Ft
3 szoba
77 m2
Eladó ikerház
Eladó ikerház

Pusztazámor

63 M Ft
10 szoba
470 m2
Eladó ikerház
Eladó ikerház

Dunakeszi

149 M Ft
1 + 4 szoba
127 m2
Eladó ikerház
Eladó ikerház

Majosháza

77 M Ft
4 szoba
90 m2
Eladó ikerház
Eladó ikerház

Pilisjászfalu

70.563 M Ft
4 szoba
61 m2
Eladó ikerház
Eladó ikerház

Pécel, Pécel - kertváros

127 M Ft
4 szoba
125 m2
Eladó ikerház
Eladó ikerház

Majosháza

89 M Ft
4 szoba
91 m2
Eladó ikerház
Eladó ikerház

Pécel

149.9 M Ft
5 szoba
306 m2
Eladó ikerház
Eladó ikerház

Rád

100 M Ft
4 szoba
152 m2
Eladó ikerház
Eladó ikerház

Majosháza

69.9 M Ft
3 szoba
73 m2
Eladó ikerház
Eladó ikerház

Üröm

249.9 M Ft
4 szoba
154 m2
Eladó ikerház
Eladó ikerház

Majosháza

69.9 M Ft
3 szoba
73 m2
Eladó ikerház
Eladó ikerház

Majosháza

65.9 M Ft
3 szoba
77 m2
Eladó ikerház
Eladó ikerház

Kiskunlacháza

89.1 M Ft
4 szoba
99 m2

Falusi CSOK ingatlanok

Eladó családi ház
Eladó családi ház

Sásd

24.911 M Ft
3 szoba
123 m2
Eladó családi ház
Eladó családi ház

Ugod

53.8 M Ft
3 szoba
137 m2
Eladó családi ház
Eladó családi ház

Nemesbőd

87 M Ft
5 szoba
120 m2
Eladó családi ház
Eladó családi ház

Bogács

135 M Ft
2 szoba
106 m2
Eladó családi ház
Eladó családi ház

Nádasdladány

45.9 M Ft
1 + 1 szoba
50 m2
Eladó családi ház
Eladó családi ház

Szob, Petőfi Sándor utca

23.5 M Ft
2 szoba
68 m2
Eladó ikerház
Eladó ikerház

Besnyő

89.5 M Ft
1 + 3 szoba
93 m2
Eladó családi ház
Eladó családi ház

Kisgyalán

33.3 M Ft
3 + 1 szoba
121 m2