Seven Pearl

Eladó ikerház
Kecskemét

+ 2 kép 1/5
83 900 000 Ft83.9 M Ft 921 978 Ft/m2
4 szoba
91 m2
építés éve:2026

Részletes adatok

Telekméret: 360 m2
Fűtés: Gázkazán
Energetikai besorolás: Nem adta meg a hirdető

Az OTP Bank lakáshitel ajánlataFizetett hirdetés

+36 70 645
Biró Ramóna
HOUSE36 Ingatlanbázis Kft.

Érdekel az OTP Bank kedvezményes lakáshitel ajánlata? *

* A kérdésre „Igen” válasz bejelölése esetén, az „Üzenet küldése” gombra kattintva kijelentem, hogy az OTP Bank Nyrt. Adatkezelési tájékoztatójának tartalmát megismertem és tudomásul vettem.

Eladó ikerház leírása

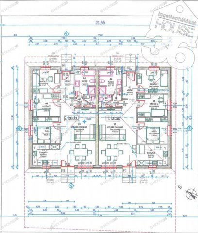
Új építésű 91 m2 es, nappali + 3 szobás ikerház eladó Kecskeméten!

Jellemzői:

2026januári átadás
nappali + 3 szoba
3%-os hitelre 10% önerővel megvásárolható
91 m2
téglaépítés
bioderítő
2 db klíma
gáz - cirkó fűtés BAXI kazánnal, padlófűtés
360 m2 telek
burkolat választható
15 cm-es szigetelés, 30 cm födémszigetelés



A tulajdonos kérésére az ingatlan bemutatása egy személyes konzultáció után történik, ahol részletes tájékoztatást kaphat az ingatlan paramétereiről és egyéb kényelmi szolgáltatásairól !

Figyelem az adatlap megbízónktól kapott adatok alapján készült, pontosságáért felelősséget nem tudunk vállalni!
Az iroda legfrissebb, aktuális kínálatát a HOUSE36 saját weboldalán találja!

Hirdetés feltöltve: 2025. 11. 29. Utoljára módosítva: 2025. 11. 29.

4 szobás ikerházak ára Kecskeméten

Ebből az összehasonlításból megtudhatod, hogyan viszonyul a lakás ára a környékbeli ikerházak átlagos árához. Ez nem azt jelenti, hogy ennyivel olcsóbb vagy drágább, mint amennyit a lakás ér, hanem hogy ennyivel tér el a környékbeli átlagtól.

Ennek a m² ára
Kecskemét m² ár
922 e Ft
888 e Ft -4%
Ennek az ára
Kecskemét átlagár
83.9 M Ft m Ft
92.2 m Ft 9%

Az ingatlan elhelyezkedése

Cím: Kecskemét

Eladó ikerházak a környékről

Eladó ikerház
Eladó ikerház

Kecskemét

111.5 M Ft
5 szoba
171 m2
Eladó ikerház
Eladó ikerház

Kecskemét

111.5 M Ft
5 szoba
171 m2
Eladó ikerház
Eladó ikerház

Kecskemét, Bethlen-város, Szarvas utca

70 M Ft
4 szoba
110 m2
Eladó ikerház
Eladó ikerház

Kecskemét

49.99 M Ft
7 szoba
200 m2
Eladó ikerház
Eladó ikerház

Kecskemét

88.9 M Ft
5 szoba
108 m2
Eladó ikerház
Eladó ikerház

Kecskemét

87.9 M Ft
4 szoba
105 m2
Eladó ikerház
Eladó ikerház

Izsák

39.9 M Ft
300 m²
67 m2
Eladó ikerház
Eladó ikerház

Kiskunhalas

18.99 M Ft
3 szoba
75 m2
Eladó ikerház
Eladó ikerház

Kecskemét

88.9 M Ft
5 szoba
108 m2
Eladó ikerház
Eladó ikerház

Lajosmizse

75 M Ft
5 szoba
111 m2
Eladó ikerház
Eladó ikerház

Kecskemét

83.9 M Ft
4 szoba
151 m2
Eladó ikerház
Eladó ikerház

Kecskemét

118.5 M Ft
4 szoba
113 m2
Eladó ikerház
Eladó ikerház

Kecskemét

109.9 M Ft
6 szoba
170 m2
Eladó ikerház
Eladó ikerház

Kecskemét

122.5 M Ft
4 szoba
155 m2
Eladó ikerház
Eladó ikerház

Kiskunmajsa

45 M Ft
3 szoba
113 m2
Eladó ikerház
Eladó ikerház

Kecskemét

85.9 M Ft
384 m²
94 m2
Eladó ikerház
Eladó ikerház

Kecskemét

83.9 M Ft
4 szoba
151 m2
Eladó ikerház
Eladó ikerház

Kecskemét

111.5 M Ft
5 szoba
171 m2
Eladó ikerház
Eladó ikerház

Kecskemét

85.9 M Ft
384 m²
94 m2
Eladó ikerház
Eladó ikerház

Kecskemét

105 M Ft
4 szoba
120 m2
Eladó ikerház
Eladó ikerház

Kecskemét

83.9 M Ft
4 szoba
151 m2
Eladó ikerház
Eladó ikerház

Kecskemét

83.9 M Ft
4 szoba
102 m2
Eladó ikerház
Eladó ikerház

Baja

75 M Ft
6 szoba
215 m2
Eladó ikerház
Eladó ikerház

Baja

89.99 M Ft
5 szoba
150 m2

Falusi CSOK ingatlanok

Eladó családi ház
Eladó családi ház

Gyömöre

45.99 M Ft
2 szoba
118 m2
Eladó családi ház
Eladó családi ház

Hercegszántó

33 M Ft
4 szoba
144 m2
Eladó családi ház
Eladó családi ház

Ceglédbercel, Iskola utca

99.99 M Ft
5 szoba
128 m2
Eladó családi ház
Eladó családi ház

Segesd

3.9 M Ft
2 szoba
65 m2
Eladó családi ház
Eladó családi ház

Balatonszárszó

185 M Ft
6 szoba
260 m2
Eladó családi ház
Eladó családi ház

Jászkarajenő

19.9 M Ft
3 szoba
81 m2
Eladó családi ház
Eladó családi ház

Ságvár

64.9 M Ft
3 szoba
70 m2
Eladó családi ház
Eladó családi ház

Bócsa

68 M Ft
3 szoba
100 m2