Pesti Házak

Eladó ikerház
Kecskemét, Sóvirág utca

68 900 000 Ft68.9 M Ft 1 060 000 Ft/m2
3 szoba
65 m2
építés éve:2026

Részletes adatok

Telekméret: 445 m2
Fűtés: Egyéb
Energetikai besorolás: Nem adta meg a hirdető
Zenga Premier

Friss hirdetések, amiket nem találsz meg más ingatlankereső portálon.

Fedezd fel elsőként a Zenga Premier címkés eladó ingatlanokat!

További részletek a zenga.hu-n

Az OTP Bank lakáshitel ajánlataFizetett hirdetés

3676998546
Holló-Vörös Ramóna
Duna House - Kecskemét, Petőfi Sándor utca

Érdekel az OTP Bank kedvezményes lakáshitel ajánlata? *

* A kérdésre „Igen” válasz bejelölése esetén, az „Üzenet küldése” gombra kattintva kijelentem, hogy az OTP Bank Nyrt. Adatkezelési tájékoztatójának tartalmát megismertem és tudomásul vettem.

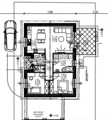
Eladó ikerház leírása

Eladásra kínálunk Kecskeméten, a Sóvirág utcában egy 65 m²-es ikerház egyik felét, amely hőszivattyúval, fedett gépkocsibeállóval és prémium műszaki tartalommal rendelkezik.

A 445 m²-es telek a vételár részét képezi, és az osztatlan közös tulajdonhoz, ügyvédi használati megosztás is tartozik.
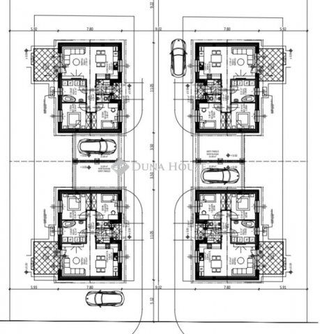
A 795 m²-es telken két, sorházi jellegű családi ház épül, amelyek a fedett gépkocsibeállónál kapcsolódnak egymáshoz.
Minden ingatlanhoz saját, elkerített telekrész tartozik.

A várható átadás pedig 2026. november-december.

A projekt kivitelezői ELŐFINANSZÍROZÁSSAL is megvásárolható (nem kell előre fizetni), tehát mindig az elkészült, átadott ütem után kell fizetni, illetve a kivitelező szerződésben vállalja, hogy ÁR GARANCIÁT vállal az építményre.

A családi ház nettó alapterülete 65 m2, amely tartalmaz:
3 szobát (amerikai konyha-nappali-étkező + 2 hálószoba);
1 fürdőszobát
Fedett gépkocsi beállót
és egy előszobát.

Műszaki tartalom:
Teherhordó falazat: Wienerberger Porotherm 30 N+F
Homlokzati hőszigetelés: 15 cm
Tetőhéjazat választható: Leier Toscana tetőcserép választható színben
Külső nyílászárók: 3 réteg üvegezésű, kívül antracit, belül fehér prémium Gealan S8000 külső nyílászárók, 36 mm-es üvegezéssel + antracit, alumínium redőnyök + antracit műkő párkány
Válaszfal: Wienerberger Porotherm 10 tégla válaszfal
Bejárati ajtó választható: Colorplast standard betéttel
Teraszajtó: Dupla szárnyas
Beltéri ajtó: Borovi Szicília (dekorfóliás) választható színben
Hidegburkolat választható: 6.500 Ft / m2
Melegburkolat választható: 6.000 Ft / m2
Szaniterek választható: (kád, zuhanykabin, csaptelep stb.) 460.000Ft-ig
Gépészet: Bosch 3400 levegő-víz hőszivattyú vizes padlófűtéssel

Az ár kulcsrakész állapotban történő átadással értendő, konyhabútor és lámpatestek nélkül!

Közművek:
Gáz: nincs
Villany: ingatlanban
Csatorna: derítő kerül kiépítésre
Víz: ingatlanban

Ajánlom mindazoknak, akik Kecskemét csendes környezetében szeretnének élni, de mégis közel a városhoz.

Hirdetés feltöltve: 2025. 11. 15. Utoljára módosítva: 2025. 11. 15.

3 szobás ikerházak ára Kecskeméten

Ebből az összehasonlításból megtudhatod, hogyan viszonyul a lakás ára a környékbeli ikerházak átlagos árához. Ez nem azt jelenti, hogy ennyivel olcsóbb vagy drágább, mint amennyit a lakás ér, hanem hogy ennyivel tér el a környékbeli átlagtól.

Ennek a m² ára
Kecskemét m² ár
1060 e Ft
866 e Ft -22%
Ennek az ára
Kecskemét átlagár
68.9 M Ft m Ft
62.2 m Ft -11%

Az ingatlan elhelyezkedése

Cím: Kecskemét, Sóvirág utca

Eladó ikerházak a környékről

Eladó ikerház
Eladó ikerház

Kecskemét

84.9 M Ft
390 m²
94 m2
Eladó ikerház
Eladó ikerház

Kecskemét

88.9 M Ft
5 szoba
108 m2
Eladó ikerház
Eladó ikerház

Kecskemét

54.9 M Ft
3 szoba
74 m2
Eladó ikerház
Eladó ikerház

Kiskunhalas

18.99 M Ft
3 szoba
75 m2
Eladó ikerház
Eladó ikerház

Kecskemét

114.99 M Ft
7 szoba
200 m2
Eladó ikerház
Eladó ikerház

Kecskemét

110 M Ft
5 szoba
110 m2
Eladó ikerház
Eladó ikerház

Kiskunmajsa

45 M Ft
3 szoba
113 m2
Eladó ikerház
Eladó ikerház

Kecskemét

122.5 M Ft
4 szoba
155 m2
Eladó ikerház
Eladó ikerház

Kecskemét

111.5 M Ft
5 szoba
171 m2
Eladó ikerház
Eladó ikerház

Kecskemét

79.9 M Ft
4 szoba
128 m2
Eladó ikerház
Eladó ikerház

Kecskemét

79.9 M Ft
4 szoba
128 m2
Eladó ikerház
Eladó ikerház

Kecskemét

54.9 M Ft
3 szoba
74 m2
Eladó ikerház
Eladó ikerház

Kecskemét

59.9 M Ft
3 szoba
74 m2
Eladó ikerház
Eladó ikerház

Kecskemét

120 M Ft
5 szoba
120 m2
Eladó ikerház
Eladó ikerház

Kecskemét

85 M Ft
3 szoba
91 m2
Eladó ikerház
Eladó ikerház

Baja

75 M Ft
6 szoba
215 m2
Eladó ikerház
Eladó ikerház

Kecskemét

54.9 M Ft
3 szoba
74 m2
Eladó ikerház
Eladó ikerház

Kecskemét

83.9 M Ft
4 szoba
151 m2
Eladó ikerház
Eladó ikerház

Kecskemét

89.9 M Ft
524 m²
98 m2
Eladó ikerház
Eladó ikerház

Kecskemét

83.9 M Ft
4 szoba
151 m2
Eladó ikerház
Eladó ikerház

Kecskemét

109.9 M Ft
6 szoba
170 m2
Eladó ikerház
Eladó ikerház

Kecskemét, Bethlen-város, Szarvas utca

70 M Ft
4 szoba
110 m2
Eladó ikerház
Eladó ikerház

Kiskunhalas

55 M Ft
4 szoba
160 m2
Eladó ikerház
Eladó ikerház

Kecskemét

84.9 M Ft
390 m²
94 m2

Falusi CSOK ingatlanok

Eladó családi ház
Eladó családi ház

Gáborján

5.5 M Ft
2 szoba
68 m2
Eladó családi ház
Eladó családi ház

Orci

59.9 M Ft
3 szoba
101 m2
Eladó családi ház
Eladó családi ház

Erdősmecske

32 M Ft
3 szoba
115 m2
Eladó családi ház
Eladó családi ház

Dág, Petőfi Sándor utca

36.9 M Ft
4 szoba
105 m2
Eladó családi ház
Eladó családi ház

Balatonederics

105 M Ft
2 + 2 szoba
95 m2
Eladó családi ház
Eladó családi ház

Tarnalelesz

11 M Ft
4 szoba
186 m2
Eladó családi ház
Eladó családi ház

Újkígyós

19.99 M Ft
2 + 1 szoba
72 m2
Eladó családi ház
Eladó családi ház

Ságvár

54.9 M Ft
3 szoba
87 m2