Metrodom

Eladó ikerház
Hajdúsámson

1/1
55 000 000 Ft55 M Ft 647 059 Ft/m2
4 szoba
85 m2

Részletes adatok

Telekméret: 208 m2
Fűtés: Gázcirkó
Kilátás: Udvari, Utcai, Kertre néz
Parkolás: Utcán, Kocsibeálló
Közmű: Gáz, Villany
Hűtés: Egyéb
Energetikai besorolás: Nem adta meg a hirdető

Az OTP Bank lakáshitel ajánlataFizetett hirdetés

+36 20 977
t-zoltan
All In

Érdekel az OTP Bank kedvezményes lakáshitel ajánlata? *

* A kérdésre „Igen” válasz bejelölése esetén, az „Üzenet küldése” gombra kattintva kijelentem, hogy az OTP Bank Nyrt. Adatkezelési tájékoztatójának tartalmát megismertem és tudomásul vettem.

Eladó ikerház leírása

Új építésű ikerházak Sámsonkertben – már most leköthetők!

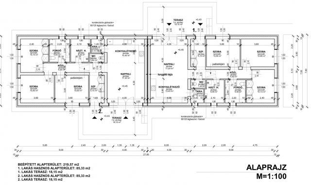
Sámsonkert nyugodt, rendezett környezetében, az aszfaltozott Muskátli utcától mindössze 60 méterre kínálunk eladásra modern, új építésű ikerház lakásokat. Az ingatlanok nappali + 3 szobás elrendezésűek, az alaprajz a mellékelt képen megtekinthető. Nincs átjárás egymáson!!!

Az ingatlanok kulcsrakész állapotban kerülnek átadásra, a szerződéskötéstől számított legfeljebb 12 hónapon belül.

Műszaki jellemzők:

Közművek: házi vízmű, gáz, villany, emésztő

Fűtés/Hűtés: gáz-cirkó kazán – padlófűtés minden helyiségben + 2 db. klíma

Saját használatú telekméretek és bevezető árak:

208 m² telekhányad: 8 M Ft telekár + 55 M Ft felépítmény

556 m² telekhányad: 12 M Ft telekár + 55 M Ft felépítmény

Finanszírozási lehetőségek: CSOK Plusz, Babaváró hitel, Banki hitelkonstrukciók

Bankfüggetlen hitelügyintézőnk díjmentesen nyújt segítséget a legmegfelelőbb finanszírozási forma kiválasztásában.



Amennyiben felkeltette érdeklődését, keressen bizalommal – hétvégén is elérhető vagyok!

Hirdetés feltöltve: 2026. 01. 20. Utoljára módosítva: 2026. 02. 09.

4 szobás ikerházak ára Hajdúsámsonon

Ebből az összehasonlításból megtudhatod, hogyan viszonyul a lakás ára a környékbeli ikerházak átlagos árához. Ez nem azt jelenti, hogy ennyivel olcsóbb vagy drágább, mint amennyit a lakás ér, hanem hogy ennyivel tér el a környékbeli átlagtól.

Ennek a m² ára
Hajdúsámson m² ár
647 e Ft
763 e Ft 15%
Ennek az ára
Hajdúsámson átlagár
55 M Ft m Ft
73.1 m Ft 25%

Az ingatlan elhelyezkedése

Cím: Hajdúsámson

Eladó ikerházak a környékről

Eladó ikerház
Eladó ikerház

Hajdúsámson

76.9 M Ft
4 szoba
98 m2
Eladó ikerház
Eladó ikerház

Debrecen

66 M Ft
1 + 2 szoba
59 m2
Eladó ikerház
Eladó ikerház

Hajdúsámson

63.9 M Ft
4 szoba
76 m2
Eladó ikerház
Eladó ikerház

Hajdúsámson

95 M Ft
4 szoba
102 m2
Eladó ikerház
Eladó ikerház

Hajdúsámson

87.5 M Ft
4 szoba
94 m2
Eladó ikerház
Eladó ikerház

Hajdúsámson

67.7 M Ft
4 szoba
103 m2
Eladó ikerház
Eladó ikerház

Debrecen

150 M Ft
5 szoba
143 m2
Eladó ikerház
Eladó ikerház

Hajdúsámson

58.9 M Ft
3 szoba
72 m2
Eladó ikerház
Eladó ikerház

Hajdúsámson

59.9 M Ft
4 szoba
79 m2
Eladó ikerház
Eladó ikerház

Debrecen

150 M Ft
5 szoba
143 m2
Eladó ikerház
Eladó ikerház

Hajdúsámson

57.7 M Ft
3 szoba
70 m2
Eladó ikerház
Eladó ikerház

Hajdúsámson

59.9 M Ft
4 szoba
76 m2
Eladó ikerház
Eladó ikerház

Létavértes

45 M Ft
3 szoba
75 m2
Eladó ikerház
Eladó ikerház

Debrecen

289 M Ft
8 szoba
310 m2
Eladó ikerház
Eladó ikerház

Hajdúsámson

69.9 M Ft
4 szoba
93 m2
Eladó ikerház
Eladó ikerház

Debrecen

249 M Ft
5 szoba
170 m2
Eladó ikerház
Eladó ikerház

Hajdúsámson

92.9 M Ft
4 szoba
102 m2
Eladó ikerház
Eladó ikerház

Debrecen

159 M Ft
3 szoba
133 m2
Eladó ikerház
Eladó ikerház

Debrecen

160.125 M Ft
4 szoba
160 m2
Eladó ikerház
Eladó ikerház

Hajdúsámson

55 M Ft
4 szoba
83 m2
Eladó ikerház
Eladó ikerház

Hajdúsámson

99.9 M Ft
4 szoba
131 m2
Eladó ikerház
Eladó ikerház

Hajdúsámson

66.9 M Ft
4 szoba
93 m2
Eladó ikerház
Eladó ikerház

Hajdúsámson

84.9 M Ft
4 szoba
99 m2
Eladó ikerház
Eladó ikerház

Hajdúsámson

82 M Ft
4 szoba
105 m2

Falusi CSOK ingatlanok

Eladó családi ház
Eladó családi ház

Herend

128 M Ft
3 + 2 szoba
246 m2
Eladó családi ház
Eladó családi ház

Bajna, Kossuth L. u. 28

58.5 M Ft
7 szoba
192 m2
Eladó családi ház
Eladó családi ház

Újlengyel

59.9 M Ft
3 szoba
73 m2
Eladó családi ház
Eladó családi ház

Kesztölc

129.9 M Ft
8 szoba
210 m2
Eladó családi ház
Eladó családi ház

Pánd

28.9 M Ft
3 szoba
74 m2
Eladó családi ház
Eladó családi ház

Kenyeri

21.8 M Ft
2 szoba
75 m2
Eladó családi ház
Eladó családi ház

Bakonyszentkirály

99.99 M Ft
5 szoba
126 m2
Eladó családi ház
Eladó családi ház

Igal

94.5 M Ft
4 + 2 szoba
278 m2