Eladó ikerház
Hajdúsámson
Részletes adatok
Az OTP Bank lakáshitel ajánlataFizetett hirdetés
Induló törlesztőrészlet
101 262 Ft /hóTörlesztőrészlet a 13. hónaptól
129 106 Ft /hóInduló törlesztőrészlet
135 016 Ft /hóTörlesztőrészlet a 13. hónaptól
172 142 Ft /hóA tájékoztatás nem teljes körű és nem minősül ajánlattételnek. Az OTP Évnyerő Lakáshitelei 1 éves türelmi idős kölcsönök, amellyel az első 12 hónapban alacsonyabb a havi törlesztőrészlet. A tőke törlesztését a 13. hónaptól kell megkezdeni.

Eladó ikerház leírása
Új építésű ikerházak Sámsonkertben – Leköthetők már most!
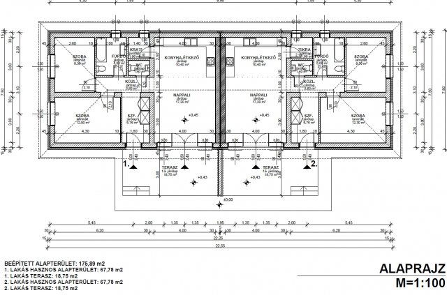
Sámsonkert csendes, rendezett részén, az aszfaltozott Muskátli utcától mindössze 60 méterre kínálunk eladásra új építésű ikerház lakóegységeket, nappali + 2 szobás kialakítással. Az alaprajz a mellékelt képen megtekinthető.
Várható átadás: kulcsrakész állapotban, a szerződéskötéstől számított legfeljebb 12 hónapon belül.
Közművek: Házi vízmű, Gáz, Villany Emésztő.
Fűtés: gáz-cirkó kazán.
Telekméretek és bevezető árak:
300 m² telekhányad: 10 M Ft + 55 M Ft a felépítmény.
420 m² telekhányad: 10 M Ft + 55 M Ft a felépítmény.
Elérhető támogatások: CSOK Plusz, Babaváró hitel, Banki hitellehetőségek.
Bankfüggetlen hitelügyintézőnk díjmentesen segít eligazodni a lehetőségek között.
Kérdés esetén forduljon hozzám bizalommal – hétvégén is elérhető vagyok!
Hirdetés feltöltve: 2025. 10. 15.
Az ingatlan elhelyezkedése
Cím: Hajdúsámson