Eladó ikerház
Gyömrő, Wekerle utca

+ 16 kép 1/19
89 900 000 Ft89.9 M Ft 1 123 750 Ft/m2
1 + 3 szoba
80 m2
építés éve:2003

Részletes adatok

Állapot: Felújított
Telekméret: 387 m2
Fűtés: Gázkazán
Parkolás: Kocsibeálló
Energetikai besorolás: Nem adta meg a hirdető

Az OTP Bank lakáshitel ajánlataFizetett hirdetés

+36 30 394
Belváros Ingatlan Hálózat Csepel City iroda
Belváros Ingatlan Hálózat City

Érdekel az OTP Bank kedvezményes lakáshitel ajánlata? *

* A kérdésre „Igen” válasz bejelölése esetén, az „Üzenet küldése” gombra kattintva kijelentem, hogy az OTP Bank Nyrt. Adatkezelési tájékoztatójának tartalmát megismertem és tudomásul vettem.

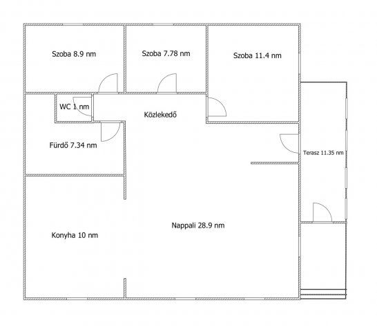
Eladó ikerház leírása

Kizárólag az irodánk kínálatában!

Csendes, családias környezetben kínálunk megvételre egy 3 hálószobás, amerikai konyhás nappalival rendelkező, könnyűszerkezetes iker családi házat, mely minden igényt kielégít!

Főbb jellemzők:

2003-ban épült, karbantartott, jó állapotú családiház!

Téliesített terasz, amely egész évben kellemes kikapcsolódást nyújt.

Új kondenzációs kazán és napelem biztosítja az energiatakarékos működést.

U alakú 387m²-es rendezett és ápolt kert – tökéletes hely pihenésre vagy családi programokra.

A kertben fedett, zárt tároló is található.


Az ingatlan elhelyezkedése ideális: nyugodt, mégis jól megközelíthető utcában, közel a központi részekhez, iskolához, óvodához és bevásárlási lehetőségekhez.

Kiváló választás családoknak, akik modern, energiatakarékos és kényelmes otthont keresnek Gyömrő egyik legkedveltebb részén!

Hirdetés feltöltve: 2025. 10. 10. Utoljára módosítva: 2025. 10. 10.

4 szobás ikerházak ára Gyömrőn

Ebből az összehasonlításból megtudhatod, hogyan viszonyul a lakás ára a környékbeli ikerházak átlagos árához. Ez nem azt jelenti, hogy ennyivel olcsóbb vagy drágább, mint amennyit a lakás ér, hanem hogy ennyivel tér el a környékbeli átlagtól.

Ennek a m² ára
Gyömrő m² ár
1124 e Ft
899 e Ft -25%
Ennek az ára
Gyömrő átlagár
89.9 M Ft m Ft
107.4 m Ft 16%

Az ingatlan elhelyezkedése

Cím: Gyömrő, Wekerle utca

Eladó ingatlanok a környékről

Eladó telek
Eladó telek

Dömsöd

65.2 M Ft
4007 m²
Eladó ikerház
Eladó ikerház

Gyömrő, Fogarasi u. 37

133 M Ft
5 szoba
126 m2
Eladó ikerház
Eladó ikerház

Kiskunlacháza

89.1 M Ft
4 szoba
99 m2
Eladó ikerház
Eladó ikerház

Gyömrő

79.9 M Ft
3 szoba
76 m2
Eladó ikerház
Eladó ikerház

Vác

94.5 M Ft
4 + 1 szoba
126 m2
Eladó ikerház
Eladó ikerház

Gödöllő

109.9 M Ft
4 szoba
93 m2
Eladó ikerház
Eladó ikerház

Solymár

150 M Ft
4 + 2 szoba
252 m2
Eladó téglalakás
Eladó téglalakás

Cegléd

72.9 M Ft
3 + 1 szoba
101 m2
Eladó ikerház
Eladó ikerház

Érd

139.9 M Ft
5 szoba
159 m2
Eladó ikerház
Eladó ikerház

Budaörs

369.9 M Ft
5 + 1 szoba
248 m2
Eladó mezogazdasagi ingatlan
Eladó mezogazdasagi ingatlan

Kerepes

1.99 M Ft
1357 m2
Eladó családi ház
Eladó családi ház

Dömsöd

68.4 M Ft
3 szoba
110 m2
Eladó ikerház
Eladó ikerház

Szentendre, Szentendre

398 M Ft
5 szoba
267 m2
Eladó családi ház
Eladó családi ház

Ceglédbercel

67 M Ft
4 szoba
165 m2
Eladó családi ház
Eladó családi ház

Budakeszi

52.9 M Ft
1 szoba
30 m2
Eladó családi ház
Eladó családi ház

Dunaharaszti

65 M Ft
2 szoba
110 m2
Eladó ikerház
Eladó ikerház

Vác

175.356 M Ft
5 szoba
165 m2
Eladó ikerház
Eladó ikerház

Dunaharaszti

124.999 M Ft
4 szoba
105 m2
Eladó ikerház
Eladó ikerház

Nagykovácsi

189.9 M Ft
5 szoba
100 m2
Eladó ikerház
Eladó ikerház

Érd, Érdliget - Kutyavár, Érdligeten található utca

64.9 M Ft
4 szoba
112 m2
Eladó ikerház
Eladó ikerház

Mogyoród, Fóti út

188 M Ft
6 szoba
182 m2
Eladó ikerház
Eladó ikerház

Gyömrő

79.9 M Ft
3 szoba
76 m2
Eladó ikerház
Eladó ikerház

Pusztazámor

55 M Ft
10 szoba
470 m2
Eladó ikerház
Eladó ikerház

Üröm

249.9 M Ft
4 szoba
154 m2

Falusi CSOK ingatlanok

Eladó családi ház
Eladó családi ház

Enese

78.9 M Ft
4 szoba
90 m2
Eladó családi ház
Eladó családi ház

Pilisszentkereszt

139 M Ft
5 szoba
220 m2
Eladó családi ház
Eladó családi ház

Balatonakali

270 M Ft
6 szoba
220 m2
Eladó családi ház
Eladó családi ház

Lázi

18.9 M Ft
2 szoba
74 m2
Eladó családi ház
Eladó családi ház

Tiszaalpár

29 M Ft
4 szoba
132 m2
Eladó családi ház
Eladó családi ház

Bár

89.5 M Ft
4 + 1 szoba
172 m2
Eladó családi ház
Eladó családi ház

Szentmártonkáta

35.4 M Ft
2 + 2 szoba
107 m2
Eladó családi ház
Eladó családi ház

Újszilvás

14.9 M Ft
2 szoba
50 m2