Metrodom

Eladó ikerház
Gyömrő

+ 17 kép 1/20
109 900 000 Ft109.9 M Ft 1 263 218 Ft/m2
3 szoba
87 m2
építés éve:2025

Részletes adatok

Telekméret: 155 m2
Fűtés: Egyéb
Energetikai besorolás: Nem adta meg a hirdető

Az OTP Bank lakáshitel ajánlataFizetett hirdetés

+36 20 943
Fodor Norbert
Fodor Ingatlanközvetítő Kft

Érdekel az OTP Bank kedvezményes lakáshitel ajánlata? *

* A kérdésre „Igen” válasz bejelölése esetén, az „Üzenet küldése” gombra kattintva kijelentem, hogy az OTP Bank Nyrt. Adatkezelési tájékoztatójának tartalmát megismertem és tudomásul vettem.

Eladó ikerház leírása

Gyömrőn a kastélydomb lakóparkban csendes, nyugodt környezetben, eladásra kínálok egy nappali + 2 hálószobás, Gardróbos, teraszos, új építésű, hőszivattyús ikerházi lakást, amely a korszerű technológia és a prémium kivitelezés tökéletes ötvözete.

A lakások 2 x Porotherm 30-as téglafallal kapcsolódik közte 5 cm-es szigeteléssel, így a lakások közt az áthallás kizárt!!!

Az építkezés folyamatosan halad, így ön végig követheti épülő ingatlanja építését, referenciaházak a közelben megtekinthetők.

Ez az otthon a legmodernebb technológiával épült, levegő-víz hőszivattyúval, amely garantálja az alacsony fenntartási költségeket, padlófűtéssel maximalizálja a komfortérzetet.

A lakások élhető, világos terekkel rendelkeznek. Az amerikai konyhás nappali mellett kettő hálószoba található, 1 fürdőszoba Wc-vel, külön Wc, valamint egy praktikus kamra is helyet kapott a házban.

Az ikerház egymás mögött helyezkedik el egy 1290 m²-es telken, amely kerítéssel megosztott, így mindkét lakáshoz saját, privát kert tartozik.

A lakások Társasházi alapító okirattal kerülnek átadásra.

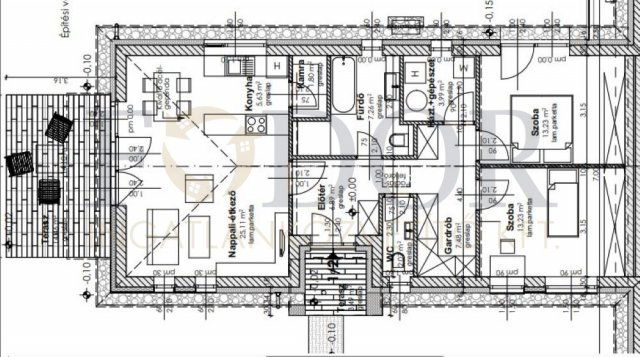
A hirdetésben feltüntetett alaprajz a leendő vásárló igényei szerint módosítható: akár három szobás, nappali-konyha elrendezés is kialakítható a kérésére!

Az ingatlan paraméterei:
1. lakás (utcafront felőli) Elrendezését lásd az alaprajzon!!!
• Alapterület: 89.5 m²
• Telekterület: 155 m²
• Terasz: 18.49 m²
• Vételár: 104.900.000 MFt

Az ingatlan paraméterei:
2. lakás (udvar felőli) Elrendezését lásd az alaprajzon!!!
• Alapterület: 86.7 m²
• Telekterület: 262 m²
• Terasz: 18.49 m²
• Vételár: 109.900.000 MFt

Műszaki tartalom:
• A fűtés és a meleg víz biztosítása Midea Concept 8 KW-os levegő-víz hőszivattyúval (beépített 190 literes HMV tartállyal) történik.

• 30 cm-as főfalak 16 cm szigeteléssel
• Hőszigetelt, fehér, 3 rétegű üvegezésű nyílászárók elektromos redőnnyel
• Vasbeton sávalap, fafödém 30 cm-es kőzetgyapot szigeteléssel.

További extrák:
• Elektromos kapu + motor az árban
• Kerítéssel leválasztott, privát telekterület
• Külső ablakpárkányok mészkőből készülnek

Elhelyezkedés és környezet:
Az ingatlan egy csendes mellékutcában található, ugyanakkor minden fontos kiszolgáló egység – iskola, óvoda, piac és tömegközlekedés – pár perc sétára elérhető.

Az ingatlan kulcsrakész állapotban kerül átadásra.

Várható átadás: 2026 2.-3. negyedév.

Megbízható, precíz kivitelező által épített, exkluzív otthon, amely minden igényt kielégít.

Hívjon most a részletekért, és tekintse meg személyesen!

TANÁCSADÁSSAL, SZÁMOS BANK AJÁNLATÁVAL ÉS AZ ÚJ CSOK PLUSZ FOLYÓSÍTÁSÁVAL VÁRJA ÜGYFELEIT!

Hirdetés feltöltve: 2025. 10. 02. Utoljára módosítva: 2025. 11. 02.

3 szobás ikerházak ára Gyömrőn

Ebből az összehasonlításból megtudhatod, hogyan viszonyul a lakás ára a környékbeli ikerházak átlagos árához. Ez nem azt jelenti, hogy ennyivel olcsóbb vagy drágább, mint amennyit a lakás ér, hanem hogy ennyivel tér el a környékbeli átlagtól.

Ennek a m² ára
Gyömrő m² ár
1263 e Ft
1106 e Ft -14%
Ennek az ára
Gyömrő átlagár
109.9 M Ft m Ft
88.5 m Ft -24%

Az ingatlan elhelyezkedése

Cím: Gyömrő

Eladó ingatlanok a környékről

Eladó ikerház
Eladó ikerház

Pusztazámor

55 M Ft
10 szoba
470 m2
Eladó ikerház
Eladó ikerház

Gyömrő

79.9 M Ft
3 szoba
76 m2
Eladó ikerház
Eladó ikerház

Gyömrő

79.9 M Ft
3 szoba
76 m2
Eladó ikerház
Eladó ikerház

Dunakeszi

169.5 M Ft
4 szoba
110 m2
Eladó ikerház
Eladó ikerház

Gyömrő

79.9 M Ft
3 szoba
76 m2
Eladó ikerház
Eladó ikerház

Pécel, Pécel - kertváros

127 M Ft
4 szoba
125 m2
Eladó ikerház
Eladó ikerház

Szentendre

179 M Ft
5 + 1 szoba
147 m2
Eladó ikerház
Eladó ikerház

Pécel

149.9 M Ft
5 szoba
306 m2
Eladó ikerház
Eladó ikerház

Üröm

249.9 M Ft
4 szoba
154 m2
Eladó ikerház
Eladó ikerház

Pomáz

129.5 M Ft
4 szoba
100 m2
Eladó ikerház
Eladó ikerház

Gyömrő

79.9 M Ft
3 szoba
76 m2
Eladó téglalakás
Eladó téglalakás

Gyömrő

79.8 M Ft
3 szoba
75 m2
Eladó ikerház
Eladó ikerház

Gyömrő

79.9 M Ft
3 szoba
76 m2
Eladó ikerház
Eladó ikerház

Érd, Érdligeten található utca

64.9 M Ft
4 szoba
112 m2
Eladó ikerház
Eladó ikerház

Gyömrő, Wekerle utca

86.9 M Ft
1 + 3 szoba
80 m2
Eladó családi ház
Eladó családi ház

Maglód

109.99 M Ft
6 szoba
179 m2
Eladó ikerház
Eladó ikerház

Solymár

150 M Ft
4 + 2 szoba
252 m2
Eladó ikerház
Eladó ikerház

Mogyoród

135 M Ft
5 szoba
137 m2
Eladó családi ház
Eladó családi ház

Dánszentmiklós

36 M Ft
3 szoba
86 m2
Eladó mezogazdasagi ingatlan
Eladó mezogazdasagi ingatlan

Tatárszentgyörgy

400 M Ft
6 szoba
Eladó ikerház
Eladó ikerház

Vác

96.5 M Ft
4 + 1 szoba
129 m2
Eladó ikerház
Eladó ikerház

Vác

94.5 M Ft
4 + 1 szoba
126 m2
Eladó ikerház
Eladó ikerház

Gyömrő

33.5 M Ft
1 szoba
36 m2
Eladó ikerház
Eladó ikerház

Gyömrő

79.9 M Ft
3 szoba
76 m2

Falusi CSOK ingatlanok

Eladó családi ház
Eladó családi ház

Abaújszántó

19.99 M Ft
3 szoba
84 m2
Eladó családi ház
Eladó családi ház

Somogysárd

31 M Ft
3 szoba
68 m2
Eladó családi ház
Eladó családi ház

Hernádnémeti

18.9 M Ft
2 szoba
62 m2
Eladó családi ház
Eladó családi ház

Elek

18 M Ft
4 szoba
180 m2
Eladó családi ház
Eladó családi ház

Enese

82.9 M Ft
4 szoba
90 m2
Eladó családi ház
Eladó családi ház

Mezőzombor

19.99 M Ft
3 szoba
91 m2
Eladó családi ház
Eladó családi ház

Poroszló, Dobosok útja 8

18.94 M Ft
1 + 1 szoba
116 m2
Eladó téglalakás
Eladó téglalakás

Pécsvárad, Kossuth Lajos utca

64.99 M Ft
3 szoba
89 m2