BAM Living

Eladó ikerház
Gyál

+ 6 kép 1/9
149 900 000 Ft149.9 M Ft 1 019 728 Ft/m2
5 szoba
147 m²
építés éve:2026

Részletes adatok

Telekméret: 236 m2
Fűtés: Egyéb
Energetikai besorolás: Nem adta meg a hirdető

Az OTP Bank lakáshitel ajánlataFizetett hirdetés

+36 1 690
Polonkai-Gyenes Kincső Csilla
referens

Érdekel az OTP Bank kedvezményes lakáshitel ajánlata? *

* A kérdésre „Igen” válasz bejelölése esetén, az „Üzenet küldése” gombra kattintva kijelentem, hogy az OTP Bank Nyrt. Adatkezelési tájékoztatójának tartalmát megismertem és tudomásul vettem.

Eladó ikerház leírása

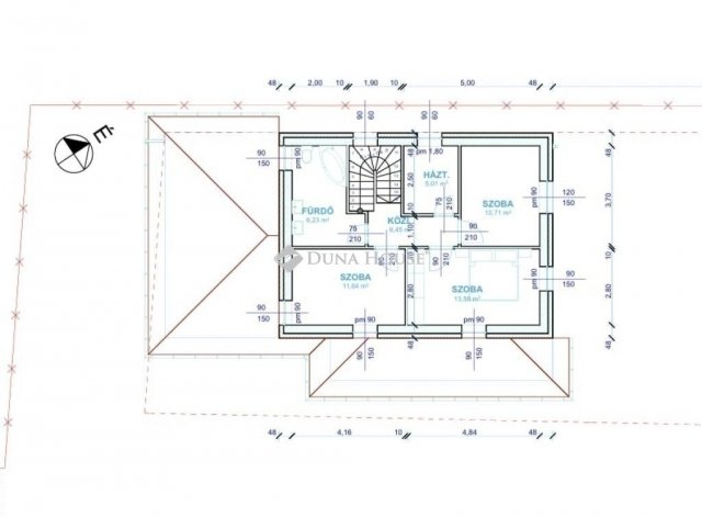
Eladásra kínálunk Gyál kedvelt, Gyálligeti részén egy modern, újépítésű családi házat, amely korszerű műszaki tartalommal és átgondolt belső elrendezéssel készül.Az ingatlan korszerű Viablokk falazóelemekből épül, 15 cm vastag homlokzati hőszigeteléssel és 30 cm födémszigeteléssel, így energetikailag kiemelkedően hatékony otthon lesz. A háromrétegű, hatlégkamrás, hőszigetelt nyílászárók tovább növelik a komfortérzetet és csökkentik a rezsiköltségeket. A tetőt időtálló betoncserép fedi.A fűtésről modern 10kw-os hőszivattyús rendszer gondoskodik padlófűtéssel, míg a használati melegvizet 2 villanybojler biztosítja. A nappaliban klíma kiállás kerül kialakításra, valamint a biztonságról kamerarendszer és riasztó gondoskodik.A földszinten tágas, amerikai konyhás nappali kap helyet, előtérrel, zuhanyzós fürdőszobával, egy külön szobával, kamrával, valamint egy fűtött garázzsal. Az emeleti szinten három kényelmes hálószoba, egy fürdőszoba és egy praktikus háztartási helyiség kerül kialakításra, így a ház ideális választás lehet akár nagyobb család számára is.A belső burkolatok 5.000 Ft/m² értékhatárig választhatók, a beltéri ajtók kilinccsel és kiegészítőkkel bruttó 80.000 Ft/db értékben, a csaptelepek és mosdók pedig 20.000 Ft/db keretösszegig választhatók, így a leendő tulajdonos saját ízlésére szabhatja otthonát.A várható átadás 2026 4. negyedév végén esedékes.Ha egy energiatakarékos, modern kialakítású, jól megközelíthető, mégis nyugodt környezetben épülő otthont keres Gyál egyik legkedveltebb részén, ez az ingatlan kiváló választás lehet.Keressen bizalommal a hét bármely napján!

Hirdetés feltöltve: 2026. 04. 23. Utoljára módosítva: 2026. 05. 15.

5 szobás ikerházak ára Gyálon

Ebből az összehasonlításból megtudhatod, hogyan viszonyul a lakás ára a környékbeli ikerházak átlagos árához. Ez nem azt jelenti, hogy ennyivel olcsóbb vagy drágább, mint amennyit a lakás ér, hanem hogy ennyivel tér el a környékbeli átlagtól.

Ennek a m² ára
Gyál m² ár
1020 e Ft
944 e Ft -8%
Ennek az ára
Gyál átlagár
149.9 M Ft m Ft
130.7 m Ft -15%

Az ingatlan elhelyezkedése

Cím: Gyál

Eladó ikerházak a környékről

Szentendre
Eladó ikerház

Szentendre

179 M Ft
5 + 1 szoba
147 m²
Szentendre
Eladó ikerház

Szentendre

718 M Ft
10 + 2 szoba
578 m²
Gyál
Eladó ikerház

Gyál

96 M Ft
4 szoba
95 m²
Gyál
Eladó ikerház

Gyál

127.99 M Ft
5 szoba
116 m²
Gyál
Eladó ikerház

Gyál

113.9 M Ft
4 szoba
122 m²
Érd
Eladó ikerház

Érd

177.7 M Ft
7 szoba
181 m²
Gyál
Eladó ikerház

Gyál

126.99 M Ft
5 szoba
137 m²
Herceghalom
Eladó ikerház

Herceghalom

148 M Ft
5 szoba
134 m²
Gyál
Eladó ikerház

Gyál

113.99 M Ft
5 szoba
101 m²
Gyál
Eladó ikerház

Gyál

38.5 M Ft
2 szoba
49 m²
Pomáz
Eladó ikerház

Pomáz

129.5 M Ft
4 szoba
100 m²
Nagytarcsa
Eladó ikerház

Nagytarcsa

119.9 M Ft
4 szoba
103 m²
Gyál
Eladó ikerház

Gyál

113.9 M Ft
5 szoba
122 m²
Gyál
Eladó ikerház

Gyál

104.9 M Ft
3 szoba
97 m²
Pécel, Pécel - kertváros
Eladó ikerház

Pécel

127 M Ft
4 szoba
125 m²
Diósd
Eladó ikerház

Diósd

206.25 M Ft
5 szoba
184 m²
Gyál
Eladó ikerház

Gyál

149 M Ft
6 szoba
150 m²
Gyál
Eladó ikerház

Gyál

109 M Ft
4 + 2 szoba
173 m²
Gyál
Eladó ikerház

Gyál

113.9 M Ft
5 szoba
122 m²
Dunakeszi
Eladó ikerház

Dunakeszi

178 M Ft
6 szoba
140 m²
Gyál
Eladó ikerház

Gyál

112.99 M Ft
4 szoba
122 m²
Gyál
Eladó ikerház

Gyál

113.99 M Ft
4 szoba
122 m²
Vácrátót
Eladó ikerház

Vácrátót

94.9 M Ft
2 + 3 szoba
108 m²
Vácrátót
Eladó ikerház

Vácrátót

99.9 M Ft
3 + 2 szoba
112 m²

Falusi CSOK ingatlanok

Bakonyszentlászló
Eladó családi ház

Bakonyszentlászló

48.5 M Ft
3 szoba
103 m²
Kétegyháza
Eladó családi ház

Kétegyháza

21 M Ft
3 szoba
105 m²
Végegyháza
Eladó családi ház

Végegyháza

62.9 M Ft
4 + 1 szoba
150 m²
Tass
Eladó családi ház

Tass

37 M Ft
2 szoba
75 m²
Hegyeshalom, Margaréta utca 12
Eladó téglalakás

Hegyeshalom

50.09 M Ft
2 szoba
43 m²
Szentmártonkáta
Eladó családi ház

Szentmártonkáta

59.99 M Ft
6 szoba
117 m²
Nagykarácsony
Eladó családi ház

Nagykarácsony

34.9 M Ft
3 szoba
112 m²
Balatonszemes
Eladó téglalakás

Balatonszemes

110.9 M Ft
2 szoba
0 m²