BAM Living

Eladó ikerház
Gyál

+ 6 kép 1/9
144 900 000 Ft144.9 M Ft 985 714 Ft/m2
5 szoba
147 m²
építés éve:2026

Részletes adatok

Telekméret: 198 m2
Fűtés: Egyéb
Energetikai besorolás: Nem adta meg a hirdető

Az OTP Bank lakáshitel ajánlataFizetett hirdetés

3637999383
Szeleczkiné Trapp Ilona
referens

Érdekel az OTP Bank kedvezményes lakáshitel ajánlata? *

* A kérdésre „Igen” válasz bejelölése esetén, az „Üzenet küldése” gombra kattintva kijelentem, hogy az OTP Bank Nyrt. Adatkezelési tájékoztatójának tartalmát megismertem és tudomásul vettem.

Eladó ikerház leírása

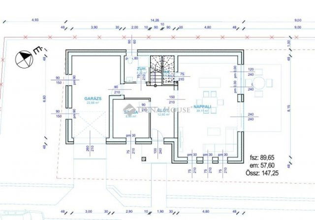
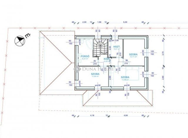
Eladásra kínálunk Gyál kedvelt, Gyálligeti részén egy modern, újépítésű családi házat, amely korszerű műszaki tartalommal és átgondolt belső elrendezéssel készül.Az ingatlan korszerű Viablokk falazóelemekből épül, 15 cm vastag homlokzati hőszigeteléssel és 30 cm födémszigeteléssel, így energetikailag kiemelkedően hatékony otthon lesz. A háromrétegű, hatlégkamrás, hőszigetelt nyílászárók tovább növelik a komfortérzetet és csökkentik a rezsiköltségeket. A tetőt időtálló betoncserép fedi.A fűtésről modern 10kw-os hőszivattyús rendszer gondoskodik padlófűtéssel, míg a használati 2 melegvizet villanybojler biztosítja. A nappaliban klíma kiállás kerül kialakításra, valamint a biztonságról kamerarendszer és riasztó gondoskodik.A földszinten tágas, amerikai konyhás nappali kap helyet, előtérrel, zuhanyzós fürdőszobával, egy külön szobával, kamrával, valamint egy fűtött garázzsal. Az emeleti szinten három kényelmes hálószoba, egy fürdőszoba és egy praktikus háztartási helyiség kerül kialakításra, így a ház ideális választás lehet akár nagyobb család számára is.A belső burkolatok 5.000 Ft/m² értékhatárig választhatók, a beltéri ajtók kilinccsel és kiegészítőkkel bruttó 80.000 Ft/db értékben, a csaptelepek és mosdók pedig 20.000 Ft/db keretösszegig választhatók, így a leendő tulajdonos saját ízlésére szabhatja otthonát.A várható átadás 2026 4. negyedév végén esedékes.Ha egy energiatakarékos, modern kialakítású, jól megközelíthető, mégis nyugodt környezetben épülő otthont keres Gyál egyik legkedveltebb részén, ez az ingatlan kiváló választás lehet.Keressen bizalommal a hét bármely napján!

Referencia szám: HZ094493

Hirdetés feltöltve: 2026. 03. 03. Utoljára módosítva: 2026. 05. 12.

5 szobás ikerházak ára Gyálon

Ebből az összehasonlításból megtudhatod, hogyan viszonyul a lakás ára a környékbeli ikerházak átlagos árához. Ez nem azt jelenti, hogy ennyivel olcsóbb vagy drágább, mint amennyit a lakás ér, hanem hogy ennyivel tér el a környékbeli átlagtól.

Ennek a m² ára
Gyál m² ár
986 e Ft
944 e Ft -4%
Ennek az ára
Gyál átlagár
144.9 M Ft m Ft
130.7 m Ft -11%

Az ingatlan elhelyezkedése

Cím: Gyál

Eladó ikerházak a környékről

Gyál
Eladó ikerház

Gyál

112.99 M Ft
4 szoba
122 m²
Gyál
Eladó ikerház

Gyál

114.99 M Ft
5 szoba
0 m²
Pécel, Pécel - kertváros
Eladó ikerház

Pécel

127 M Ft
4 szoba
125 m²
Gyál
Eladó ikerház

Gyál

113.99 M Ft
5 szoba
101 m²
Gyál
Eladó ikerház

Gyál

126.99 M Ft
5 szoba
137 m²
Érd
Eladó ikerház

Érd

177.7 M Ft
7 szoba
181 m²
Gyál
Eladó ikerház

Gyál

126.99 M Ft
4 szoba
137 m²
Gyál
Eladó ikerház

Gyál

126.99 M Ft
4 szoba
136 m²
Diósd
Eladó ikerház

Diósd

213.46 M Ft
5 szoba
186 m²
Diósd
Eladó ikerház

Diósd

206.25 M Ft
5 szoba
184 m²
Gyál
Eladó ikerház

Gyál

104.9 M Ft
3 szoba
97 m²
Pécel
Eladó ikerház

Pécel

149.9 M Ft
5 szoba
306 m²
Gyál
Eladó ikerház

Gyál

113.99 M Ft
4 szoba
122 m²
Gyál
Eladó ikerház

Gyál

149 M Ft
6 szoba
150 m²
Szentendre
Eladó ikerház

Szentendre

359 M Ft
5 + 1 szoba
289 m²
Gyál
Eladó ikerház

Gyál

149 M Ft
6 szoba
150 m²
Gyál
Eladó ikerház

Gyál

38.5 M Ft
2 szoba
49 m²
Gyál
Eladó ikerház

Gyál

113.9 M Ft
5 szoba
122 m²
Vácrátót
Eladó ikerház

Vácrátót

99.9 M Ft
3 + 2 szoba
112 m²
Pécel
Eladó ikerház

Pécel

389 M Ft
11 szoba
430 m²
Gyál
Eladó ikerház

Gyál

126.99 M Ft
5 szoba
137 m²
Mogyoród
Eladó ikerház

Mogyoród

135 M Ft
5 szoba
137 m²
Gyál
Eladó ikerház

Gyál

96 M Ft
4 szoba
95 m²
Gyál
Eladó ikerház

Gyál

126.99 M Ft
5 szoba
137 m²

Falusi CSOK ingatlanok

Tótszentmárton
Eladó családi ház

Tótszentmárton

31.5 M Ft
5 szoba
130 m²
Bakonyszentkirály
Eladó családi ház

Bakonyszentkirály

99.99 M Ft
5 szoba
126 m²
Kiszombor, Óbébai utca
Eladó családi ház

Kiszombor

32.9 M Ft
4 szoba
140 m²
Csabacsűd
Eladó családi ház

Csabacsűd

21 M Ft
3 szoba
125 m²
Hegyeshalom, Margaréta utca 12
Eladó téglalakás

Hegyeshalom

46.91 M Ft
2 szoba
43 m²
Nagyszénás
Eladó családi ház

Nagyszénás

14 M Ft
3 szoba
81 m²
Tóalmás
Eladó családi ház

Tóalmás

38.9 M Ft
3 szoba
62 m²
Ásványráró
Eladó családi ház

Ásványráró

42.5 M Ft
703 m²
69 m²