Seven Pearl

Eladó ikerház
Gödöllő

134 900 000 Ft134.9 M Ft 899 333 Ft/m2
4 szoba
150 m2
építés éve:2026

Részletes adatok

Telekméret: 400 m2
Fűtés: Egyéb
Emelet: földszint
Parkolás: Garázs
Közmű: Víz, Villany, Csatorna
Energetikai besorolás: Nem adta meg a hirdető

Az OTP Bank lakáshitel ajánlataFizetett hirdetés

+36 20 334
Kiss Jutka
referens

Érdekel az OTP Bank kedvezményes lakáshitel ajánlata? *

* A kérdésre „Igen” válasz bejelölése esetén, az „Üzenet küldése” gombra kattintva kijelentem, hogy az OTP Bank Nyrt. Adatkezelési tájékoztatójának tartalmát megismertem és tudomásul vettem.

Eladó ikerház leírása

Eladó Gödöllő keresett részén ÚJ ÉPÍTÉSŰ, CSAK A GARÁZSOKNÁL ÉRINTKEZŐ ikerház.

BERUHÁZÓI ÁRON!

Ez a kiváló elhelyezkedésű ikerház Gödöllő egyik legkedveltebb részén található, tágas terei és modern elrendezése ideális választás családok számára, akik nyugalomra vágynak.

Folyamatban lévő építkezés, nyári átadás!

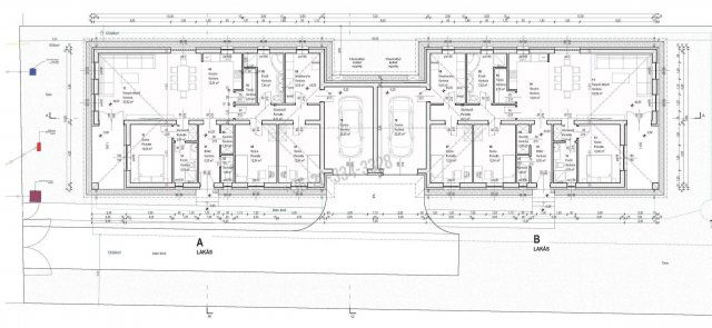
A ház a gödöllői kastély közelében, csendes, rendezett utcában épül, lakásonként nettó 150 nm-es alapterülettel, praktikus belső kialakítással, élhető terekkel:
-48 nm-es amerikai konyhás nappali, 3 szoba (12.5nm-esek), 2 fürdőszoba, háztartási helyiség, tároló, gardrób, vendég WC, 21 nm-es garázs, 10 nm-es terasz.

Főbb műszaki paraméterek:
-30-as Porotherm X-Therm tégla falazat, 15 cm-es grafitos szigeteléssel,
-beton födém, beton cserépfedés,
-3 rétegű, hőszigetelt üvegezéső nyílászárók,
-hőszivattyús fűtés, padlófűtéssel, fürdőszobákban törölköző szárítóval kiegészítve,
-választható burkolatok, szaniterek, belső ajtók.

Az első „A” lakáshoz tartozó telek cca. 400 nm, ára: 134.9MFt,
a hátsó „B” lakáshoz nagyobb telek tartozik, ennek ára: 137.9MFt.

Számos referenciával rendelkező, megbízható kivitelező!

Hívjon a részletekért, a részletes műszaki tartalomért.

Irodánk ÚJ ÉPÍTÉSŰ ingatlanok specialistája, felkészült értékesítőkkel!
Jogi háttérrel (kedvező díjazással) és az egyik legjobb, bank semleges HITELKÖZVETÍTŐVEL segítjük vásárlását.
Hitelszakértőnk teljes körű ügyintézéssel áll Vevőink rendelkezésére, legyen szó OTTHON START, CSOK+, BABAVÁRÓ vagy a legjobb piaci hitelről.
Új építésű ingatlanjainkat BERUHÁZÓI ÁRON értékesítjük!

Amennyiben értékesíteni kívánja ingatlanát, irodánk egyedi, kedvező ajánlattal áll rendelkezésére!

Hirdetés feltöltve: 2026. 01. 21.

4 szobás ikerházak ára Gödöllőn

Ebből az összehasonlításból megtudhatod, hogyan viszonyul a lakás ára a környékbeli ikerházak átlagos árához. Ez nem azt jelenti, hogy ennyivel olcsóbb vagy drágább, mint amennyit a lakás ér, hanem hogy ennyivel tér el a környékbeli átlagtól.

Ennek a m² ára
Gödöllő m² ár
899 e Ft
1037 e Ft 13%
Ennek az ára
Gödöllő átlagár
134.9 M Ft m Ft
139.9 m Ft 4%

Az ingatlan elhelyezkedése

Cím: Gödöllő

Eladó ikerházak a környékről

Eladó ikerház
Eladó ikerház

Dunakeszi

149 M Ft
1 + 4 szoba
127 m2
Eladó ikerház
Eladó ikerház

Gödöllő

119.9 M Ft
4 szoba
110 m2
Eladó ikerház
Eladó ikerház

Gödöllő

144.65 M Ft
5 szoba
137 m2
Eladó ikerház
Eladó ikerház

Gödöllő

124.9 M Ft
5 szoba
130 m2
Eladó ikerház
Eladó ikerház

Pécel, Pécel - kertváros

127 M Ft
4 szoba
125 m2
Eladó ikerház
Eladó ikerház

Szentendre, Szentendre

398 M Ft
5 szoba
267 m2
Eladó ikerház
Eladó ikerház

Mogyoród, Fóti út

188 M Ft
6 szoba
182 m2
Eladó ikerház
Eladó ikerház

Gödöllő

144.65 M Ft
5 szoba
137 m2
Eladó ikerház
Eladó ikerház

Szentendre

718 M Ft
10 + 2 szoba
578 m2
Eladó ikerház
Eladó ikerház

Gödöllő

112.5 M Ft
4 szoba
128 m2
Eladó ikerház
Eladó ikerház

Pécel, Pécel

144.9 M Ft
6 szoba
200 m2
Eladó ikerház
Eladó ikerház

Vác

149.9 M Ft
5 szoba
202 m2
Eladó ikerház
Eladó ikerház

Gödöllő

168 M Ft
4 szoba
150 m2
Eladó ikerház
Eladó ikerház

Pécel

149.9 M Ft
5 szoba
306 m2
Eladó ikerház
Eladó ikerház

Szentendre

359 M Ft
5 + 1 szoba
289 m2
Eladó ikerház
Eladó ikerház

Pusztazámor

55 M Ft
10 szoba
470 m2
Eladó ikerház
Eladó ikerház

Gödöllő

79 M Ft
5 szoba
139 m2
Eladó ikerház
Eladó ikerház

Gödöllő

114.9 M Ft
4 szoba
105 m2
Eladó ikerház
Eladó ikerház

Vác

175.356 M Ft
5 szoba
165 m2
Eladó ikerház
Eladó ikerház

Szentendre

179 M Ft
5 + 1 szoba
147 m2
Eladó ikerház
Eladó ikerház

Gödöllő

144.65 M Ft
5 szoba
137 m2
Eladó ikerház
Eladó ikerház

Gödöllő

164 M Ft
4 szoba
152 m2
Eladó ikerház
Eladó ikerház

Gödöllő

150 M Ft
5 szoba
148 m2
Eladó ikerház
Eladó ikerház

Vác

175.356 M Ft
5 szoba
165 m2

Falusi CSOK ingatlanok

Eladó családi ház
Eladó családi ház

Tabdi

95 M Ft
45 szoba
1490 m2
Eladó családi ház
Eladó családi ház

Szólád

99.9 M Ft
6 + 1 szoba
245 m2
Eladó családi ház
Eladó családi ház

Tabajd

79 M Ft
4 szoba
82 m2
Eladó ikerház
Eladó ikerház

Balatonkeresztúr, Bolygó utca

59.9 M Ft
4 szoba
83 m2
Eladó családi ház
Eladó családi ház

Dunaalmás

52.5 M Ft
3 + 1 szoba
140 m2
Eladó családi ház
Eladó családi ház

Mencshely

99 M Ft
3 szoba
126 m2
Eladó családi ház
Eladó családi ház

Magyarszék

48.5 M Ft
3 + 1 szoba
86 m2
Eladó családi ház
Eladó családi ház

Tab

14.9 M Ft
3 szoba
110 m2