Aerogate Homes

Eladó ikerház
Fót

+ 12 kép 1/15
137 500 000 Ft137.5 M Ft 1 082 677 Ft/m2
4 szoba
127 m2
építés éve:2026

Részletes adatok

Telekméret: 345 m2
Fűtés: Egyéb
Parkolás: Garázs
Közmű: Víz, Villany, Csatorna
Energetikai besorolás: Nem adta meg a hirdető

Az OTP Bank lakáshitel ajánlataFizetett hirdetés

+36 70 418
Kovács Péter
referens

Érdekel az OTP Bank kedvezményes lakáshitel ajánlata? *

* A kérdésre „Igen” válasz bejelölése esetén, az „Üzenet küldése” gombra kattintva kijelentem, hogy az OTP Bank Nyrt. Adatkezelési tájékoztatójának tartalmát megismertem és tudomásul vettem.

Eladó ikerház leírása

Fót legújabb, panorámás lakóparkjában épülő, ikerházak eladók!!

A lakások kizárólag a garázsokkal kapcsolódnak, így a lakótérből áthallás nincs, ezáltal szinte önálló családi ház érzetet biztosíthat!

CÉGES ÉPÍTKEZÉS, a 2024-től aktuális állami támogatások valamint kedvezményes, kamattámogatott hitelek felvehetőek – akár a 3%-os OTTHON START hitel, CSOK PLUS, babaváró is igényelhető, az ügyintézésben díjmentesen segítünk!
Az építő munkájára jellemző a megbízhatóság és igényesség, leinformálható, referencia házai megtekinthetők.

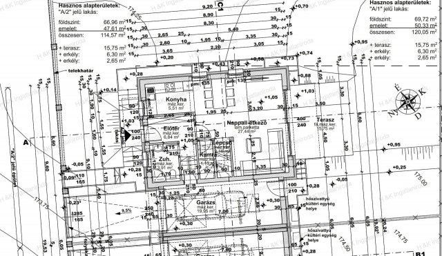
Az 1200 nm-es telekre két ikerház épül.
Jelen hirdetésben az A épület 2-es lakása szerepel, mely hasznos lakóterülete a garázzsal 114,57 nm + terasz + erkélyek, amerikai-konyhás nappali + 3 szobás, dupla-komfortos, 345 nm-es telekrésszel.

A földszint 66,96 nm a garázzsal + terasz: amerikai konyhás nappali + fürdőszoba zuhanyzóval + kamra + előtér + terasz
Az emelet 47,61 nm + 2 erkély: 3 hálószoba (mindegyik erkélykapcsolatos), fürdőszoba káddal, közlekedő, két erkély

Rövid műszaki tartalom:
A főfalak Porotherm 30 N+F téglából épülnek, a válaszfalak pedig Porotherm 10 N+F téglából, 15 cm-es homlokzati szigeteléssel.
Prémium nyílászárók kerülnek beépítésre, kitűnő hő- és hangszigeteléssel
A fűtés modern hőszivattyús rendszerrel kerül kiépítésre, a hő leadás padlófűtéssel történik.

Az ingatlan kulcsrakész állapotban kerül átadásra, konyhabútor nélkül. Belső nyílászárók és a burkolatok választhatók, a belső műszaki tartalomban megjelölt összegig a vételár részét képezik.

A projekt részletes adataiért, valamint a többi lakással kapcsolatban is várjuk hívását.

Ára: 137,5 M Ft
Azonosító: 4639/A2

Hirdetés feltöltve: 2026. 01. 06. Utoljára módosítva: 2026. 01. 07.

4 szobás ikerházak ára Fóton

Ebből az összehasonlításból megtudhatod, hogyan viszonyul a lakás ára a környékbeli ikerházak átlagos árához. Ez nem azt jelenti, hogy ennyivel olcsóbb vagy drágább, mint amennyit a lakás ér, hanem hogy ennyivel tér el a környékbeli átlagtól.

Ennek a m² ára
Fót m² ár
1083 e Ft
1089 e Ft 1%
Ennek az ára
Fót átlagár
137.5 M Ft m Ft
122 m Ft -13%

Az ingatlan elhelyezkedése

Cím: Fót

Eladó ikerházak a környékről

Eladó ikerház
Eladó ikerház

Szentendre

359 M Ft
5 + 1 szoba
289 m2
Eladó ikerház
Eladó ikerház

Fót

121 M Ft
4 szoba
111 m2
Eladó ikerház
Eladó ikerház

Fót

340 M Ft
3 szoba
267 m2
Eladó ikerház
Eladó ikerház

Fót

115 M Ft
4 szoba
108 m2
Eladó ikerház
Eladó ikerház

Dunakeszi

149 M Ft
1 + 4 szoba
127 m2
Eladó ikerház
Eladó ikerház

Üröm

220 M Ft
4 szoba
130 m2
Eladó ikerház
Eladó ikerház

Fót

120 M Ft
4 szoba
108 m2
Eladó ikerház
Eladó ikerház

Fót

120 M Ft
5 szoba
122 m2
Eladó ikerház
Eladó ikerház

Vác

175.356 M Ft
5 szoba
165 m2
Eladó ikerház
Eladó ikerház

Fót

74.9 M Ft
2 + 2 szoba
108 m2
Eladó ikerház
Eladó ikerház

Érd, Érdligeten található utca

64.9 M Ft
4 szoba
112 m2
Eladó ikerház
Eladó ikerház

Diósd

206.25 M Ft
5 szoba
184 m2
Eladó ikerház
Eladó ikerház

Fót

115 M Ft
4 szoba
108 m2
Eladó ikerház
Eladó ikerház

Fót

99.9 M Ft
3 szoba
99 m2
Eladó ikerház
Eladó ikerház

Fót

119.99 M Ft
4 szoba
120 m2
Eladó ikerház
Eladó ikerház

Szentendre, Szentendre

398 M Ft
5 szoba
267 m2
Eladó ikerház
Eladó ikerház

Fót

120 M Ft
4 szoba
108 m2
Eladó ikerház
Eladó ikerház

Pécel, Pécel - kertváros

127 M Ft
4 szoba
125 m2
Eladó ikerház
Eladó ikerház

Vác

96.5 M Ft
4 + 1 szoba
129 m2
Eladó ikerház
Eladó ikerház

Fót

109 M Ft
3 szoba
89 m2
Eladó ikerház
Eladó ikerház

Pilisjászfalu

70.563 M Ft
4 szoba
61 m2
Eladó ikerház
Eladó ikerház

Pusztazámor

55 M Ft
10 szoba
470 m2
Eladó ikerház
Eladó ikerház

Diósd

213.46 M Ft
5 szoba
186 m2
Eladó ikerház
Eladó ikerház

Szentendre

179 M Ft
5 + 1 szoba
147 m2

Falusi CSOK ingatlanok

Eladó családi ház
Eladó családi ház

Balatonfenyves

430 M Ft
4 szoba
274 m2
Eladó családi ház
Eladó családi ház

Devecser

42.9 M Ft
3 szoba
100 m2
Eladó családi ház
Eladó családi ház

Annavölgy

44 M Ft
3 szoba
84 m2
Eladó családi ház
Eladó családi ház

Enese

72.025 M Ft
4 szoba
75 m2
Eladó családi ház
Eladó családi ház

Tápszentmiklós

64.9 M Ft
5 szoba
110 m2
Eladó családi ház
Eladó családi ház

Kétpó

14.9 M Ft
1 + 2 szoba
86 m2
Eladó családi ház
Eladó családi ház

Bakonynána

44.999 M Ft
4 szoba
129 m2
Eladó családi ház
Eladó családi ház

Balatonkeresztúr

71.95 M Ft
5 szoba
128 m2