Pesti Házak

Eladó ikerház
Fót

+ 13 kép 1/16
144 500 000 Ft144.5 M Ft 1 086 466 Ft/m2
5 szoba
133 m2
építés éve:2026

Részletes adatok

Telekméret: 349 m2
Fűtés: Egyéb
Parkolás: Kocsibeálló
Közmű: Víz, Villany, Csatorna, Szélessáv, KábelTV
Energetikai besorolás: Nem adta meg a hirdető

Az OTP Bank lakáshitel ajánlataFizetett hirdetés

+36 30 948
Harai és Társai Kereskedelmi és Szolgáltató Betéti Társaság
Harai Ingatlaniroda

Érdekel az OTP Bank kedvezményes lakáshitel ajánlata? *

* A kérdésre „Igen” válasz bejelölése esetén, az „Üzenet küldése” gombra kattintva kijelentem, hogy az OTP Bank Nyrt. Adatkezelési tájékoztatójának tartalmát megismertem és tudomásul vettem.

Eladó ikerház leírása

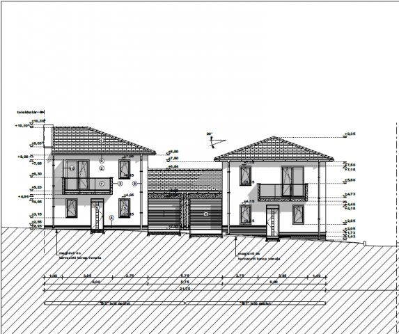
FÓT legújabb, PANORÁMÁS, minden igényt kielégítő ( viacoloros utak, járdák, napelemes közvilágítás ) lakóparkjában a CSILLAGDOMBON IKER családi ház építése kezdődött , 2026 tavaszi átadással.
Ez a hirdetés a B1- B2-es jelű ikerházra vonatkozik. Alapterületben és árban teljesen megegyeznek. Mindkettő nappali + 4 szobás!!
Az épület kétszintes ( nem tetőteres ) és kizárólag a garázsoknál ér össze, tehát áthallás nincs. Lekerített saját telek 274 - 349 m2.
Lakásonként a nettó lakótér 133 m2 a garázzsal együtt + 15,75 m2 terasz, + 6,3 m2 erkély + 3,55 m2 erkély.
Mindkét lakás alapterülete egyforma és helyiséglistája az alábbi:
Földszinten:
garázs 19,95 m2,
előtér 7,2 m2,
nappali-étkező 24,68 m2,
konyha 7,32 m2,
kamra 1,15 m2
zuhanyzó 4,37 m2
lépcső 2,16 m2
szoba 9,0 m2
Emeleten:
közlekedő 5,52 m2
fürdő 6,10 m2
WC 1,75 m2
szoba 14,70 m2
szoba 13,08 m2
szoba 11,85 m2
lépcső 4 m2
+terasz 15,75 m2
+erkély 6,30 m2
+erkély 3,55 m2
Műszakiból néhány dolog:
Főfalak: porotherm 30 N+F tégla falazat+10 cm-es dryvit grafitos szigetelés
Válaszfalak: porotherm 10 N+F
Nyílászárók: fehér színű műanyag szerkezetűek, hat légkamrásak, 3 rétegű hőszigetelt üvegezéssel.
Garázskapu: barna színű szekcionált, elektromos kapu kiállás
Hőszigetelések:földszinti padlóba 10+2 cm vastag EPS, homlokzatokon 15 cm vastag normál EPS, lábazatokra 14 cm vastag XPS, az emelet feletti padlás födémre 25 cm, míg a garázs feletti fa szerkezetű padlásfödémre összesen 30 cm vastag ásványgyapot hőszigetelés kerül.
Fűtés: hőszivattyús, padlófűtéssel.
Dupla komfortos, mindkét szinten fürdőszobák. Panorámás kertkapcsolatos terasz, emeleten a hálószobákból erkélykapcsolatok.

A kivitelező sok-sok referenciával rendelkező, megbízható cég.
Rugalmasan mutatjuk, előzetes egyeztetés mellett hívja a helyi ingatlanost Harai Lajosnét.

Hirdetés feltöltve: 2025. 10. 01. Utoljára módosítva: 2025. 12. 11.

5 szobás ikerházak ára Fóton

Ebből az összehasonlításból megtudhatod, hogyan viszonyul a lakás ára a környékbeli ikerházak átlagos árához. Ez nem azt jelenti, hogy ennyivel olcsóbb vagy drágább, mint amennyit a lakás ér, hanem hogy ennyivel tér el a környékbeli átlagtól.

Ennek a m² ára
Fót m² ár
1086 e Ft
1005 e Ft -8%
Ennek az ára
Fót átlagár
144.5 M Ft m Ft
144.9 m Ft 0%

Az ingatlan elhelyezkedése

Cím: Fót

Eladó ikerházak a környékről

Eladó ikerház
Eladó ikerház

Üröm

249.9 M Ft
4 szoba
154 m2
Eladó ikerház
Eladó ikerház

Veresegyház

145 M Ft
4 szoba
120 m2
Eladó ikerház
Eladó ikerház

Fót

74.9 M Ft
2 + 2 szoba
108 m2
Eladó ikerház
Eladó ikerház

Mogyoród

135 M Ft
5 szoba
137 m2
Eladó ikerház
Eladó ikerház

Pécel, Pécel - kertváros

127 M Ft
4 szoba
125 m2
Eladó ikerház
Eladó ikerház

Pusztazámor

55 M Ft
10 szoba
470 m2
Eladó ikerház
Eladó ikerház

Szentendre

179 M Ft
5 + 1 szoba
147 m2
Eladó ikerház
Eladó ikerház

Dunakeszi

149 M Ft
1 + 4 szoba
127 m2
Eladó ikerház
Eladó ikerház

Fót

109 M Ft
3 szoba
89 m2
Eladó ikerház
Eladó ikerház

Diósd

213.46 M Ft
5 szoba
186 m2
Eladó ikerház
Eladó ikerház

Érd, Érdligeten található utca

64.9 M Ft
4 szoba
112 m2
Eladó ikerház
Eladó ikerház

Fót

340 M Ft
3 szoba
267 m2
Eladó ikerház
Eladó ikerház

Vác

175.356 M Ft
5 szoba
165 m2
Eladó ikerház
Eladó ikerház

Fót

510 M Ft
5 szoba
381 m2
Eladó ikerház
Eladó ikerház

Fót

124.3 M Ft
4 szoba
96 m2
Eladó ikerház
Eladó ikerház

Diósd

206.25 M Ft
5 szoba
184 m2
Eladó ikerház
Eladó ikerház

Fót

124.3 M Ft
4 szoba
96 m2
Eladó ikerház
Eladó ikerház

Fót

115 M Ft
5 szoba
122 m2
Eladó ikerház
Eladó ikerház

Fót

121 M Ft
4 szoba
111 m2
Eladó ikerház
Eladó ikerház

Tahitótfalu

88.9 M Ft
4 szoba
110 m2
Eladó ikerház
Eladó ikerház

Fót

121 M Ft
4 szoba
121 m2
Eladó ikerház
Eladó ikerház

Fót

115 M Ft
4 szoba
108 m2
Eladó ikerház
Eladó ikerház

Mogyoród, Fóti út

188 M Ft
6 szoba
182 m2
Eladó ikerház
Eladó ikerház

Dunaharaszti

124.999 M Ft
4 szoba
105 m2

Falusi CSOK ingatlanok

Eladó családi ház
Eladó családi ház

Jakabszállás

69.99 M Ft
1 + 4 szoba
91 m2
Eladó családi ház
Eladó családi ház

Tápióság

30 M Ft
3 szoba
67 m2
Eladó családi ház
Eladó családi ház

Csót

39.5 M Ft
4 szoba
123 m2
Eladó családi ház
Eladó családi ház

Magyarszék

48.5 M Ft
3 + 1 szoba
86 m2
Eladó családi ház
Eladó családi ház

Újkígyós

19.99 M Ft
2 + 1 szoba
72 m2
Eladó családi ház
Eladó családi ház

Tápióbicske

38 M Ft
3 szoba
50 m2
Eladó családi ház
Eladó családi ház

Tihany, Csokonai utca 78

559 M Ft
8 szoba
340 m2
Eladó családi ház
Eladó családi ház

Devecser

33.9 M Ft
3 szoba
75 m2