Eladó ikerház
Erdőkertes 
Részletes adatok
Az OTP Bank lakáshitel ajánlataFizetett hirdetés
Induló törlesztőrészlet
101 262 Ft /hóTörlesztőrészlet a 13. hónaptól
129 106 Ft /hóInduló törlesztőrészlet
135 016 Ft /hóTörlesztőrészlet a 13. hónaptól
172 142 Ft /hóA tájékoztatás nem teljes körű és nem minősül ajánlattételnek. Az OTP Évnyerő Lakáshitelei 1 éves türelmi idős kölcsönök, amellyel az első 12 hónapban alacsonyabb a havi törlesztőrészlet. A tőke törlesztését a 13. hónaptól kell megkezdeni.
Eladó ikerház leírása
Új építésű ingatlanokra vonatkozó kedvezmények igénybe vehetők!!! /CSOK, támogatott hitel, illeték kedvezmény/.
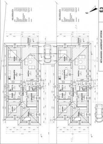
2.ház!!! /Alaprajzon a bal oldali/
Erdőkertesen 1.168 nm telekre épülő egyszintes fedett kocsibeállóval érintkező amerikai konyhás-nappalis+ 4 szobás ikerház eladó!!!
A ház nettó: 112,07 nm
Terasz: 8,40 nm
Telek: 584 nm
Parkolás: zárd udvaron belül
Az ingatlan műszaki tartalma:
-30 pth tégla
-10 cm grafitos dryvit szigetelés
- E gerenda,, beton födém
-tető beton cserép, antracit színben 
-5 légkamrás, 3 rétegű hőszigetelt nyílászáró
Fűtés: 
-hőszivattyú
-padlófűtés
-fürdőszobában törölköző szárítós radiátor 
-klíma kiállás
Műszaki tartalom tartalmazza a szanitereket, beltéri ajtókat, burkolatokat.
Az ingatlan elosztása:
előszoba 3,72 nm
wc 1,75 nm
közlekedő 6,71 nm
nappali 29,27 nm
konyha-étkező 13,80 nm
szoba 12,90 nm
házt.helyiség 5,10 nm
fürdőszoba 5,70 nm
szoba 12,00 nm
szoba 12,24 nm
dolgozó 8,68 nm
terasz 8,40 nm
Infrastruktúrája:található:
Csendes utcában, de közel a buszmegállóhoz, a vonat kb. 15 percre található az ingatlantól.
Hirdetés feltöltve: 2025. 10. 31. Utoljára módosítva: 2025. 10. 31.
5 szobás ikerházak ára Erdőkertesen
Ebből az összehasonlításból megtudhatod, hogyan viszonyul a lakás ára a környékbeli ikerházak átlagos árához. Ez nem azt jelenti, hogy ennyivel olcsóbb vagy drágább, mint amennyit a lakás ér, hanem hogy ennyivel tér el a környékbeli átlagtól.
Az ingatlan elhelyezkedése
Cím: Erdőkertes
 
 
 
 
 
 
 
 
 
 
 
 
 
 
 
 
 
 
 
 
 
 
 
 
 
 
 
 
 
 
 
 
 
 
