Oasis Residence

Eladó ikerház
Érd

+ 5 kép 1/8
179 000 000 Ft179 M Ft 972 826 Ft/m2
5 szoba
184 m²
építés éve:2026

Részletes adatok

Telekméret: 622 m2
Fűtés: Egyéb
Parkolás: Garázs, Kocsibeálló
Közmű: Víz, Villany, Csatorna
Energetikai besorolás: Nem adta meg a hirdető

Az OTP Bank lakáshitel ajánlataFizetett hirdetés

+36 20 582
Otthon Plusz Ingatlaniroda
Otthon Plusz Ingatlan

Érdekel az OTP Bank kedvezményes lakáshitel ajánlata? *

* A kérdésre „Igen” válasz bejelölése esetén, az „Üzenet küldése” gombra kattintva kijelentem, hogy az OTP Bank Nyrt. Adatkezelési tájékoztatójának tartalmát megismertem és tudomásul vettem.

Eladó ikerház leírása

Hivatkozzon erre, kód: 5238

- PRÉMIUM KATEGÓRIA

- ÚJ ÉPÍTÉSŰ IKERHÁZI LAKÁS

- IGÉNYES KIVITELEZÉS, EMELT SZINTŰ MŰSZAKI

- NAPPALI + 4 SZOBA, 2 FÜRDŐSZOBA, NAGY TERASZOK, SAJÁT KERT, 1 GK-S GARÁZS

- HŐSZIVATTYÚ PADLÓFŰTÉSSEL

Érdliget zöldövezeti részén, csendes környezetben kb. 622m2 saját kerttel rendelkező belső kétszintes, nappali + 4 szobás, 2 fürdőszobás + 1 gk-s garázs, összesen 184.46m2-es (teraszok felével) új építésű ikerházi lakás (2-es épület) leköthető igény szerinti befejezéssel.

Várható átadás: 2027. tavasz.

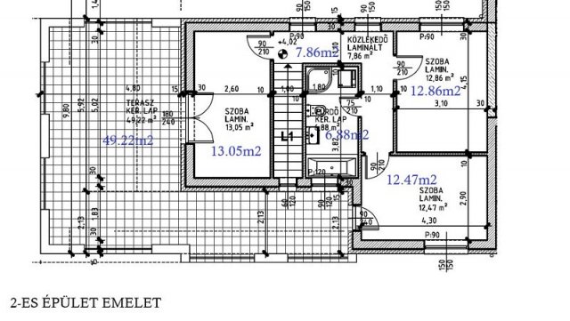
Az ingatlan szintenkénti felosztása a kövtkező:

Földszint (93.76m2 + terasz 25.95m2): előtér (5.48m2), nappali - konyha - étkező (32.56m2), közlekedő (11.97m2), kamra (1m2), wc (1.28m2), fürdőszoba (4.68m2), gépészet (0.99m2), lépcső (4.48m2), szoba (11.57m2), garázs (17.83m2), tároló (1.92m2).

Emelet (53.12m2 + terasz 49.22m2): közlekedő (7.86m2), fürdőszoba + wc (6.88m2), 3 szoba (13.05m2, 12.86m2, 12.47m2).

Szerkezeti leírás: Beton alap. 30-as tégla főfalak + 10cm EPS hőszigetelés, 5cm lábazati szigetelés. 10-es tégla válaszfalak. A külső nyílászárók műanyag szerkezetűek, 3 rétegű 5 légkamrás üvegezéssel ellátva, redőnytokkal (kivéve fürdők és mosókonyha) és szúnyoghálókkal ellátva. A belső nyílászárók dekorfóliás ajtók. Vasbeton födém. Lapostető 20cm szigeteléssel + pvc vízszigetelés.

Műszaki: igény szerinti burkolatok - hideg burkolatok 7000Ft / m2 árig, meleg burkolatok 5000Ft / m2 árig, terasz burkolat 8000Ft / m2 árig, a beltéri ajtók 100.000Ft / db áron választhatók, rejtett tartályos geberit wc, elektromos nagykapu, elektromos garázsajtó, riasztó előkészítés.

Fűtés: Az ingatlan fűtését 14Kw-os hőszivattyú biztosítja, minden helyiségben padlófűtésen keresztül, illetve a fürdőkben felszerelésre kerül törülközőszárítós radiátor is.

Parkolás: 1 gépkocsi számára alkalmas garázsban lehetséges, valamint saját udvaron belül fedetlen-felszíni beálló áll rendelkezésre.

Megközelíthetőség és infrastruktúra: az ingatlan tömegközlekedéstől kiesőbb területen helyezkedik el, ezért legfőképp autóval rendelkező ügyfeleknek ajánljuk. Közintézmények, bevásárlási lehetőségek stb. hamar elérhetők!

További hasonló ingatlanok találhatók még a kínálatunkban!

Szüksége van hitelre? SEGÍTÜNK!

Bankfüggetlen hitel tanácsadónk díjmentesen áll az Ön rendelkezésére! Keressen bizalommal!

A hirdetésben szereplő adatok, információk, képek, alaprajzok stb... tájékoztató jellegűek! Irodánk az esetleges elírásokért felelősséget nem tud vállalni!

Tájékoztatjuk a Tisztelt Érdeklődőket, hogy az ingatlan hirdetésében szereplő telefonszám felhívásával Önök hozzájárulnak személyes adataik (név, telefonszám), a hirdetést feladó -Otthonplusz.hu Kft. - által a bizalmas kezeléshez és nyilvántartáshoz.

Hirdetés feltöltve: 2026. 04. 29. Utoljára módosítva: 2026. 04. 29.

5 szobás ikerházak ára Érden

Ebből az összehasonlításból megtudhatod, hogyan viszonyul a lakás ára a környékbeli ikerházak átlagos árához. Ez nem azt jelenti, hogy ennyivel olcsóbb vagy drágább, mint amennyit a lakás ér, hanem hogy ennyivel tér el a környékbeli átlagtól.

Ennek a m² ára
Érd m² ár
973 e Ft
842 e Ft -16%
Ennek az ára
Érd átlagár
179 M Ft m Ft
154.4 m Ft -16%

Az ingatlan elhelyezkedése

Cím: Érd

Eladó ikerházak a környékről

Érd
Eladó ikerház

Érd

39.9 M Ft
4 szoba
150 m²
Érd
Eladó ikerház

Érd

145 M Ft
5 szoba
155 m²
Érd
Eladó ikerház

Érd

238.9 M Ft
5 szoba
256 m²
Vác
Eladó ikerház

Vác

96.7 M Ft
4 + 1 szoba
126 m²
Érd
Eladó ikerház

Érd

139.9 M Ft
5 szoba
158 m²
Herceghalom
Eladó ikerház

Herceghalom

99 M Ft
4 szoba
106 m²
Érd
Eladó ikerház

Érd

169.9 M Ft
5 szoba
255 m²
Érd
Eladó ikerház

Érd

58 M Ft
2 szoba
64 m²
Érd
Eladó ikerház

Érd

238.9 M Ft
5 szoba
256 m²
Érd
Eladó ikerház

Érd

169.9 M Ft
5 szoba
157 m²
Szentendre
Eladó ikerház

Szentendre

718 M Ft
10 + 2 szoba
578 m²
Pomáz
Eladó ikerház

Pomáz

129.5 M Ft
4 szoba
100 m²
Diósd
Eladó ikerház

Diósd

213.46 M Ft
5 szoba
186 m²
Mogyoród
Eladó ikerház

Mogyoród

129 M Ft
5 szoba
123 m²
Érd
Eladó ikerház

Érd

138 M Ft
5 szoba
125 m²
Érd
Eladó ikerház

Érd

165 M Ft
4 szoba
120 m²
Mogyoród
Eladó ikerház

Mogyoród

135 M Ft
5 szoba
137 m²
Érd
Eladó ikerház

Érd

159 M Ft
4 szoba
138 m²
Érd
Eladó ikerház

Érd

159 M Ft
4 szoba
120 m²
Érd
Eladó ikerház

Érd

84.7 M Ft
4 szoba
130 m²
Szentendre
Eladó ikerház

Szentendre

359 M Ft
5 + 1 szoba
289 m²
Érd
Eladó ikerház

Érd

177.7 M Ft
7 szoba
181 m²
Mogyoród
Eladó ikerház

Mogyoród

135 M Ft
5 szoba
137 m²
Érd, Érdliget - Kutyavár, Ligetszépe út
Eladó ikerház

Érd

149 M Ft
1 szoba
180 m²

Falusi CSOK ingatlanok

Újlengyel
Eladó családi ház

Újlengyel

110 M Ft
4 szoba
121 m²
Hahót, Csányi László utca
Eladó családi ház

Hahót

48 M Ft
4 + 1 szoba
110 m²
Harsány
Eladó családi ház

Harsány

51.9 M Ft
5 szoba
140 m²
Balatonszemes, Ady Endre u
Eladó téglalakás

Balatonszemes

78.9 M Ft
2 szoba
46 m²
Gádoros
Eladó családi ház

Gádoros

25.5 M Ft
4 szoba
140 m²
Bag
Eladó ikerház

Bag

93 M Ft
3 szoba
67 m²
Gellénháza
Eladó családi ház

Gellénháza

22.9 M Ft
2 szoba
68 m²
Nagyszénás, Bajcsy-Zsilinszky utca 60
Eladó családi ház

Nagyszénás

11.7 M Ft
1 + 1 szoba
128 m²