Eladó ikerház
Érd

+ 13 kép 1/16
117 000 000 Ft117 M Ft 806 897 Ft/m2
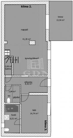
4 szoba
145 m2
építés éve:1980

Részletes adatok

Állapot: Felújított
Telekméret: 200 m2
Fűtés: Egyéb
Parkolás: Kocsibeálló
Energetikai besorolás: Nem adta meg a hirdető

Az OTP Bank lakáshitel ajánlataFizetett hirdetés

+36 20 517
Szőke Lívia
referens

Érdekel az OTP Bank kedvezményes lakáshitel ajánlata? *

* A kérdésre „Igen” válasz bejelölése esetén, az „Üzenet küldése” gombra kattintva kijelentem, hogy az OTP Bank Nyrt. Adatkezelési tájékoztatójának tartalmát megismertem és tudomásul vettem.

Eladó ikerház leírása

Akár Otthon Start Programmal is megvásárolható!

Költözz be már holnap – felújított ikerház Érd szívében!

Megtaláltad, amit keresel: felújított, azonnal költözhető, modern otthon, saját kerttel és szuper elhelyezkedéssel!
Nem kell felújítással bajlódnod – csak hozd a bőröndöd, és már élvezheted is az új otthonod. ✨

145 m² lakótér + kb. 200 m² saját kert, csendes mellékutcában, pár perc sétára boltoktól, iskolától, tömegközlekedéstől.
Ideális választás családoknak, többgenerációs együttéléshez vagy bárkinek, aki nyugalomra és kényelemre vágyik.

Főbb extrák:
✅ Teljeskörű felújítás
✅ Szobánként klíma
✅ 3 háló + nappali + tágas étkező, konyha
✅ 3 WC, külön fürdők
✅ Zárt autóbeálló
✅ Alacsony rezsi

Lokáció: Érd központ – minden gyalog elérhető!
Stop Shop, SPAR, Aldi, vasútállomás, iskola, óvoda – minden itt van a közelben.

Ez az ingatlan ritka kombinációja a minőségnek, elhelyezkedésnek és azonnali költözhetőségnek – ne hagyd ki!

Megtekintés rugalmasan, akár hétvégén is! ...TOVÁBBI, TÖBBEZRES INGATLAN KÍNÁLAT: www.gdn-ingatlan.hu - GDN azonosító: 387220

Hirdetés feltöltve: 2025. 09. 13. Utoljára módosítva: 2025. 09. 17.

4 szobás ikerházak ára Érden

Ebből az összehasonlításból megtudhatod, hogyan viszonyul a lakás ára a környékbeli ikerházak átlagos árához. Ez nem azt jelenti, hogy ennyivel olcsóbb vagy drágább, mint amennyit a lakás ér, hanem hogy ennyivel tér el a környékbeli átlagtól.

Ennek a m² ára
Érd m² ár
807 e Ft
896 e Ft 10%
Ennek az ára
Érd átlagár
117 M Ft m Ft
105.5 m Ft -11%

Az ingatlan elhelyezkedése

Cím: Érd

Eladó ikerházak a környékről

Eladó ikerház
Eladó ikerház

Érd

114.9 M Ft
4 + 1 szoba
160 m2
Eladó ikerház
Eladó ikerház

Dunaharaszti

124.999 M Ft
4 szoba
105 m2
Eladó ikerház
Eladó ikerház

Vác

149.9 M Ft
5 szoba
202 m2
Eladó ikerház
Eladó ikerház

Érd

119.9 M Ft
3 + 3 szoba
160 m2
Eladó ikerház
Eladó ikerház

Érd

139.9 M Ft
5 szoba
210 m2
Eladó ikerház
Eladó ikerház

Tahitótfalu

88.9 M Ft
4 szoba
110 m2
Eladó ikerház
Eladó ikerház

Pécel

149.9 M Ft
5 szoba
306 m2
Eladó ikerház
Eladó ikerház

Szentendre, Szentendre

398 M Ft
5 szoba
267 m2
Eladó ikerház
Eladó ikerház

Pusztazámor

55 M Ft
10 szoba
470 m2
Eladó ikerház
Eladó ikerház

Érd

139.9 M Ft
5 szoba
159 m2
Eladó ikerház
Eladó ikerház

Érd, Érdliget - Kutyavár, Érdligeten található utca

64.9 M Ft
4 szoba
112 m2
Eladó ikerház
Eladó ikerház

Érd

113.9 M Ft
5 szoba
110 m2
Eladó ikerház
Eladó ikerház

Dunakeszi

149 M Ft
1 + 4 szoba
127 m2
Eladó ikerház
Eladó ikerház

Érd

177.7 M Ft
7 szoba
181 m2
Eladó ikerház
Eladó ikerház

Érd

148 M Ft
4 szoba
138 m2
Eladó ikerház
Eladó ikerház

Érd

119 M Ft
4 szoba
115 m2
Eladó ikerház
Eladó ikerház

Érd, Érdliget - Kutyavár, Érdligeten található utca

64.9 M Ft
4 szoba
112 m2
Eladó ikerház
Eladó ikerház

Mogyoród, Fóti út

188 M Ft
6 szoba
182 m2
Eladó ikerház
Eladó ikerház

Solymár

150 M Ft
4 + 2 szoba
252 m2
Eladó ikerház
Eladó ikerház

Érd

113.9 M Ft
5 szoba
110 m2
Eladó ikerház
Eladó ikerház

Vác

175.356 M Ft
5 szoba
165 m2
Eladó ikerház
Eladó ikerház

Érd, Postástelep, Női neves utca

113 M Ft
4 szoba
125 m2
Eladó ikerház
Eladó ikerház

Érd

110 M Ft
4 szoba
130 m2
Eladó ikerház
Eladó ikerház

Érd

139.9 M Ft
5 szoba
157 m2

Falusi CSOK ingatlanok

Eladó téglalakás
Eladó téglalakás

Besnyő

54.9 M Ft
2 + 1 szoba
56 m2
Eladó családi ház
Eladó családi ház

Szalánta

149.9 M Ft
10 szoba
301 m2
Eladó családi ház
Eladó családi ház

Szigliget, Balaton utca 9

187 M Ft
3 szoba
136 m2
Eladó családi ház
Eladó családi ház

Balatonszemes

119 M Ft
3 szoba
76 m2
Eladó családi ház
Eladó családi ház

Galgahévíz

42 M Ft
4 szoba
101 m2
Eladó családi ház
Eladó családi ház

Vásárosdombó

14.99 M Ft
2 szoba
69 m2
Eladó családi ház
Eladó családi ház

Som

42.9 M Ft
3 szoba
107 m2
Eladó családi ház
Eladó családi ház

Szőlősgyörök, Táncsics Mihály utca

47.999 M Ft
5 szoba
105 m2